EasyManua.ls Logo

GE Multilin MIB - Wiring; Typical Wiring Diagram

GE Multilin MIB
175 pages
Print Icon
To Next Page IconTo Next Page
To Next Page IconTo Next Page
To Previous Page IconTo Previous Page
To Previous Page IconTo Previous Page
Loading...
3-6 MIB High Impedance Bus Differntial Relay GEK-106426B
3.3 WIRING 3 HARDWARE
3
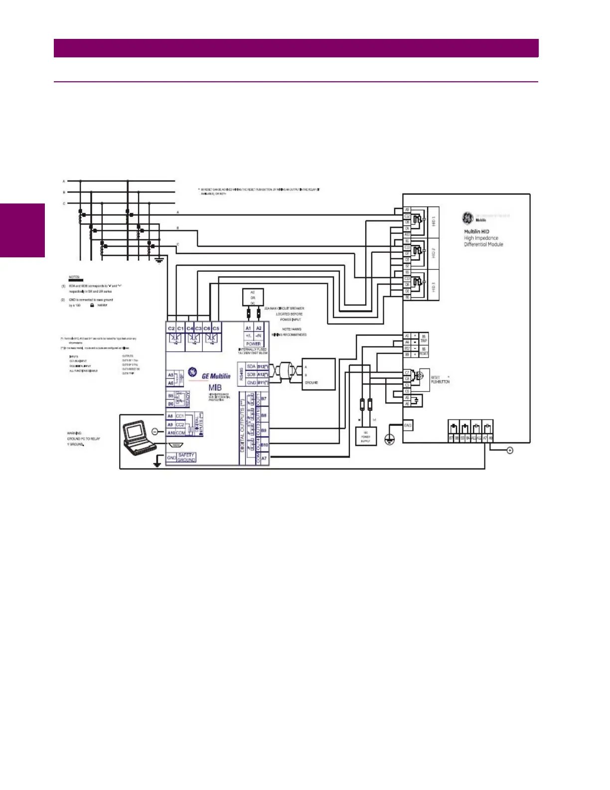
3.3WIRING 3.3.1 TYPICAL WIRING DIAGRAM
Recommended cable section: 12/16 AWG
Copper conductor only
Tightening torque: 1.2 Nm
Figure 3–5: TYPICAL WIRING DIAGRAM FOR MIB RELAY
Figure 3–6: TYPICAL WIRING DIAGRAM FOR RELAY

Table of Contents

Related product manuals