EasyManua.ls Logo

Hirobo jm2-0307903 - Wiring Diagram

Hirobo jm2-0307903
60 pages
Print Icon
To Next Page IconTo Next Page
To Next Page IconTo Next Page
To Previous Page IconTo Previous Page
To Previous Page IconTo Previous Page
Loading...
40
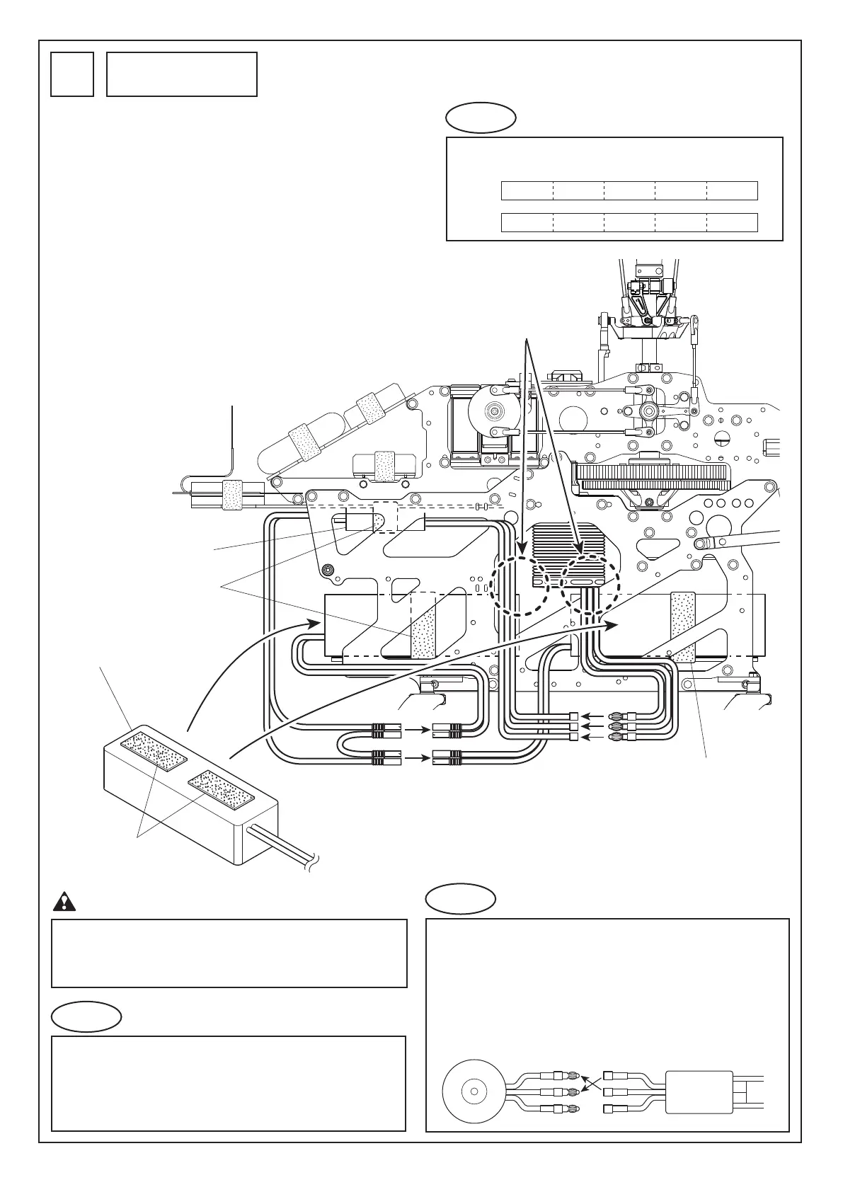
バッテリーやESCの取付に付属の面ファスナーを使います。
また、メカクッションバンドを使ってバッテリーを固定します。
Use the hook-and-loop fastener included for the battery and the ESC
installation.
In addition, use the mechanical cushion band and secure the battery.
バッテリーがモーター
接触しないように注意し
てください。
Make sure that the battery
does not touch the motor.
面ファスナー
Hook-and-loop fastener
メカクッションバンド
Mechanical cushion band
メカクッションバンド
Mechanical cushion band
リチウムポリマーバッテリー(別売)
Lithium polymer battery
(sold separately)
ESCプ)(別売)
ESC (amp) (sold separately)
40
配線図
Wiring diagram
37
ESC(アンプ)及びバッテリーは取付けた状態で 機体の重心バラ
ンスがあっているか確認し、あっていない場合は搭載位置を調整し
て重心を合わせてください 。
Once the ESC (amp) attached with battery is installed, check
that the main unit is centered and balanced, if not, readjust the
installation position so it is centered and balanced.
ポイント
Point
付属の面ファスナーはカットしてご使用ください
Cut and use the hook-and-loop fastener that is included.
ポイント
Point
Caution
バッテリー、ESC(アンプ)は面ファスナー、バンド等でしっかり
固定してください。
Secure the battery and ESC (amp) well with hook-and-loop
fasteners and bands, etc.
モーターが回っているのにローターヘッドが回らない場合はモーター
が逆回転しています。モーターとESC(アンプ)をつなぐ3本の線の
うち2本をつなぎ替えるか又はESC(アンプ)の設定でモーターの回
転方向を変えてください。
If the motor is rotating but the rotor head does not, the motor is
rotating in the opposite direction.
Reconnect 2 of the 3 cables that connect the motor and ESC
(amp), or change the rotation direction of the motor with the ESC
(amp) settings.
ポイント
Point
オス
Male
メス
Female

Table of Contents

Related product manuals