EasyManua.ls Logo

Holip hlp-c+ - Wiring Precautions

Holip hlp-c+
103 pages
Print Icon
To Next Page IconTo Next Page
To Next Page IconTo Next Page
To Previous Page IconTo Previous Page
To Previous Page IconTo Previous Page
Loading...
- 15 -
HLP-C
+
Inverters
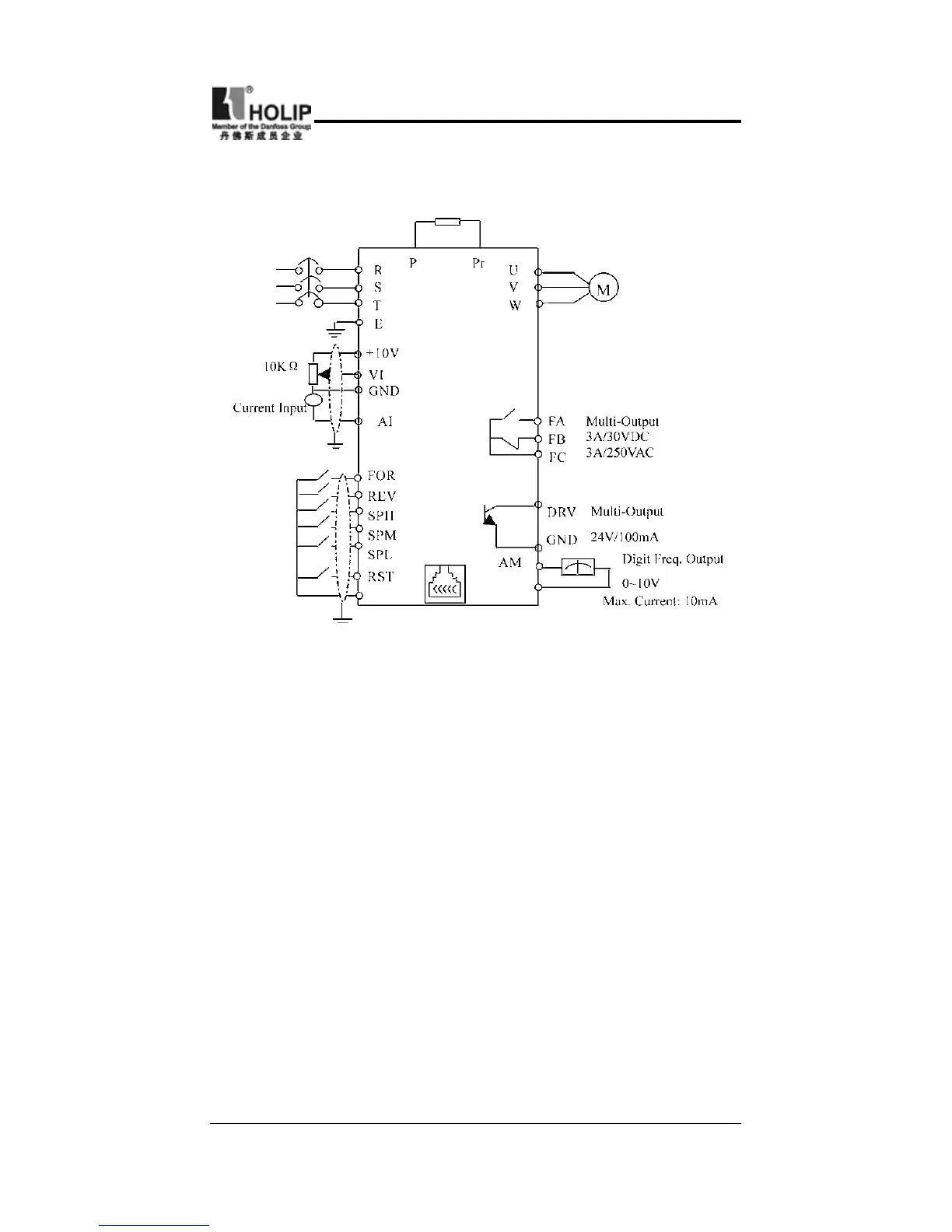
The following diagram shows the factory standard connection of
Model HLP-C
+
(4) Precautions on Wiring
a
For main circuit wiring:
While wiring the sizes and specications of wires should be
selected and the wiring should be executed according to the
electrical engineering regulations to ensure the safety.
It is better to use shield wire or wire and tube for power cord
and ground the shield layer or two ends of wire tube.
● Be sure to install a No Fuse Breaker (NFB) between the power
supply and the input terminals (R.S.T). (If using ground fault
circuit interrupter, please choose the one corresponding to
high frequency)
The power line and the control line should be arranged
separately and should not be laid in the same ducts..
Never connect AC power to the output terminals (U.V.W) of
the inverter.
Output wires mustnt be in touch of the metal part of the outer
cover, or it will cause earth short-circuit.
Phase-shifting capacitor, LC, RC noise lters, etc, can never

Table of Contents

Related product manuals