EasyManua.ls Logo

HPE ProLiant DL180

HPE ProLiant DL180
172 pages
To Next Page IconTo Next Page
To Next Page IconTo Next Page
To Previous Page IconTo Previous Page
To Previous Page IconTo Previous Page
Loading...
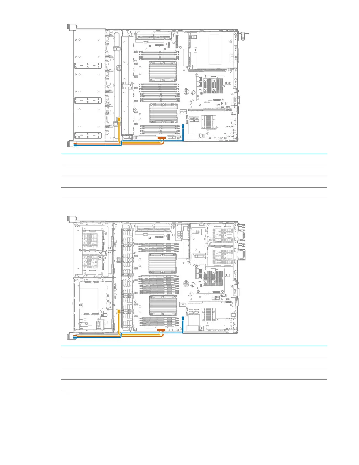
Color Description
Orange Front I/O cable
Blue USB cable
Yellow Thermal sensor cable
LFF
Color Description
Orange Front I/O cable
Blue USB cable
Yellow Thermal sensor cable
140 Cabling

Table of Contents

Related product manuals