EasyManua.ls Logo

Hyundai Elevator WBVF - Page 32

Default Icon
99 pages
Print Icon
To Next Page IconTo Next Page
To Next Page IconTo Next Page
To Previous Page IconTo Previous Page
To Previous Page IconTo Previous Page
Loading...
WBVF
A
INSTALLATION MANUAL
FOR ELECTRICAL PARTS
Doc. No
Ver.
Date
Page
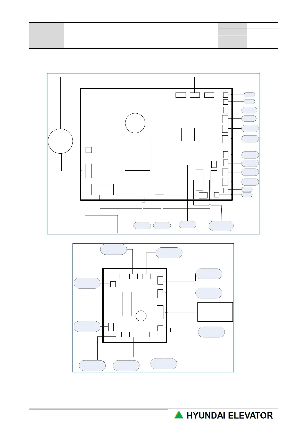
<Main Connection Diagram of the CAR Junction Box>
CONDE
NSER
HEATSINK
MCU
CLL
OPL
MOTOR
COP
CN_T2
CC17
CC18
CN_
T3
CC
23B
TB1
CC
23
CC
24B
CC24
CN_
T21
CN_
T20
CC25
CC
25B
CN_
T19
CN_
T11
CN7
CN8
CN10
CN4CN1
CC16
CN12
CN_
T1
CN_
T14
FAN LIGHT
CPI
LANDING
VANE
CTX Bd
CN_T12
OPEN/
CLOSE
SAFETY
EDGE
SAFETY
EDGE
AUTO /
ONS
UP / DN
MULTI
BEAM
MULTI
BEAM
+24V
+24V
CTC BOARD
R
E
L
A
Y
R
E
L
A
Y
COP
CN_
T12
CC7
CC6
CN_
T13
CC5
CC8
CC4BCC4
CC
28B
CC28
CN_
T31
CC11
VOLUME
RES.
Gate S/W 2
Gate S/W 1
EXIT S/W
Emergency
Lamp
CTC Bd
CN_T11
T-CABLE
(BGM)
SPEAKER
Compen
S/W
E-STOP
SAFETY
S/W
CTX BOARD
[Figure 5.1 Connection Diagram near CAR Junction Box]

Table of Contents

Related product manuals