EasyManua.ls Logo

Koden CVS-852 - Page 25

Koden CVS-852
123 pages
Print Icon
To Next Page IconTo Next Page
To Next Page IconTo Next Page
To Previous Page IconTo Previous Page
To Previous Page IconTo Previous Page
Loading...
CVS-842/852/843
Chapter3
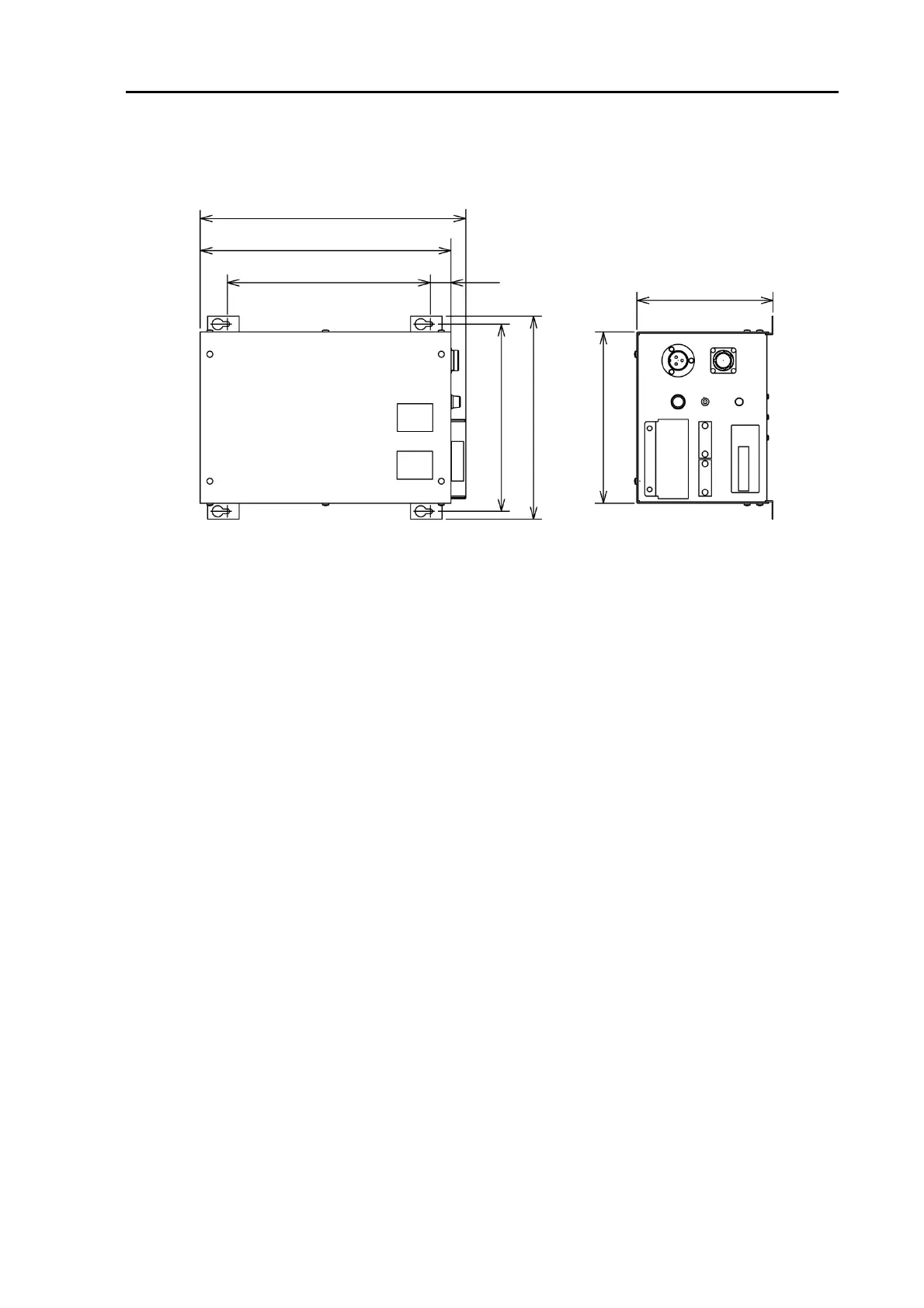
Operation Manual Specifications
Unit in mm (inch)
216 (8 1/2)
236 (9 19/64)
26 (1 1/32)
256 (10 5/64)
316 (12 7/16)
256 (10 1/16)
172 (6 3/4)
335 (13 3/16)
Figure 3.4 External dimensions of CVT-10TX/RX unit
93132692-01 3-5

Table of Contents

Related product manuals