EasyManua.ls Logo

Lutz BE10 - Valve Function; On Point

Default Icon
80 pages
Print Icon
To Next Page IconTo Next Page
To Next Page IconTo Next Page
To Previous Page IconTo Previous Page
To Previous Page IconTo Previous Page
Loading...
45
0698-651 Operating unit - 04/2021
en
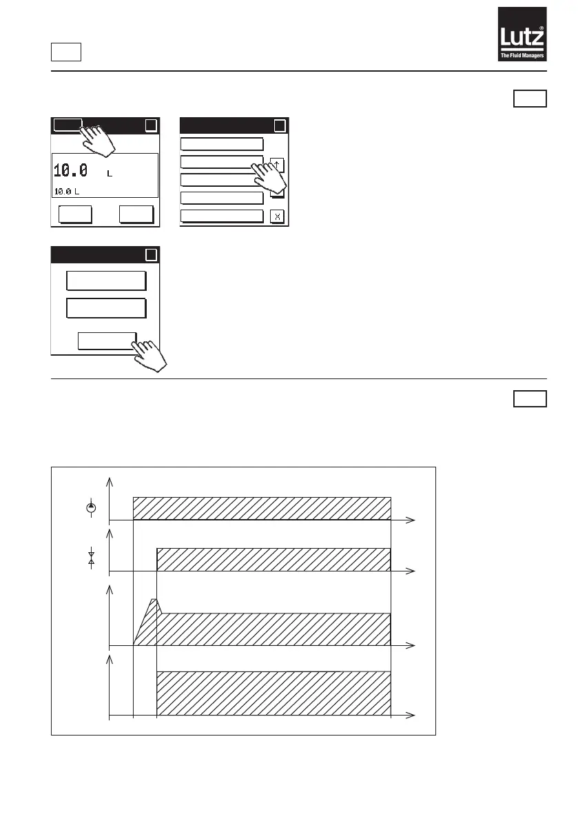
9.15 Valve function
Description of the function "On point" chapter 9.15.1
Descriptionofthefunction"Opoint" chapter 9.15.2
RM
9.15.1 On point
The function "On point" can be used to switch on the solenoid valve on relay output 2 with a delay in the
llingprocess.Thisallowsthepumptobuildupfulloperatingpressurebeforethellingprocessstarts.
Diagram 1 - Timing with switch-on delay
RM
START End
Rel. 1
Rel. 2
I
0
I
0
Δp
Q
t
t
t
t
Menu 3/5
?
?
Fault detection
Valve function
Leakage alarm
Overrun corr.
Ext. actuation
Valve function
?
?
Cancel
On point
Off point
Menu
?
?
AUTO
START
Change
volume

Table of Contents