EasyManua.ls Logo

MD Helicopters 369D - Page 427

MD Helicopters 369D
722 pages
Print Icon
To Next Page IconTo Next Page
To Next Page IconTo Next Page
To Previous Page IconTo Previous Page
To Previous Page IconTo Previous Page
Loading...
CSP-HMI-3MD Helicopters, Inc.
MAINTENANCE MANUAL
[ Main Menu ]
[ HMI3 Book TOC ]
[ Chapter 96 TOC ]
96-03-00
Page 211
Revision 9
The information disclosed herein is proprietary to MD Helicopters, Inc.
Neither this document nor any part hereof may be reproduced or transferred to
other documents or used or disclosed to others for manufacturing or any other
purpose except as specifically authorized in writing by MD Helicopters, Inc.
Copyright © 19992016 by MD Helicopters, Inc.
G96-0030-10A
P1201J
W1085A22
W1086A22
P1084A22
ECU049A22 (K4-E3)
J1074A22
ECU049D22 (TB200-7N)
ECU046BB22 (TB201-1N)
FIR002AA22 (TB201-1E)
ECU051BB22 (TB201-1J)
ECU048AA22 (TB200-6J)
E1259BB22 (TB200-6N)
W1099A22
P19
600N4514 VOICE WARNING LRU P19
AUDIO OUT TO PILOT HEADSET C
E GROUND
CAP AND STOW
TB200-8
(E37-D) P1087A22N
J K M L
ECU053B24
GND TEST
OUT
XDS24
WARN LTS
PTT
W1086A22 (TB201-1S)
VOICE WARNING CIRCUIT
42
W1087A22
S
H
W1087B22
FIR002AAA22 (TB201-2H)
ECU051BBB22 (TB201-1M)
W1088BB22 (TB200-6M)
E1259BBB22 (TB200-6S)
AUDIO IN G
+28 VDC IN B
IGNITOR 28 VDC OUT @ 2.5 AMPS U
GND INPUT FROM ECU FAIL LT D
+28 VDC FIRE SIGNAL IN S
GND INPUT FROM ECU MANUAL LT T
+28 VDC IN FROM ECU ENG OUT LT F
+ VOLTAGE FROM TORQUE XDUCER K
+28 VDC IN OPTIONAL LRU TEST P
AUDIO OUT TO CO'PILOT HEADSET J
H CASE GROUND
L NR SENSOR IN (+)
M SPARE
J SPARE
N SPARE
R SPARE
G (-503) SPARE
(E37-E) P1097A22N
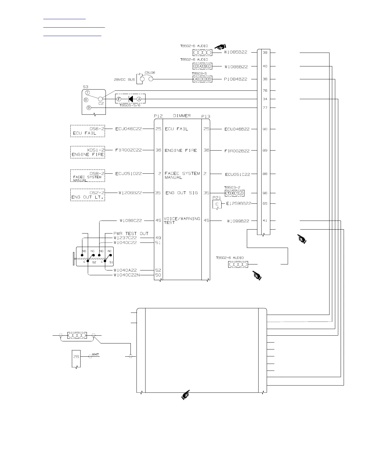
Figure 201. Fuselage Wiring Diagram 600N (Sheet 10 of 14)

Table of Contents