EasyManua.ls Logo

Mec 4069RT - Page 128

Mec 4069RT
256 pages
Print Icon
To Next Page IconTo Next Page
To Next Page IconTo Next Page
To Previous Page IconTo Previous Page
To Previous Page IconTo Previous Page
Loading...
“4069RT” Service and Parts ManualMarch 2014
Page 5-8
ELECTRICAL SCHEMATICS -
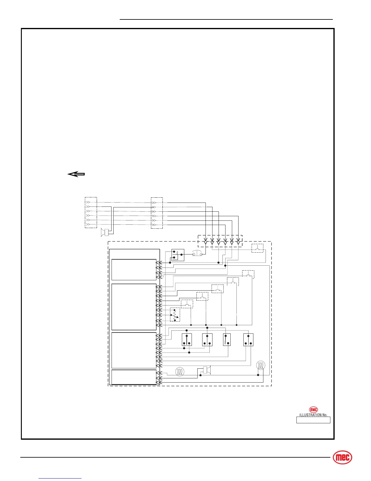
Figure 5-5: Electrical Schematic, 3 of 4
ART_4470
Electrical Schematic, 3 of 4
4069RT
%51
%/8
25*
%/.
%$5(
5('

DEUTSCH
6 PIN
J4
UPPER CONTROL BOX (REVERSE)
P3
P3-1
P3-2
P3-4
P3-5
P3-6
DRIVE
LIFT
SWITCH COMMON
SWITCH COMMON
GLOW PLUG
P2-5
P2-6
P2-10
P2-11
P2-12
P2
ENABLE BAR
FWD/UP
POTENTIOMETER
POTENTIOMETER
P4-4
P4-5
P4
TILT IND. LAMP
TILT ALARM
P1
P1-2
SWITCH POWER
12 VOLT + INPUT
CAN BUS H
GROUND
CAN BUS L
P1-3
P1-4
P1-6
GP400 MATRIX MODULE
21 510 411
OUTRIGGER UP
OUTRIGGER DOWN
P3-10
P3-11
START
P3-3
C
D
E
F
G
H
HORN
LIFT/
DRIVE
ENABLE
POTENTOMETER
34
GLOW
PLUG/
CHOKE
SPEED
EMERG
STOP
TILT IND LIGHT
7,/7
$/$50
IGN/START
+251





DEUTSCH
6 PIN
JX
YEL
P4-6
DRIVE ENABLE
DRIVE
ENABLE
OUT
RIGGERS
POTENTIOMETER
RIGHT
34
LEFT
3
4
REV/UP
34
FWD/DWN
34
REV/DOWN
P2-1
P2-2
P2-3
P2-4
LEFT STEER
RIGHT STEER
34
TO MAIN HARNESS

Table of Contents

Other manuals for Mec 4069RT

Related product manuals