EasyManua.ls Logo

Mirae Mx200 - Page 575

Default Icon
681 pages
Print Icon
To Next Page IconTo Next Page
To Next Page IconTo Next Page
To Previous Page IconTo Previous Page
To Previous Page IconTo Previous Page
Loading...
Chapter 1. Machine Setup 1-
7
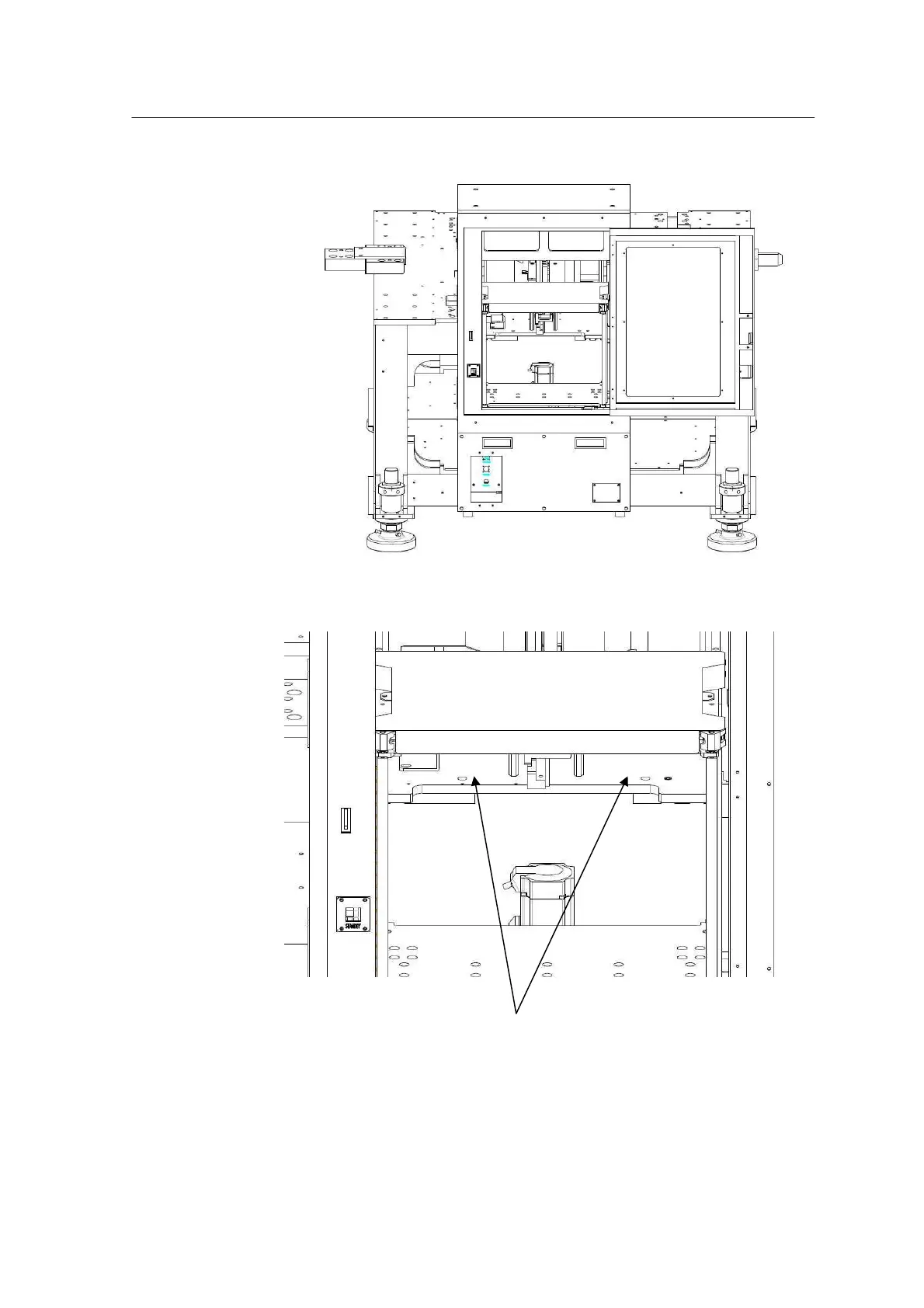
4. Using a wrench, fix the bolts into the holes below.
5. Connect one side of the cable to the TFU panel at the rear of the mounter and the other
side to the connector at the left of the Tray Feeder.
Bolt Holes

Table of Contents

Related product manuals