EasyManua.ls Logo

Nibe FIGHTER 1250 - Page 76

Nibe FIGHTER 1250
88 pages
Print Icon
To Next Page IconTo Next Page
To Next Page IconTo Next Page
To Previous Page IconTo Previous Page
To Previous Page IconTo Previous Page
Loading...
74
NIBE FIGHTER 1250
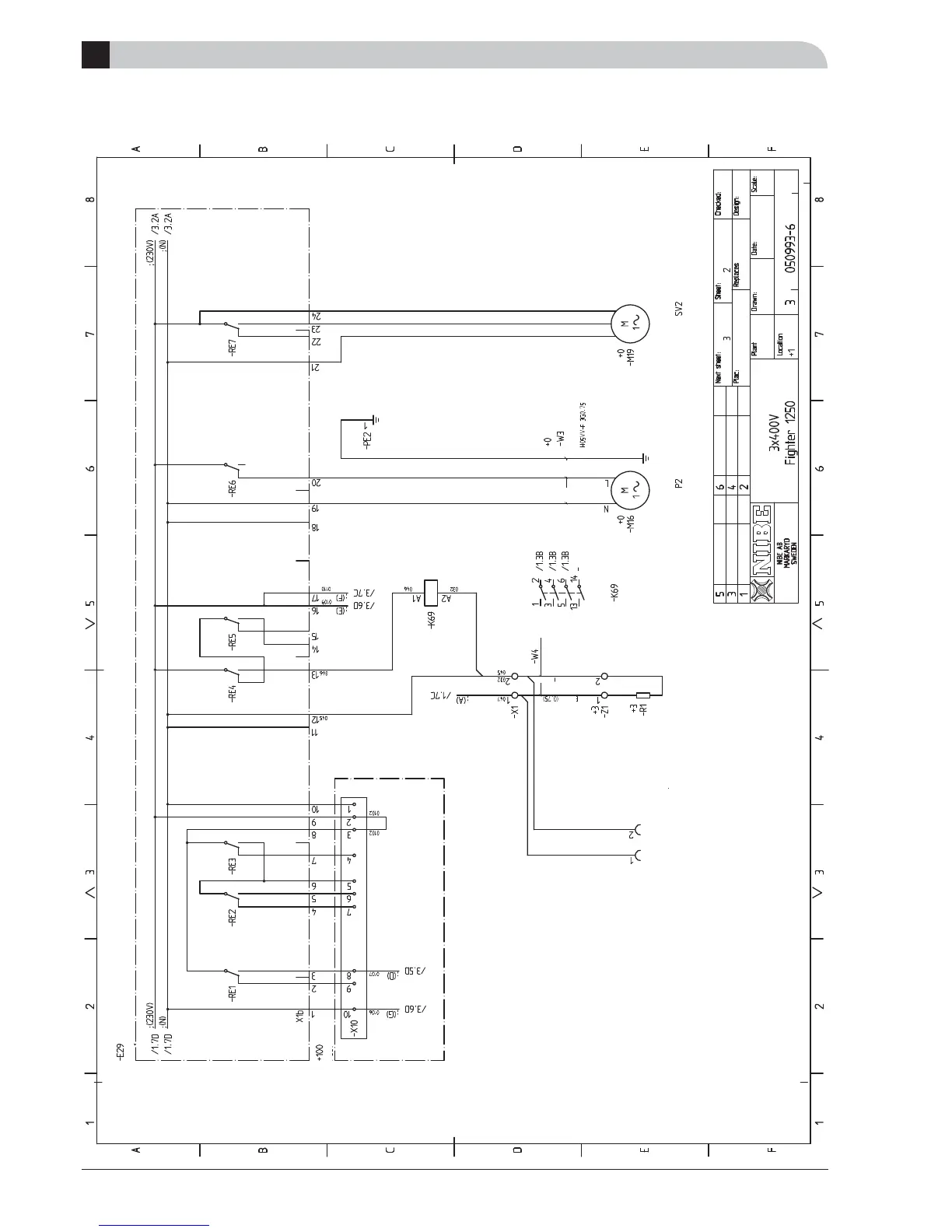
Electrical circuit diagram
F
Relay board
Compressor
Pool
Electrical circuit diagram
Blue
Black
Brown
Blue Brown Green / Yellow
Grey
Brown
Socket for versions with
enamel vessel.
Not installed in all models.

Table of Contents

Related product manuals