EasyManua.ls Logo

Nokia 7360 ISAM FX-16 - Vertical Mounting Configuration for 7360 ISAM FX-8 in a 19 In. EIA Standard Rack

Nokia 7360 ISAM FX-16
468 pages
To Next Page IconTo Next Page
To Next Page IconTo Next Page
To Previous Page IconTo Previous Page
To Previous Page IconTo Previous Page
Loading...
ANSI Hardware Installation Manual Installing a 7360 ISAM FX-8 shelf
Issue: 09 3HH-12893-AAAA-TCZZA 227
DRAFT
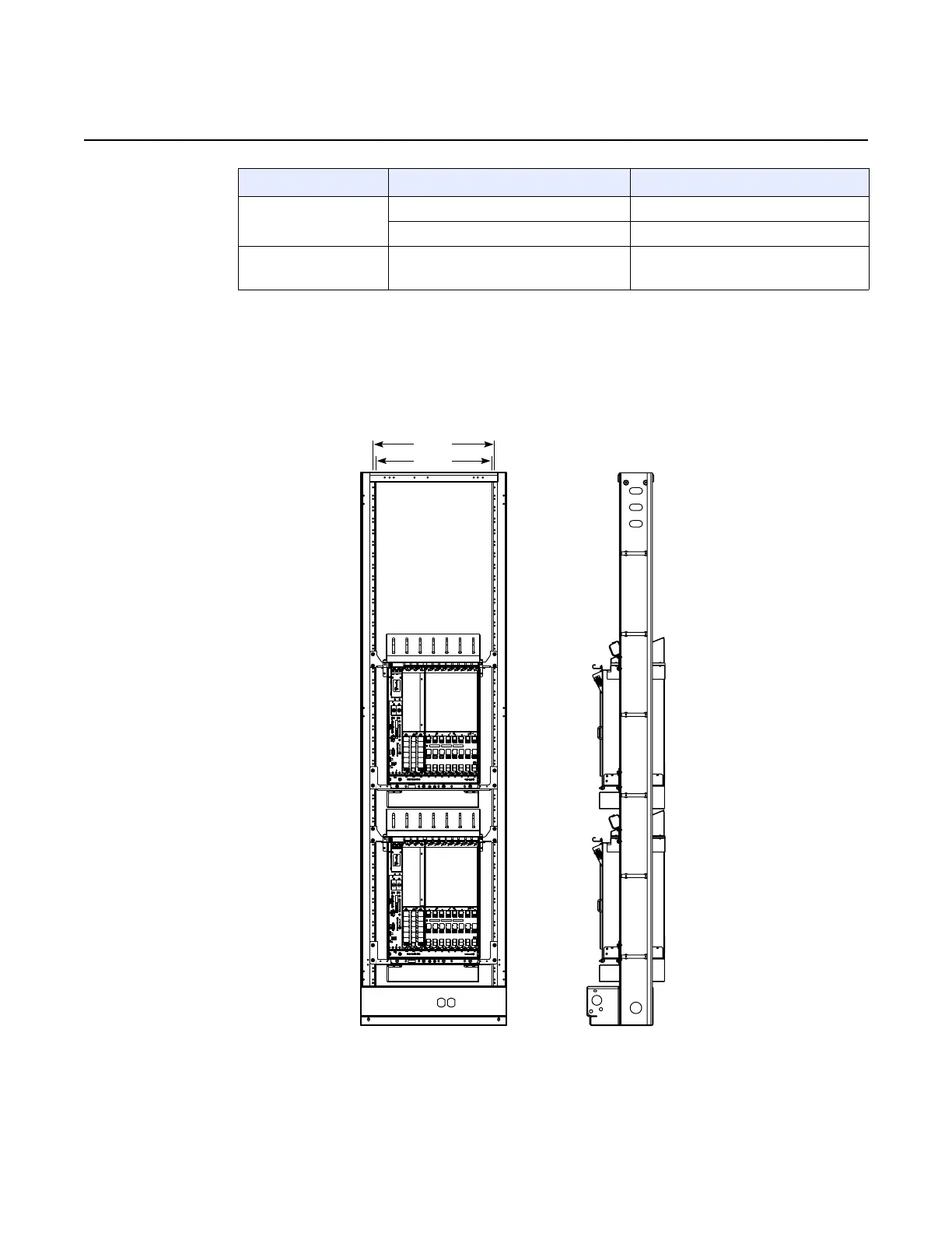
Figure 116 shows the 7360 ISAM FX-8 vertical rack mounting configuration in a 19
in. EIA standard rack.
Figure 116 Vertical mounting configuration for 7360 ISAM FX-8 in a 19 in.
EIA standard rack
SR 2 NFXS-E NFXS-E
Vertical shelf mount kit Vertical shelf mount kit
Fan 2 BFAN-E
(with fan filter)
BFAN-E
(with fan filter)
Rack unit EIA standard 19 in. rack (17.75 in. I.D.) Seismic 19 in. rack (17.5 in. I.D.)
(2 of 2)
18.312
17.750
23345

Table of Contents

Related product manuals