EasyManua.ls Logo

Olympia Millennium-E - Page 170

Olympia Millennium-E
235 pages
Print Icon
To Next Page IconTo Next Page
To Next Page IconTo Next Page
To Previous Page IconTo Previous Page
To Previous Page IconTo Previous Page
Loading...
EnForcer™ SCR Service Manual I.B. 1561
56
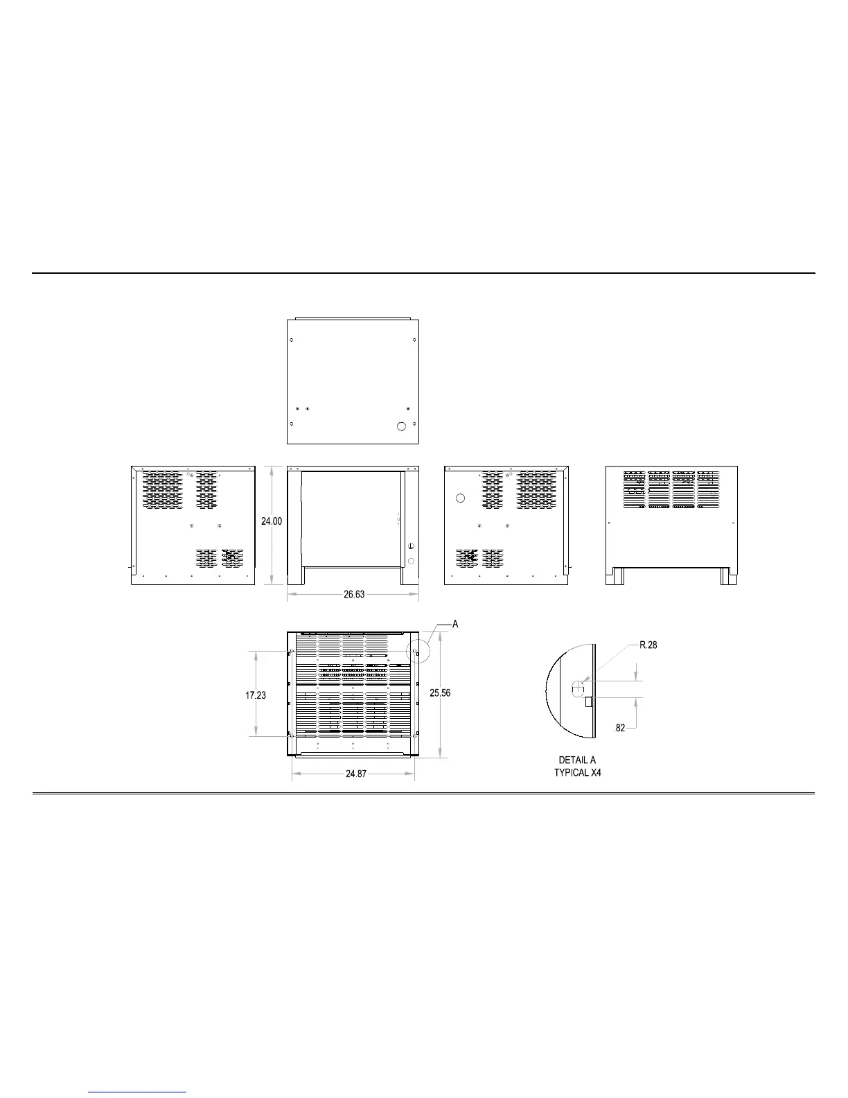
CABINET ASSEMBLY

Table of Contents

Related product manuals