EasyManua.ls Logo

Omron CP1H CPU - Serial Communications

Omron CP1H CPU
788 pages
Print Icon
To Next Page IconTo Next Page
To Next Page IconTo Next Page
To Previous Page IconTo Previous Page
To Previous Page IconTo Previous Page
Loading...
338
Serial Communications Section 6-1
6-1 Serial Communications
6-1-1 Overview
The CP1H CPU Units support the following serial communications functions.
Protocol Connected devices Description Serial
port 1
Serial
port 2
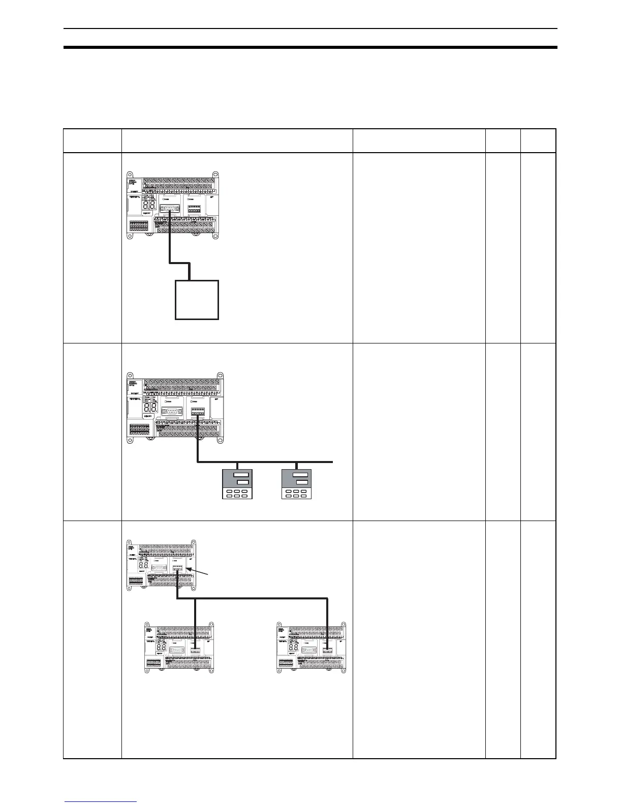
No-protocol Standard devices supporting serial communications Communicates with standard
devices with an RS-232C or
RS-422A/485 port without a
command–response format.
Instead the TXD(236) and
RXD(235) instructions are exe-
cuted from the program to
transmit data from the trans-
mission port or read data in the
reception port. The frame
headers and end codes can be
specified.
OK OK
Serial gate-
way (to
CompoWay/
F or Mod-
bus-RTU)
OMRON components supporting CompoWay/F or Mod-
bus-RTU slave devices
Converts received FINS com-
mands into CompoWay/F or
Modbus-RTU commands and
transfers them on the serial
communications path.
OK OK
Serial PLC
Link
CP1H or CJ1M CPU Units Up to ten words per Unit can
be shared by up to nine CPU
Units, including one Polling
Unit and eight Polled Units.
An RS-422A/485 Option
Boards (CP1W-CIF11/CIF12)
are used to communicate via
RS-422A/485, or RS-232C
Option Boards (CP1W-CIF01)
can be used to communicate
between two CPU Units via an
RS-232C connection.
CJ1M CPU Units can also be
included in Serial PLC Links,
and the Serial PLC Links can
also include PTs as Polled
Units via 1:N NT Links.
Note Serial PLC Links can be
created on serial port 1
or serial port 2, but not
on both ports at the
same time.
OK OK
CP1H CPU Unit
Standard device with
serial communications
RS-232C or RS-422A/485
CP1H CPU Unit
RS-485 (CompoWay/F or Modbus-RTU)
OMRON CompoWay/F-compliant component
s
or Modbus-RTU slave devices
CP1H CPU Unit
Polling Unit
RS-422A/485 Option Board
RS-422A/485
Shared data
CP1H CPU Unit
Polled Unit
CP1H CPU Unit
Polled Unit

Table of Contents

Related product manuals