EasyManua.ls Logo

Panasonic CPC-EX - Variable Resistor; Figure 5-4. Installation of Music-On-Hold and Background Music

Panasonic CPC-EX
204 pages
Print Icon
To Next Page IconTo Next Page
To Next Page IconTo Next Page
To Previous Page IconTo Previous Page
To Previous Page IconTo Previous Page
Loading...
Section 300-Installation Chapter 5. Peripheral Equipment
DBS-2.3/9.2-300 DBS Manual - Revised April 2000 5-9
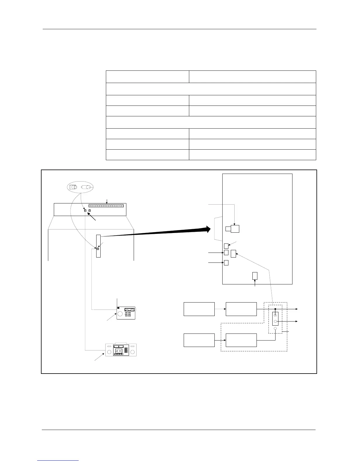
Note:
To change the volume levels of the music sources, adjust the
variable resistors on the SCC card.
Table 5-3. SCC variable resistors
Figure 5-4. Installation of music-on-hold and background music
Variable Resistor Purpose
SCC-A
VR1 Adjusts CO ringing tone volume.
VR5 Adjust MOH and BGM volume.
SCC-B
VR1 Adjusts MOH volume.
VR2 Adjust BGM volume.
VR6 Adjusts CO ringing tone volume.
CN2
MOH Input
MotherBoard
BGM
Connector
BGM
C onnector
VR2
VR1
VR6
SW 4
(SCC-BOnly)
Earphone
Jack
Radio
BG M only
ToMOH
Circuit
ConnectPins 3 and 2 toroutemusicfrom a single source.
ConnectPins 1 and 2 toroutemusicfrom m ultiplesources
oruse internalM O H tone.
Tape
Recorder
Radio
CN5on
MotherBoard
BGM
Connector
To B G M
Circuit
SCC-A=CN5
SCC-B=CN4
SCC
3
2
1
Tape Recorder
MOHor
M O H and BG M
Earphone
Jack
CN5 CN4
SCC

Table of Contents

Related product manuals