EasyManua.ls Logo

Panasonic KT4R - 8.6 Performing Auto-reset

Panasonic KT4R
131 pages
Print Icon
To Next Page IconTo Next Page
To Next Page IconTo Next Page
To Previous Page IconTo Previous Page
To Previous Page IconTo Previous Page
Loading...
8.6 Performing Auto-reset
Notice
Auto-reset is cancelled in approximately 4 minutes. It cannot be cancelled while performing
this function.
If input is burnt out, Auto-reset will be forced to stop.
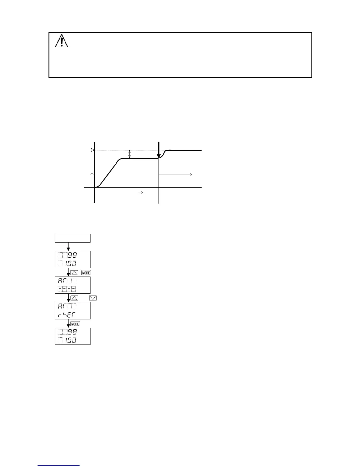
Auto-reset is performed to correct the offset at the point at which PV indication is stabilized within
the proportional band during the PD control. Since the corrected value is internally memorized, it is
not necessary to perform the Auto-reset again as long as the process is the same.
However, when OUT1 proportional band (P) is set to 0 or 0.0, the corrected value is cleared to 0 (zero).
(Fig. 8.6-1)
(Example) Performing Auto-reset
Power ON
RUN mode
PV/SV Display
+
Sub setting mode
AT/Auto-reset Perform/Cancel [37]
or
Select Auto-reset Perform.
RUN mode
PV/SV Display
Now, selection is complete.
The AT indicator flashes while Auto-reset is performing.
Auto-reset is completed in approximately 4 minutes.
After Auto-reset is complete, the AT indicator goes off, and control is performed
using the offset corrected value.
Auto
reset is performed.
Offset is corrected.
Offset span
Temperature
Time
SV
Phone: 800.894.0412 - Fax: 888.723.4773 - Web: www.clrwtr.com - Email: info@clrwtr.com

Table of Contents

Other manuals for Panasonic KT4R

Related product manuals