EasyManua.ls Logo

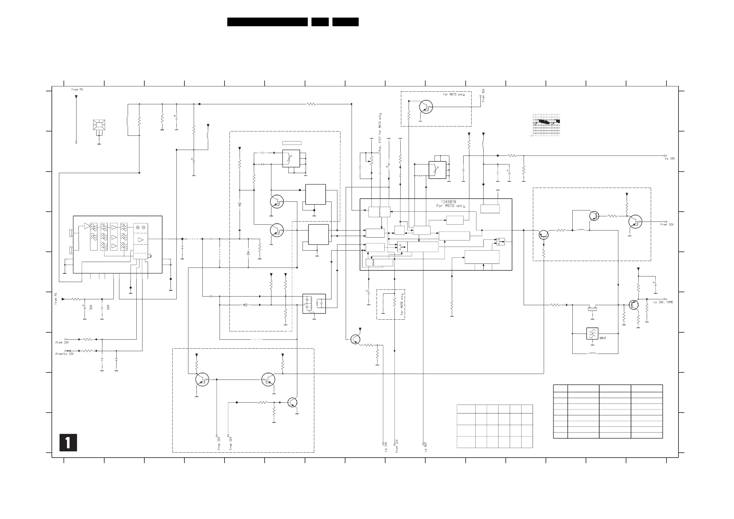
Philips DVDR75/001 - Analog Board: Frontend Video (FV)

Philips DVDR75/001
260 pages
Print Icon
To Next Page IconTo Next Page
To Next Page IconTo Next Page
To Previous Page IconTo Previous Page
To Previous Page IconTo Previous Page
Loading...
EN 110DVDR70 & DVDR75/0x1 7.
Circuit Diagrams and PWB Layouts
Analog Board: Frontend Video (FV)
PLL
AGC
DET
IF AMP
MIX-OSC
PRE-FIL
TRACK
FILTER
GAIN
CTRL
PRE-AMP
TRACK
FILTER
RF
MT
OUT
MT
IN
RF
TUNER
AGC AGC
VIF
VIF
AMPLIFIER
SIF
AMPLIFIER
AGC
INTERCARRIER
MODE SWITCH
SIF
QSS MIXER
INTERCARRIER MIXER
AM DEMODULATOR
FPLL
VCO
TWD
VIDEO DEMODULATOR
AND AMPLIFIER
FM-PLL DEMODULATOR
AFC
DETECTOR
VOLTAGE
REFERENCE
delete for MSTD
1
SB1
PSS
*
3,2V
1
*
G3956M
10 11 12
A
B
C
D
E
F
G
not used
270R
3,5V
7
H
I
0005 A1
1701 C7
1702 E7
1703 D7
1704 F14
1706
for PAL-I only
2V
3731
I
2,7V
1 2
7710
*
0
0V
TPS 5,5 MHz
not used
--
AFC-ADJUST
K3953M
1
4700
not used
12 13 14
89
B
C
D
13 14 15
12
1705 C1
1706 F14
2713 A3
2719 B5
0
TPS 6,0 MHz
5V
TDA9817
for MSTD only
2723 B8
2724 B10
2725 D3
2727 C8
2728 C11
2729 C12
2730 C9
2731 C9
2734 D4
2735 G1
2736 G2
7 8 9 10 11
3456
40,4-ADJUST
3,3V
--
2,5V
0R
15
A
3703 A3
3704 F1
3705 C14
E
F
G
H
I
345
6
330R
PAL I (/07)
0
2720 B4
2721 B5
2722 B8
2732 F1
2733 F1
3720 B9
3724 B8
3725 B12
2737 E15
2740 F8
2741 F4
2742 F8
3701 A7
5,2V
2,7V
270R
--
SFS_TS
0
3,3V
TPS 5,5 MHz
7713 D12
3702 A2
7717 G7
9701 D4
F701 E23710 A9
3711 A4
3714 B11
3715 B12
3716 B5
PAL BG (/01)Pos.
*
3,2V
3,3V
0R
TDA9818
4701 G5
3,3V
F709 C6
F710 D3
F713 H5
I701 B2
I702 B6
I703 B5
I704 C5
3717 E12
I708 D7
I709 C8
I711 C9
7705 D6
7706 H6
7710 C8
7711 F14
7712 H4
1
delete for MSTD
0
--
N750
I721 G9
I723 F15
I724 E14
I725 F13
I726 E10
I727 E8
I728 E9
I729 F5
7714 H6
7716 D14 I732 B3
I733 F1
I734 G1
F702 C11
F703 D7
F704 A4
F707 E3
F708 B11
2,8V
1704
D/K
low leakage
1703
--
L’
*
I706 E6
I707 D7
I744 E7
I712 C9
I713 B9
I715 G1
I716 G1
I717 A9
4701
0R
0R
3,1V
I730 F5
I731 H4
0
TDA9817
I735 G1
I739 H6
I741 D4
I742 D5
I743 E7
1
6705 F5
7701 A10
7702 D15
I754 D13
1
* VERSION TABLE
G3956M
1
3V
I745 A8
I746 B9
I748 C9
I749 D12
I751 D13
2V
0,9V
0
B/G
1
3739 F10
3740 F9
3741 D14
3742 F6
3744 G8
AGC-ADJUST
L
5704 A2
5705 B43743 G8
for MSTD only
for MSTD only
5709 B11
5710 B6
5711 C10
5713 D13
5714 G14
6703 C5
6704 E53726 C5
3727 G1
3728 D13
3729 G1
3730 D5
MULTISTD (/39)
3731 F13
3732 E15
3733 G4
3734 F15
3735 F14
3736 F15
3745 H5
3746 H6
3758 G6
4700 E4
7704 C6
0,7V
3737 E6
3738 E6
I726
3736
330R
GND
I729
7712
PDTC124EU
I709
100n
2724
F708
GND
I749
2u2
2732
GND
2720
100u
GND
3758
10K
GND
3701
680R
2u2
2722
3742
4K7
BRACKET
0005
GND
3720
330R
13
14
15
NC1
6
NC2
10
SCL
4
SDA
5
VCC
7
VT
2
1705
UV1316-MK3
33V
9
ADC
8
AGC
1
AS
3
IFOUT 11
12
100n
2733
120p
2721
GND
2K2
3737
I708
GND
2740
2u2
I725
I703
I735
I731
100R
3726
470R
3702
7714
BC847BW
5SW
5SW
3731
270R
2742
1n
22u
2713
I745
I715
100n
2727
I711
2731
8p2
GND
I724
GND
2736
56p
220p
2719
1n
2741
GND
GND
2730
220n
5714
15u
GND
TPS
1706
1
2
3
GND
I728
GND
4K7
3716
I721
3729
1R
33VSTBY
I754
GND
3710
5K6
BC857BW
7713
I751
2723
470p
5SW
GND
GND
GND
O
F709
GND
GND
5MHZ5
TPSR
1704
2
G
1
I
3
2728
10n
I723
I733
PDTC124EU
7705
3745
5K6
GND
8K2
GND
GND
PDTC124EU
7704
3725
F710
3717
4K7
I702
5SW
1K
3732
I707
3739
5K6
I748
I713
4701
I716
GND
4K7
3741
I730
7706
PDTC124EU
1
2
3
4
6
78
GND
57107KMY
F713
4700
1702
OFWK9656M
GND
3
1
2
4
5
10K
5SW
GND
1
2
34
6
78
3705
7KMY 5711
I744
I734
GND
F701
F707
I701
I732
GND
I746
GND
I717
GND
100R
3728
6705
BA591
3733
4K7
I741
GND
GND
5SW
22p
2725
18K
3714
5SW
GND
220R
3704
I743
6u8
I727
GND
5709
I704
150K
3703
15u
5713
GND
F704
5704
I712
5SW
3735
3K3
PDTC124EU
3734
2K7
7701
5K6
3746
33K
3711
7717
BC847BW
1701
OFWK3953M
1
2
3
4
5
3744
100K
3727
1R
PDTC124EU
7702
GND
GND
BC857BW
7716
I742
5SW
6704
BA591
GND
2729
10u
5
67
8
9
I739
12 13
14
15
16
171819
2
202122
23
24
3
4
7710
TDA9817
1
10 11
5SW
4K7
3730
3738
6K8
GND
10K
3715
I706
5705
6u8
56p
2735
22K
3724
3743
56K
GND
F702
7711
BC857BW
3740
680R
GND
5SW
47u
2737
BA591
6703
1
2
3
4
5
GND
2734
1n
GND
1703
OFWG3956M
5SW
GND
9701
F703
SFS_TS
SDASW
SCLSW
5SW
SB1
SB1
SIF1
SB1
AGC
VFV
AFC
PSS
VFV I723
A: DC, 500mV/Div
10us/Div
TR 07004_001
110303
2.4V
0V
5.1V
4.1V
0.1V
3.1V
2.5V
3.5V
5V
5V
5V
1.9V
1.9V
1.9V
0.2V
1.9V
2.5V
0.5V

Table of Contents

Related product manuals