EasyManua.ls Logo

Philips DVDR75/001 - Digital Board 1.5: Progressive Scan

Philips DVDR75/001
260 pages
Print Icon
To Next Page IconTo Next Page
To Next Page IconTo Next Page
To Previous Page IconTo Previous Page
To Previous Page IconTo Previous Page
Loading...
EN 146DVDR70 & DVDR75/0x1 7.
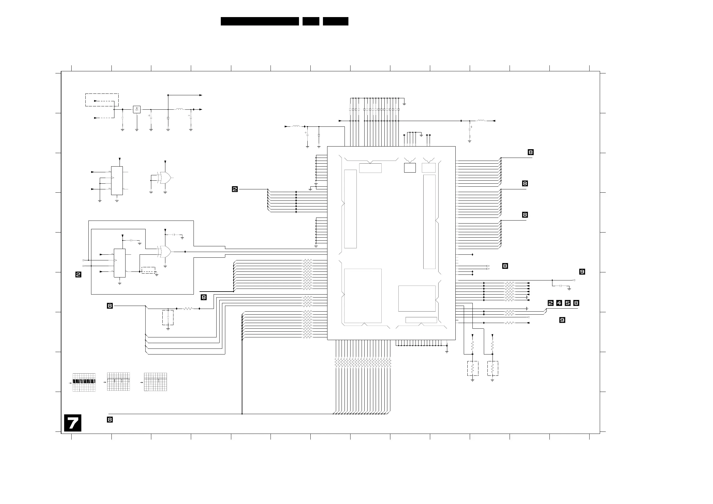
Circuit Diagrams and PWB Layouts
Digital Board 1.5: Progressive Scan
INTERFACE
SIGNALS
CONTROL
SIGNALS
OUTPUT SIGNALS
POWER
SUPPLY
TEST
INPUT
TEST
OUTPUT
POWER GND
INPUT SIGNALS
SDRAM
I713 G10
I714 F4
I715 F3
I729 D6
I730 D6
I731 D6
I732 D6
I733 D6
DATA BUS
ADDRESS BUS
I734 D6
I735 D6
I702 E2
I703 E11
I704 B9
I705 B9
I706 B9
I707 F11
I708 E11
I709 A2
I710 B6
I711 A4
I712 A3
2701 B8
2702 B9
2703 B9
2704 B8
2705 B8
12345678910111213
1
I716 G11
I717 F11
I718 F11
I719 F11
I720 F11
I721 F11
I722 F11
I723 F11
I724 G11
I725 F11
I726 H11
I727 H11
I728 C6
4 5 6 7 8 9 10 11 12 13
A
B
C
D
E
F
I2C BUS
B
C
D
E
F
G
H
I
2700 B9
23
2706 B8
2707 G3
2708 B8
2709 B8
2710 B8
2711 B8
2712 B8
2713 B8
2714 F13
2715 B6
2716 B7
2717 B8
2718 B7
G
H
2721 E2
2722 D3
2723 B3
2724 B2
2725 B2
2726 B3
2727 B8
3700 G11
3701-A F11
3701-B F11
3701-C F11
3701-D F11
I
A
DEINTERLACER
I
CONTROL BUS
LINE DOUBLER
3702-C F11
3702-D F11
3703-A F6
3703-B F6
3703-C F6
3703-D F6
3704-A F6
3704-B F6
3704-C F6
3704-D F6
2719 B8
2720 B11
3707 H11
3708 H11
3709-A E6
3709-B E6
3709-C E6
3709-D F6
3710-A G6
3710-B F6
3702-A G11
3702-B F11
3711-A G6
3711-B G6
3711-C G6
3711-D G6
3712 F3
3713-A G6
3713-B G6
3713-C G6
3713-D G6
3714 G11
3715-A H7
3715-B H7
3715-C H7
3705 F11
3706 G11
3718-C H8
3718-D H8
3719-A H8
3719-B H8
3719-C H8
3719-D H8
3720 F6
4700 A1
4701 B1
4702 E2
5700 B11
5701 A3
5702 B6
7700 B7
7701-A E1
7701-B C1
7702-A E3
7702-D C3
7703 A2
3710-C E6
3710-D E6
33R3704-A 18
OPTION
OPTION
OPTION
OPTION
OPTION
I700 B10
I701 E3
3715-D H7
3716-A H8
3716-B H8
3716-C H7
3716-D H7
3717-A H8
3717-B H8
3717-C H8
3717-D H8
3718-A H8
3718-B H8
36
33R3709-D 45
33R3709-B 27
3709-C 33R
2724
3709-A 33R18
18
33R3710-C 36
100n
27
33R3703-A
45
33R3703-C 36
3703-B 33R
I729
3703-D 33R
33R3716-C 36
3716-D 33R45
7
3716-B 33R27
45
3710-B 33R2
8
33R3704-C 36
3704-D 33R
45
33R3710-A 1
27
33R3719-A 18
3715-D 33R
33R3719-C 36
3719-B 33R
7
3718-A 33R18
GNDD
36
33R3718-B 2
18
33R3718-D 45
3718-C 33R
3717-B 33R27
33R3717-A
45
33R3713-B 27
18
33R
3720
3717-D 33R
36
33R3716-A
45
33R3715-B 27
3715-C 33R
3708
3711-D 33R
3707
4K7
4K7
33R45
4K7
3700
3713-A 33R18
3719-D
33R3713-D 45
3713-C 33R36
7
33R3711-A 18
33R3711-C 36
3711-B 33R2
I730
GNDD
I732
I731
I733
I734
GNDD
3704-B 33R27
I735
GNDD
100n
2722
45
100n
2721
I711
3710-D 33R
47u
2723
I712
18
GNDD
GNDD
10p
2707
3715-A 33R
GNDD
100n
I716
100R3706
2702
GNDD
33R
3712
GNDDGNDD
2726
100n
33R3717-C 36
I728
3701-B 4K727
I707
GNDD
GNDD
100n2706
2711 100n
GNDD
4K7
3714
2715
GNDD
5701
GNDD
GNDD
47u
12
13
11
14
7
GNDD
GNDD
I710
74LVC86ADB
7702-D
GNDD
5700
I709
I706
I705
2710 100n
I715
I704
100n2713
I721
I720
I719
I718
100n2712
I725
GNDD
I726
100n2719
2
7
5
61
4
14
2720
4u7
7701-A
74HC74D
3
6
GNDD
100n
2708
45
3702-C 4K73
3702-D 4K7
3701-D 4K745
I713
2717 100n
2705 100n
100n
GNDD
2703 100n
2704
2716
100n
2709 100n
I703
I700
GNDD
I702
GNDD
I722
I708
2714
1n
2725
4u7
GNDD
3702-B 27
2700 100n
4K7
18
I727
I701
4K73702-A
4702
36
4K73701-A 18
2727 100n
3701-C 4K7
GNDD
I714
GNDD
74LVC86ADB
7702-A
1
2
3
14
7
GND
2
IN
1
OUT
3
4701
7703
LF25C
GNDD
I723
I717
I724
9
813
10
14
4700
3705 100R
74HC74D
7701-B
11
12
7
5702
4u7
100n
100n2718
145
VSS15
152
VSS16
159
VSS17
168
VSS2
17
VSS3
34
VSS4
55
VSS5
64
VSS6
74
VSS7
85
VSS8
96
VSS9
106
VSYNCREFI
4
VSYNC|CREFO
91
WEN
119
YCLKO
117
2701
151
VDD33-13
167
VDD33-2
33
VDD33-3
63
VDD33-4
73
VDD33-5
84
VDD33-6
95
VDD33-7
105
VDD33-8
114
VDD33-9
123
VREFO
89
VSS1
2
VSS10
115
VSS11
124
VSS12
132
VSS13
138
VSS14
48
SDA
47
111
TEST0
109
TEST1
51
TEST2
50
TEST3
41
TEST4
113
TESTO1
112
TESTO2
VDD25-1
16
VDD25-2
54
VDD25-3
107
VDD25-4
158
VDD33-1
1
VDD33-10
137
VDD33-11
144
VDD33-12
32
R|CRIN5
35
R|CRIN6
36
R|CRIN7
37
R|CRIN8
38
R|CRIN9
39
R|CROUT0
88
R|CROUT1
87
R|CROUT2
86
R|CROUT3
83
R|CROUT4
82
R|CROUT5
81
R|CROUT6
80
R|CROUT7
79
R|CROUT8
78
R|CROUT9
77
SCL
56
MEMCLKO
118
MODE
46
52
NOMEM
N|P|IN|OUT
62
OE
53
OFORMAT0
61
OFORMAT1
60
OFORMAT2
59
PIXCLK
40
RASN
120
RESETB
49
R|CRIN0
28
R|CRIN1
29
R|CRIN2
30
R|CRIN3
31
R|CRIN4
27
G|YOUT0
76
G|YOUT1
75
G|YOUT2
72
G|YOUT3
71
G|YOUT4
70
G|YOUT5
69
G|YOUT6
68
G|YOUT7
67
G|YOUT8
66
G|YOUT9
65
HREFO
90
HSYNCREFI
3
H|CSYNCO
92
IFORMAT0
58
IFORMAT1
57
IFORMAT2
147
DATA7
148
DATA8
149
DATA9
150
FIELDIN
5
FILM
110
FSYNC
108
G|YIN0
18
G|YIN1
19
G|YIN2
20
G|YIN3
21
G|YIN4
22
G|YIN5
23
G|YIN6
24
G|YIN7
25
G|YIN8
26
G|YIN9
163
DATA19
164
DATA2
141
DATA20
165
DATA21
166
DATA22
169
DATA23
170
DATA24
171
DATA25
172
DATA26
173
DATA27
174
DATA28
175
DATA29
176
DATA3
142
DATA4
143
DATA5
146
DATA6
94
B|CBOUT9
93
CASN
121
CCLKO
116
DADDR0
45
DADDR1
44
DATA0
139
DATA1
140
DATA10
153
DATA11
154
DATA12
155
DATA13
156
DATA14
157
DATA15
160
DATA16
161
DATA17
162
DATA18
8
B|CBIN3
9
B|CBIN4
10
B|CBIN5
11
B|CBIN6
12
B|CBIN7
13
B|CBIN8
14
B|CBIN9
15
B|CBOUT0
104
B|CBOUT1
103
B|CBOUT2
102
B|CBOUT3
101
B|CBOUT4
100
B|CBOUT5
99
B|CBOUT6
98
B|CBOUT7
97
B|CBOUT8
136
ADDR1
135
ADDR10
125
ADDR2
134
ADDR3
133
ADDR4
131
ADDR5
130
ADDR6
129
ADDR7
128
ADDR8
127
ADDR9
126
AVDD
42
AVSS
43
BSEL
122
B|CBIN0
6
B|CBIN1
7
B|CBIN2
GNDD
7700
FLI2200
ADDR0
+2V5_FLI
+3V3_FLI
D_ADDR(0)
D_ADDR(2)
D_ADDR(3)
D_ADDR(1)
CAS
BA
D_DATA(2)
D_DATA(1)
D_DATA(3)
D_DATA(4)
D_DATA(0)
D_DATA(7)
D_DATA(6)
D_DATA(8)
D_DATA(5)
D_DATA(9)
+2V5_PLL
P_SCAN_YUV(7)
P_SCAN_YUV(7:0)
SYSCLK_PROGSCAN
P_SCAN_YUV(6)
P_SCAN_YUV(5)
P_SCAN_YUV(4)
P_SCAN_YUV(3)
P_SCAN_YUV(2)
P_SCAN_YUV(1)
P_SCAN_YUV(0)
Yy_OUT(5)
Yy_OUT(7)
Yy_OUT(9)
D_DATA(13)
D_DATA(12)
D_DATA(11)
D_DATA(10)
D_ADDR(4)
D_ADDR(5)
D_ADDR(6)
D_ADDR(7)
D_ADDR(9)
D_ADDR(8)
D_ADDR(10)
CLK4
VSOUT
HSOUT
Cb_OUT(9)
Cb_OUT(8)
Yy_OUT(0)
Yy_OUT(1)
RESETn
+3V3_FLI
+3V3_FLI
Yy_OUT(3)
Yy_OUT(4)
Yy_OUT(6)
Yy_OUT(8)
+3V3_FLI
+3V3_FLI
+3V3_FLI
+3V3_FLI
+3V3_FLI
+3V3_FLI
+3V3_FLI
Cb_OUT(9:0)
D_DATA(29)
D_DATA(28)
D_DATA(27)
D_DATA(26)
D_DATA(25)
D_DATA(24)
D_DATA(23)
D_DATA(22)
D_DATA(21)
D_DATA(20)
D_DATA(19)
D_DATA(18)
D_DATA(17)
D_DATA(16)
D_DATA(15)
D_DATA(14)
+3V3
+3V3
+3V3
+3V3
+3V3
+3V3
Yy_OUT(9:0)
+3V3
Cb_OUT(7)
Cb_OUT(6)
Cb_OUT(5)
Cb_OUT(4)
Cb_OUT(3)
Cb_OUT(2)
Cb_OUT(1)
Cb_OUT(0)
Yy_OUT(2)
Cr_OUT(3)
Cr_OUT(4)
Cr_OUT(5)
Cr_OUT(6)
Cr_OUT(7)
Cr_OUT(8)
Cr_OUT(9)
+2V5_FLI
+3V3
+5V
+2V5_PLL
+3V3
+3V3
SDA
SCL
Cr_OUT(9:0)
Cr_OUT(0)
Cr_OUT(1)
Cr_OUT(2)
WE
VS_IN
RAS
5508_HS
5508_odd_even
2V / div DC 20us /div
Y_OUT; Cr_OUT; Cb_OUT
2V / div DC
10ms / div
VS_IN
2V / div DC 20us / div
HS_IN
TR 06044_001
050203

Table of Contents

Related product manuals