EasyManua.ls Logo

Philips DVDR75/001 - Analog Board for VAE8020: Power Supply (PS)

Philips DVDR75/001
260 pages
Print Icon
To Next Page IconTo Next Page
To Next Page IconTo Next Page
To Previous Page IconTo Previous Page
To Previous Page IconTo Previous Page
Loading...
Circuit Diagrams and PWB Layouts
EN 113DVDR70 & DVDR75/0x1 7.
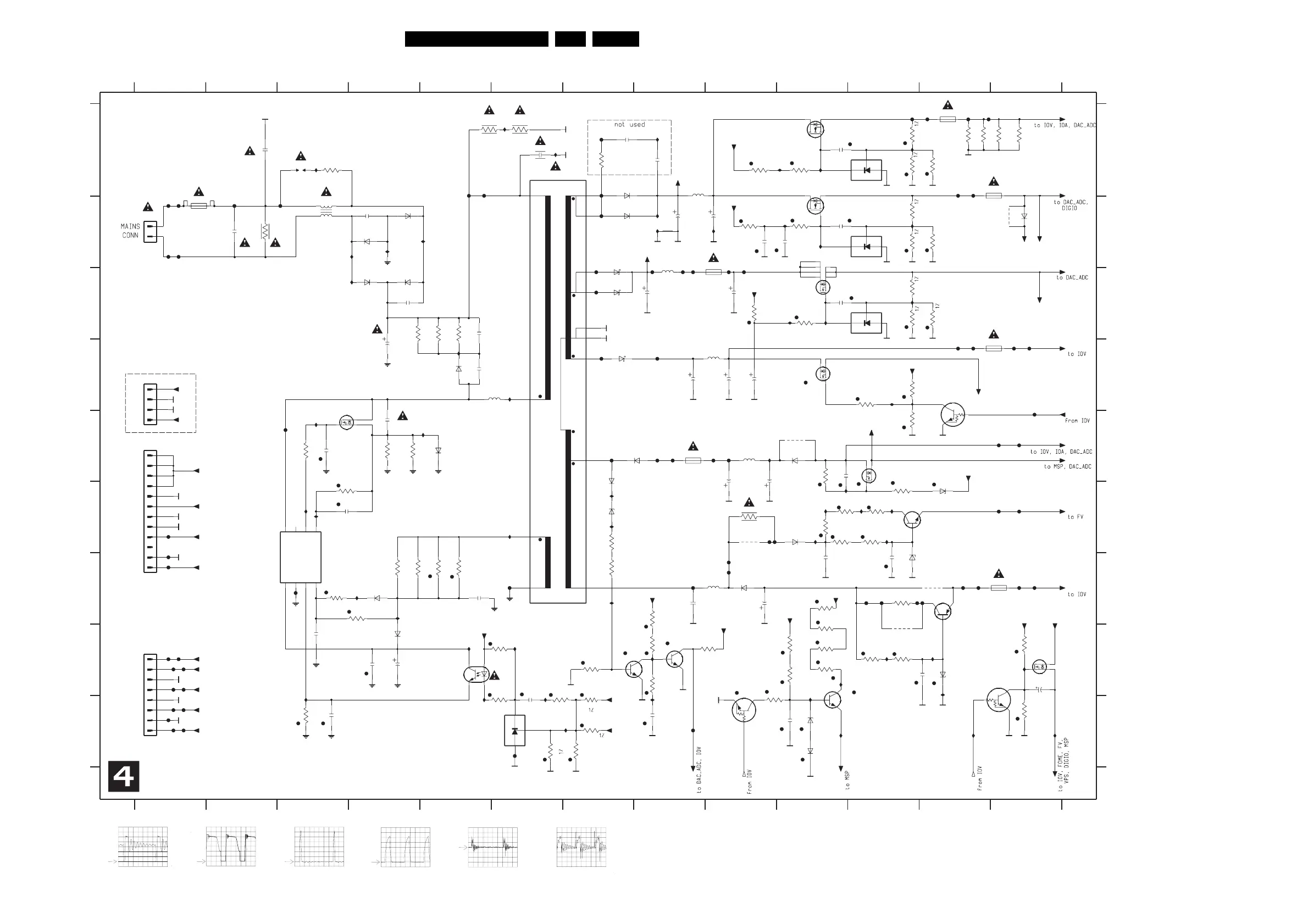
Analog Board for VAE8020: Power Supply (PS)
2327 G11
3372 H10
3328 H8
2329 I6
1308 D13
1309 A13
A
B
C
D
E
2307 C4
2308 C5
13,9V
A
B
3304 F10
2337 H3
2338 H11
2339 B10
F
not used
H
I
3301 A6
3302 F10
C
6303 B7
3350 F10
1300 A1
3349 G10
3305 B2
F
45678
1306 G13
1307 A12
2315 E4
2316 A7
3316 C12
3317 H6
3318 E3
2320 D9
1
2322 E9
2323 E9
3324 G4
3325 E10
2326 G10
6320 I10
3373 H10
2324 H4
2325 H4
11
3327 H13
2328 G9
9
2303 B4
2304 G8
23
D
E
not used
2305 B8
2306 B9
12 13
2335 D9
2336 I8
3339 A11
3340 A11
3341 A12
2340 A2
G
2342 F3
3300 A5
3346 F7
3347 I3
3303 F11
7310 H7
6304 B13
3306 A3
H
1301 B1
2302 B2
1302 A3
1303 E8
1934 D1
2301 A6
2313 C9
2314 D5
3314 C11
3315 C11
3360 G4
3361 F11
3362 H10
3319 A7
2321 E10
3322 F9
3323 E11
3367 G5
3368 D11
3326 G11
F300 A11
6321 G4
3329 I13
10
2331 I3
12 13
1 4 5 6 10 11
2333 A8
2334 I10
3337 B9
3338 B10
5302 B3
5304 D6
5305 G9
3342 B11
2341 B9
3344 B12
3345 I7
6300 A7
6301 B4
3348 H10
F313 B1
7311 H8
3351 G3
G
3308 C4
I
not used
1931 B1
1932 E1
1933 H1
2311 B10
2312 C8
3312 C10
3313 D11
3358 H8
3359 H9
6310 D7
6311 E5
6312 F7
3363 G7
3321 E4
3365 F3
3366 G5
6317 F10
6318 G11
3371 H10
F336 G9
F301 A12
3374 A12
2330 C10
3331 I6
2332 H13
5N
not used
not used
789
3335 A9
3336 A10
4301 G12
5300 A6
7302 B10
5306 C8
3343 B11
5308 A8
5309 D9
7307 E3
7308 H13
6302 B4
F357 I1
F314 B1
6305 C4
3307 F11
3353 H11
3309 C5
not used
2309 D4
2310 A10
3310 C5
3311 C9
3356 G4
3357 H7
6309 D5
7318 D10
7319 I10
7320 H13
6313 E8
3364 G8
6315 E7
6316 H4
9305 H11
9306 B13
6319 G9
F382 E13
F337 G9
6322 F12
3330 I6
3376 A13
3332 I7
not used
3333 I6
3334 I7
GND
TO DIGITAL BOARD
7303 C10
5307 E9
7305 C11
7306 D12
F310 B2
F311 B2
7309 E11
I317 C3
F358 I1
7312 F11
3352 E4
6307 C7
3354 H11
5V
340V
3355 I9
not used
2V
7317 A10
F323 D7
F324 D12
F325 D13
7321 I9
6314 I10
9301 E10
9304 F9
F333 F13
F334 F9
C300 B8
I338 F11
F383 G1
F302 A12
3375 A12
6325 E10
3377 A13
F347 E13
F348 H1
F349 H1
7304 B11
F308 B1
F309 B1
F354 I1
F355 I1
F312 B7
I318 C11
F315 C7
6306 C4
7314 H5
6308 C7
GND
F321 D12
F322 D13
F364 A12
F366 E8
F367 E8
F326 D8
7322 G12
F329 E7
F331 F13
F373 A12
F374 A12
F335 F9
F338 G6
6324 H12
F305 A7
7301 A11
Bead
GND
F344 G13
F346 E13
I327 F10
I329 F10
I330 F3
F368 E9
F328 E3
F371 G12
F372 G12
I335 F6
I336 F7
F356 C9
I356 H12
F359 I8
7313 G2
F317 C9
7315 I6
GND
0V
F319 C8
F320 C7
not used
F363 G11
I311 B9
I342 I12
I343 H5
I310 B8
F351 H1
I312 B4
I313 B10
I344 H6
I316 B5
F381 F1
I355 I7
I319 C10
F304 A7
F340 G11
F306 A5
GND
not used
1V
F342 G3
F343 G12
I325 E5
I326 E9
I306 A3
I307 G4
I308 B8
I309 B12
F350 H1
F307 A5
F352 H1
F353 I1
I314 B3
I337 F10
I357 H11
F316 C8
F361 I6
F318 C8
1,9V
I349 H10
I350 I5
I334 F11
GND
300V
I352 I10
I353 I13
I354 I12
F384 G1
I300 A6
I301 A11
I302 A6
I339 G7
F339 G8
I321 D5
F341 G13
I323 D11
I324 E3
I304 A10
I305 A10
I315 B10
I303 A8
I361 I8
I332 F7
I340 G4
I345 H8
I351 I6
T1,25A E
F360 I1
I331 F3
F362 G11
not used
I346 H13
GND
I347 H10
I348 I3
F369 E9
I333 F11
I322 D6
TO DVD+RW BASIC ENGINE
I320 C10
GND
32
2317 E3
2318 G5
2319 D8
1304 C9
GND
6307
STPS5L40
F308
5V
GND
F302
F371
3352
0R68
I305
GNDHOT
47p
2315
GNDreg
GND
2K7
3354
2316
3362
680R
GND
GND
47n
7304
TL431
2
1
3
F321
560K
3324
I352
I354
3Vreg
I331
T800mA
1309
19372
F350
I350
F354
33VSTBY
2324
100n
33VSTBY
GND
GND
GND
I319
4K7
3340
1301
I318
10K
3307
F383
12VSTBY
3343
4K7
GND
F384
2306
560u
8SW
1304
T4A
GND
BZX384-C6V8
6322
PDTC124EU
7308
GNDHOT
F381
5VSTBY
F372
5SW
IPFAIL
5VSTBY
GNDHOT
1300
F382
I351
33VSTBY
C300
5V
GND
F343
12V
1N4006GP
6305
GNDreg
1934
EH-B
1
2
3
4
3V3
12V
4V6
BZX384-C8V2
6314
5VSTBY
7311
BC847BW
3336
470R
F360
F312
33R
3372
I356
5VSTBY
3365
3K3
BYT42M
6309
GND
9301
2342
1u
7306
GND
9304
PDTC124EU
2329
100n
5N
2301
2n2
470p
2340
6304
1N4003
1m
2322
10R
3331
1m
2312
GND
500mA
1308
PSC
3304
10K
F362
I306
F323
12V
5Vreg
1n
2307
GND
F356
7307
STP3NC60FP
GNDreg
TL431
7301
2
1
3
1K
3311
I313
5N
47n
2308
F364
5NSTBY
5K6
3332
GND
2n2
2318
I321
I337
1K
3302
F305
12VSTBY
GND
GNDHOT
12V
3349
47R
4301
GNDHOT
I330
220R
3306
F368
2
1
3
3315
8K2
3363
GNDHOT
7305
TL431
4K7
3359
2K2
GNDHOT
10K
3328
5V
6306
1N4006GP
5Vreg
STPS3L60-C2
6310
F317
I345
GND
5V
I353
BF422
7312
GND
22u
2328
2319
1m
GND
BZX79-B33
6318
GND
4R7
3319
3347
4K7
9
I349
10
11
12
13
14
15
16
17
18
2
3
5
7
SRW28EC9-E02V0133
5300
7314
TCET1108G
14
32
I327
BC847BW
7310
F306
3364
10K
5N
F325
I302
I348
F351
6311
1N4003
VGNSTBY
I314
12V
GNDHOT
GNDHOT
I347
1K
3303
GND
I301
F331
I343
I323
SB340
6303
F336
I332
BAS316
6320
GND
7321
PDTC124EU
3301
3M3
F357
3M3
3300
330K
3310
GND
2341
1u
F346
2335
10u
GND
I310
BAV21
6316
F341
GNDHOT
1K
3317
GND
F310
F300
7322
BC857BW
3338
220R
6313
SBYV27-200
I346
F324
F333
GND
3308
330K
100n
2336
3333
4K7
F315
3368
3K3
GND
6325
1N5819
3342
4K7
F352
2325
22u
F322
1K
3337
3316
4K7
I315
5308
22u
STPS5L40
6308
820R
3360
1K
3314
ION
2334
100n
1N4006GP
6301
F340
F313
I336
2303
1n
GND
F342
I307
I324
F358
2314
680K
3305
100n
2321
F361
12VSTBY
2327
100n
TL431
7315
2
1
3
I312
I329
I311
560u
2313
5N
680R
3348
12V
I335
10R
3358
GND
GND
F355
GND
3V3
3312
220R
BYD33D
6319
F359
I339
6321
BAT254
1K8
3367
470R
3335
F366
6317
BYD33D
I303
2317
1n
6300
SB340
F314
I317
100u
2323
BC846B
7319
F344
5309
22u
68K
3344
3346
I334
6302
1N4006GP
2K2
I325
5304
GND
GND
100n
2331
68u
2309
3V3
I333
GND
GND
I357
47n
2305
1m
GND
2333
47R
3355
F307
330K
3309
GNDHOT
GND
1K5
3366
GNDHOT
2K7
3353
I342
F353
5Vreg
GND
7313
3
CTRL
4
DEMAG
DRAIN
8
6
DRIVER
2
GND HVS
7
SENSE
5
1
VCC
3356
820R
47R
3371
TEA1507
4V6
GND
F367
1K
3361
F316
3V3
I361
HF2022R
5302
3376
470R
I304
3374
470R
F304
1933
PH-B
1
2
3
4
5
6
7
8
I326
3Vreg
0R47
3321
F369
GND
GNDHOT
100n
2338
1n
2311
3330
470R
F334
GND
I344
220K
3323
220n
2302
GND
F348
T1A
1303
MRT
3327
1M2M2
3329
F373
MRT
1307
T1A
F339
15K
3345
F311
GND
STD17NF03L
7317
1
2
I338
2330
9452A
1931
GNDHOT
1n
23
F374
F320
7303
STS9NF30L
56
78
4
1
SI2306DS
7320
3322
47R
2337
10p
470R
3377
56K
3334
F319
GND
GND
GND
2
3
4
5
6
7
8
9
F301
PH-B
1932
1
10
11
12
I308
9306
9305
3325
F329
2326
10n
47K
4K7
3357
F347
I320
F318
6324
BZX384-C27
3339
4K7
2304
2n2
1K
3350
470R
3375
3318
100R
5V
I355
1M0
3351
68K
3341
F337
F335
12VSTBY
5305
I309
1u
2339
GNDreg
I322
BZX384-C6V8
6312
GND
100K
3313
STP16NF06FP
7302
7318
SI2306DS
1u0
2332
2310
1n
F328
I300
GND
125mA
1306
MP13
F326
SI2312DS
7309
GND
F309
2u2
5306
DSP
1302
6315
BAS316
12V
GND
F349
F363
I340
I316
GND
3373
33R
2320
330u
F338
3326
47R
22u
5307
STBY
5N
STBY
5V
4V6
3V3
12V
3V3
3V3
3V3
3V3
12V
5V
2.5V
4.5V
0.4V
0V
5V
10.4V
8.1V
8.8V
-26.9V
-27.5V
-29.5V
32.8V
33.5V
55V
-5.5V
-5.5V
5V
0.1V
22.2V
22.2V
12V
12V
2.5V
7.7V
3.4V
3.4V
9.3V
2.5V
5.7V
5.2V
7.9V
2.5V
5.7V
5.2V
8.8V
0V
5.1V
0V
20V
F327 VDrain (Standby)
F327 VDrain (no disc loaded)
I324 VDrain (Standby)
I324 VGate (no disc loaded)
I325 VSource (Standby)
I325 VSource (no disc loaded)
A: DC, 50mV/Div
2us/Div
A: DC, 50mV/Div
5us/Div
A: DC, 2V/Div
2us/Div
A: DC, 100V/Div
5us/Div
A
:
DC
,
1
00
V
/
Di
v
2
us
/
Di
v
A: DC, 1V/Div
5us/Div
TR 07007_001
120303

Table of Contents

Related product manuals