EasyManua.ls Logo

Philips DVDR75/001 - Analog Board: Multi Sound Processing (MSP)

Philips DVDR75/001
260 pages
Print Icon
To Next Page IconTo Next Page
To Next Page IconTo Next Page
To Previous Page IconTo Previous Page
To Previous Page IconTo Previous Page
Loading...
Circuit Diagrams and PWB Layouts
EN 115DVDR70 & DVDR75/0x1 7.
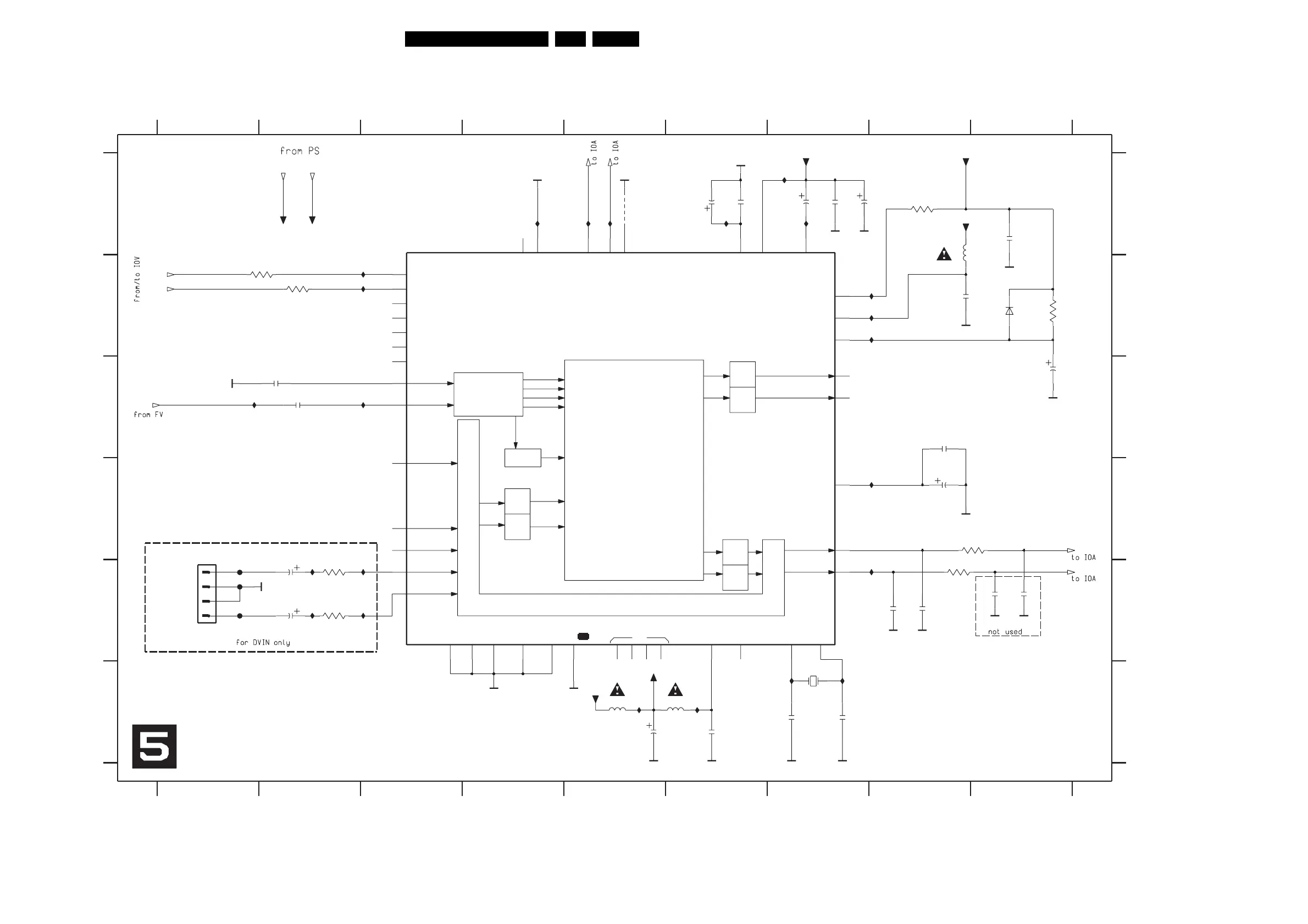
Analog Board: Multi Sound Processing (MSP)
LOUDSPEAKER L
D/A
D/A
I2SL/R
HEADPHONE R
IDENT
NC
SCART
LOUDSPEAKER R
A/D
D/A
DEMODULATOR
S1...4
FM1
FM2
I2SL/R
NICAM B
NICAM A
SCART-L
HEADPHONE L
IDENT
LOUDSPEAKER
A/D
D/A
SCART-L
SCART-R
DFP
SCART-R
Switching Facilities
234561
1234567
2605 F5
2606 B8
2607 C2
2608 C9
2609 C2
2610 C8
GND
F
AA
B
C
D
89
3607 E2
3611 D9
1600 F7
1960 E1
2600 A6
2601 A6
DVAR
7600 A3
QFP44
I607 C1
2616 E8
2617 E8
2618 E9
2619 E9
2620 F7
2611 A7
2612 D8
E
from DV - Board
2627 E2
3600 A8
3601 B2
3602 B9
3603 B2
3606 E2
I624 A5
I625 A5
I630 E2
3612 E8
4601 A5
2602 A7
2603 A7
2604 A9
I631 E2
I608 C3
I609 D8
F6001 E1
F6002 E1
F6004 E1
I601 A7
I602 A4
I603 A6
I604 A7
I605 B8
I610 F7
I611 F7
I612 F5
I613 F6
I614 B8
I615 B3
2621 F7
2623 F6
2626 E2
I620 E3
I621 E3
6600 B9
I623 E8
DVAL
5600 A8
5601 F5
5602 F6
GND
7
B
C
D
E
F
78
9
GND
I616 B3
I617 B8
I611
GND
GND
I614
I609
5600
10u
2623
100n
GND
I607
3602
4K7
GND
4601
GND
GND
I615
GND
I621
2616
1n
GND
F6004
I602
GND
4n7
2619
10u
2602
3611
100R
5SW
5SW
I617
GND
I601
10u
2600
1n
2617
GND
4n7
2618
2609
56p
GND
I605
56p
2607
5602
10u
GND
100n
2606
100R
3612
I624
10u
5601
I631
I620
F6001
I613
I625
GND
I612
3607
1K
10n
2601
5SW
I630
8SW
GND
5SW1
8SW
3601
100R
GND
6600
BAS316
2608
10u
GND
1K
3606
I610
I604
10u
2605
100R
3603
10n
2610
GND
10K
3600
I603
4u7
2612
GND
I608
2620
3p3
3p3
2621
2u2
2627
2603
100n
1
2
3
4
HC-49/U
1600
18M432
VREF2
42
VREFTOP
5
XTAL_IN
6
XTAL_OUT
1960
PH-B
30
SC1_OUT_R
37
SC2_IN_L
38
SC2_IN_R
11
STBYQ
4
TESTEN
7
TP
29
VREF1
25
43
MONO_IN
23 24 28 32
22
RESETQ
40
SC1_IN_L
41
SC1_IN_R
31
SC1_OUT_L
8
D_CTR_IO1
12
I2C_CL
13
I2C_DA
14
I2S_CL
17
I2S_DA_IN1
21
I2S_DA_IN2
16
I2S_DA_OUT
15
I2S_WS
AVSS
1
AVSUP
34
CAPL_M
27
DACM_L
26
DACM_R
20
DVSS
19
DVSUP
9
D_CTR_IO0
18
ADR_CL
10
ADR_SEL
36
AGNDC
35
AHVSS
33
AHVSUP
2
ANA_IN+
3
ANA_IN-
39
ASG
44
MSP3415G
7600
F6002
GND
10n
2604
I623
5SW1
2611
47u
2626
2u2
I616
RSA1
RSA2
AFEL
AFER
SDASW
SCLSW
SIF1
5SW
8SW
5V
5V
1.5V
1.5V
3.8V
3.8V
5V
2.3V 2.2V
3.8V
3.8V
3.8V
5.1V
5.1V
5V
5.9V
7.6V
2.6V
0V
0V
TR 07008_001
120303

Table of Contents

Related product manuals