EasyManua.ls Logo

PIAGGIO 633929(IT) - Devices and Accessories

PIAGGIO 633929(IT)
314 pages
Print Icon
To Next Page IconTo Next Page
To Next Page IconTo Next Page
To Previous Page IconTo Previous Page
To Previous Page IconTo Previous Page
Loading...
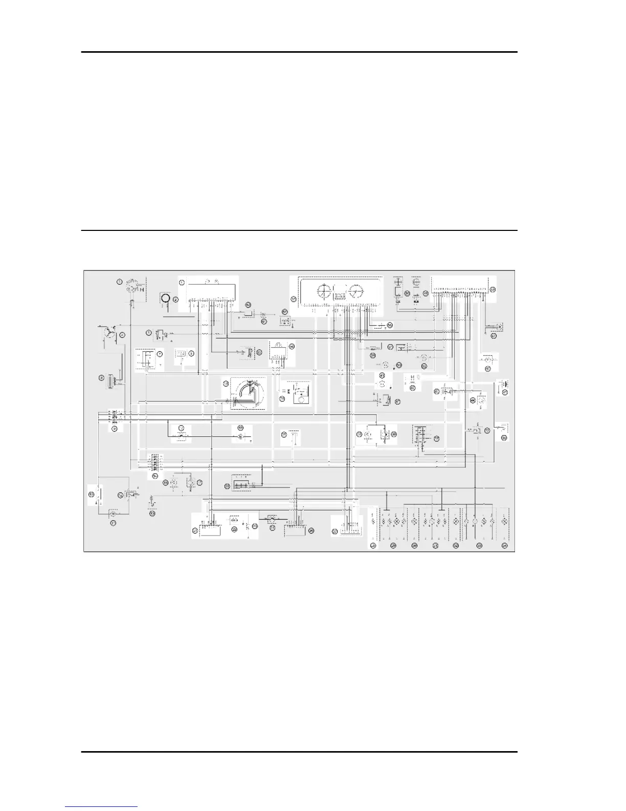
49. Right wheel revolution sensor
50. Left wheel revolution sensor
51. Potentiometer
52. Rider presence sensor
53. Oil pressure sensor
54. External temperature sensor
56. Instrument panel
57. Fuel level transmitter
Devices and accessories
KEY
1. Electronic ignition device
6. Diagnostics socket
7. Engine stop switch
9. Main fuses
10. Battery
14. Secondary fuses
17. Thermoswitch
18. Key switch
19. Radiator electric fan
Electrical system MP3 125
ELE SYS - 8

Table of Contents

Related product manuals