EasyManua.ls Logo

PREVOST H3-45 - Page 232

PREVOST H3-45
282 pages
Print Icon
To Next Page IconTo Next Page
To Next Page IconTo Next Page
To Previous Page IconTo Previous Page
To Previous Page IconTo Previous Page
Loading...
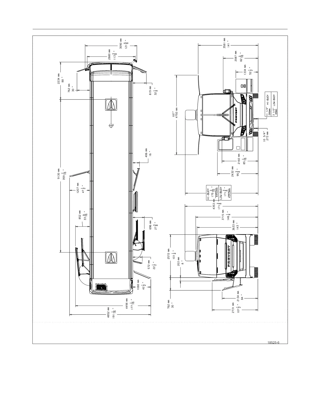
9-6 Technical Information
PA-1628Operator's ManualH3-45 COACH
H3-45 OVERALL DIMENSIONS

Table of Contents