EasyManua.ls Logo

Rottler H85A - Work Envelope Dimensions

Rottler H85A
179 pages
Print Icon
To Next Page IconTo Next Page
To Next Page IconTo Next Page
To Previous Page IconTo Previous Page
To Previous Page IconTo Previous Page
Loading...
Section 5 Operating Instructions H85A Manual
www.rottlermfg.com
5-14
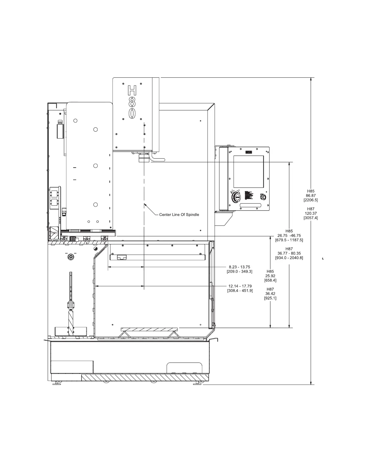
Work Envelope Dimensions
Refer to the dimensions in the illustration below to determine if the machine can handle the intended work
piece.

Table of Contents

Related product manuals