EasyManua.ls Logo

Ruckus Wireless ZoneFlex 7782 - Zoneflex 7762-S-AC Access Point

Ruckus Wireless ZoneFlex 7782
148 pages
Print Icon
To Next Page IconTo Next Page
To Next Page IconTo Next Page
To Previous Page IconTo Previous Page
To Previous Page IconTo Previous Page
Loading...
Getting to Know the Access Point Features
ZoneFlex 7762-S-AC Access Point
Ruckus Wireless Outdoor AP 100.1.0 User Guide, 800-70863-001 Rev A 28
ZoneFlex 7762-S-AC Access Point
NOTE The 100.x AP base images support standalone mode and FlexMaster (FM)
WLAN manager operation. The RuckOS-compatible images only support SCG,
vSCG, and SZ controllers. The ZD-compatible images only support ZD controllers.
The 7762-S-AC requires a minimum of AP base image 100.0.0 and later to operate,
or SCG 1.1 and later, vSCG 2.5 and later, RuckOS 3.2 and later, or ZF 9.4 and later
to operate.
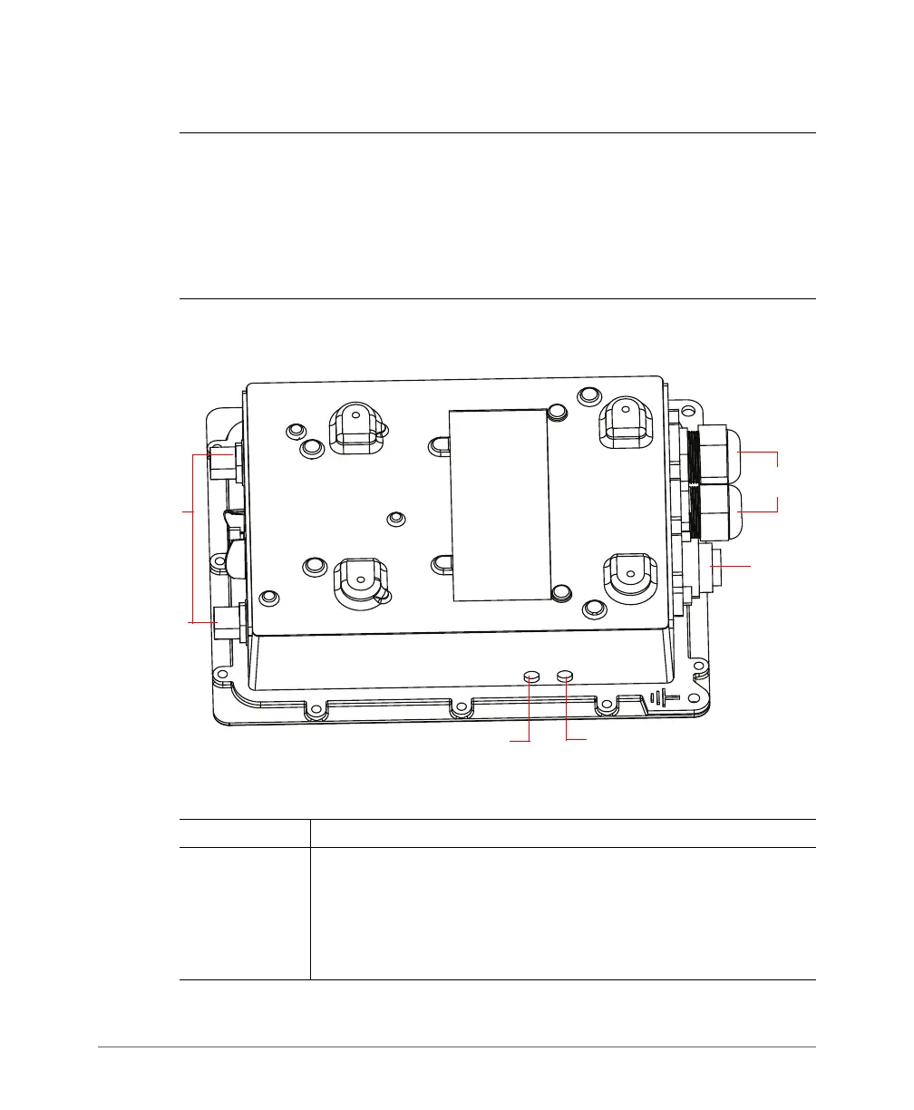
Figure 10 and Figure 11 identify the AP external features.
Figure 10. 7762-S-AC AP parts
Table 9. 7762-S-AC LEDs and connectors
Label Description
Power LED
Off: No power is available, or the AP is not connected to a power
source.
Red: The AP is powering on.
Green: The AP is connected to a power source and has completed
its power-on sequence.
Power LED
Status LED
RJ-45/PoE
Connectors
5GHz External
Antenna
Connectors
AC Power
Connector

Table of Contents

Other manuals for Ruckus Wireless ZoneFlex 7782

Related product manuals