EasyManua.ls Logo

Sames PPH 607 - Page 43

Sames PPH 607
89 pages
Print Icon
To Next Page IconTo Next Page
To Next Page IconTo Next Page
To Previous Page IconTo Previous Page
To Previous Page IconTo Previous Page
Loading...
Revised A 43 6301
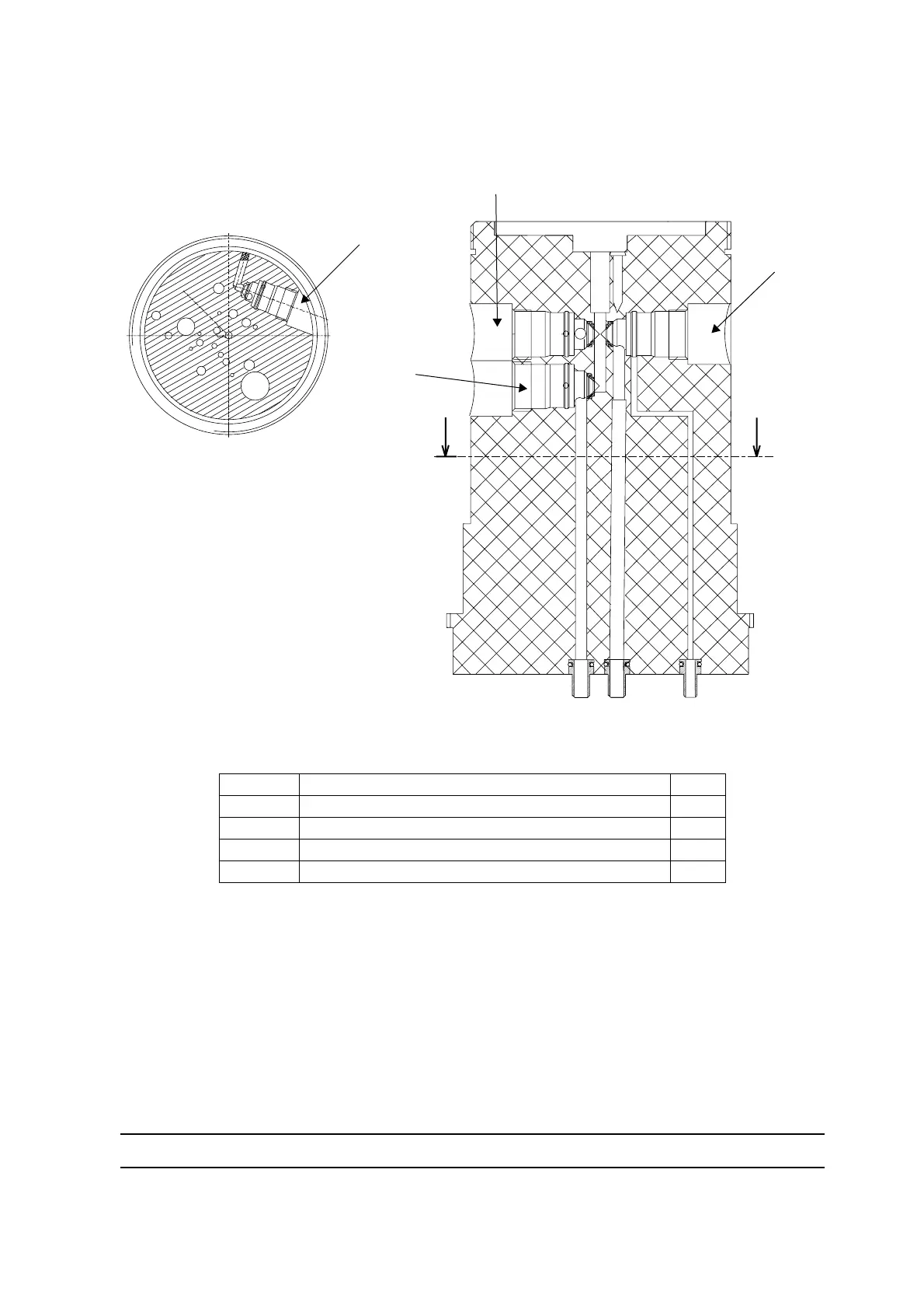
5. Maintenance (continued)
5.3.6 Nano-valve (continued)
Item Function Qty
1 Paint trigger nano-valve (11) 1
2 Dump nano-valve (41) 1
3 Injector wash nano-valve (32) 1
4 Bellcup wash nano-valve (31) 1
B
B
B-B
DES01654
1
4
3
2

Table of Contents