EasyManua.ls Logo

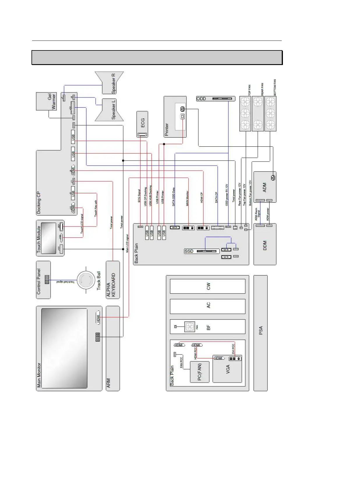
Samsung HS70A - Interconnect Diagram

Samsung HS70A
271 pages
Print Icon
To Next Page IconTo Next Page
To Next Page IconTo Next Page
To Previous Page IconTo Previous Page
To Previous Page IconTo Previous Page
Loading...
5 - 36 HS70A Service Manual
Interconnect Diagram

Table of Contents

Related product manuals