EasyManua.ls Logo

ShopBot PRSalpha - Page 90

ShopBot PRSalpha
93 pages
Print Icon
To Next Page IconTo Next Page
To Next Page IconTo Next Page
To Previous Page IconTo Previous Page
To Previous Page IconTo Previous Page
Loading...
.000
36.250
2
6
7
1
.000
3.375
25.740
42.410
65.500
87.745
133.625
104.415
144.000
.000
76.500
(60.0)
(120.0)
83.0
18.0
42.0
83.0
37.0
37.0
6.75
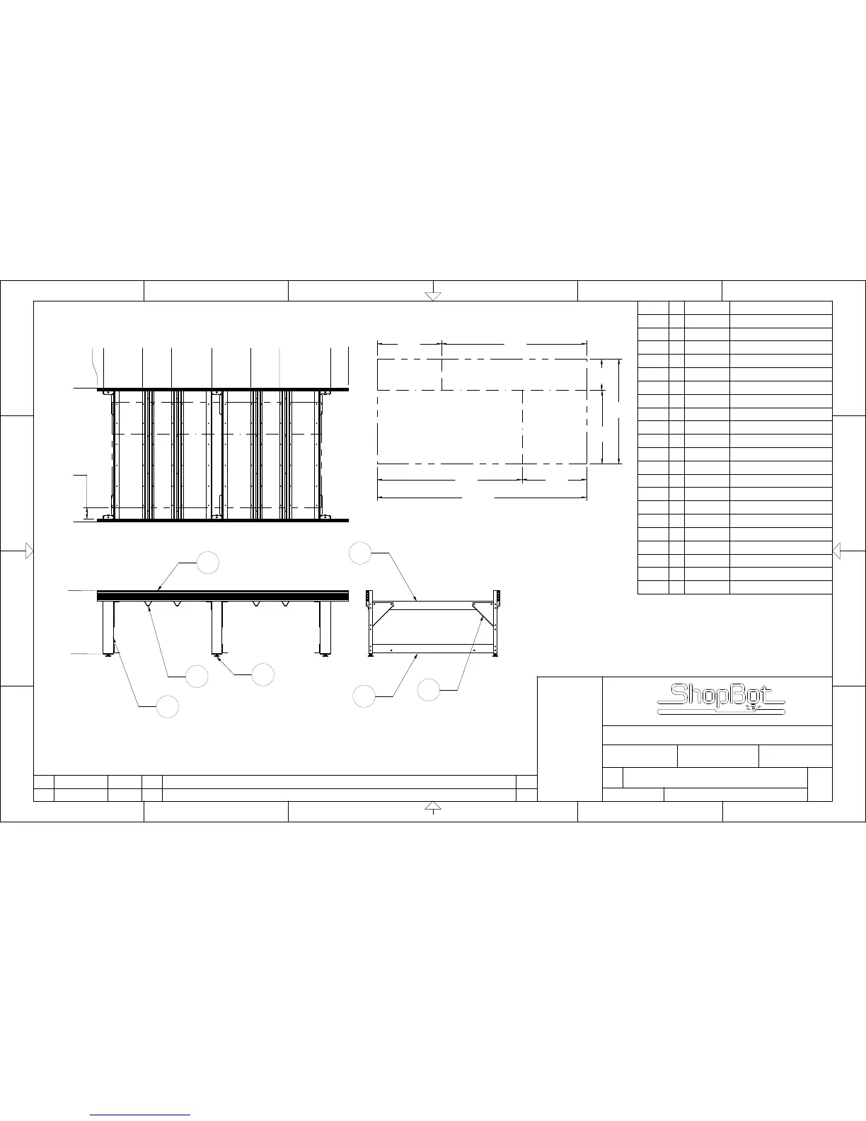
DECK
ONLY
VIEW A
SEE NOTE 2
4
3
5
Item No. Qty Part Number Description
1 2 001550-01 TABLE SIDE 120E
2 6 000919-01 TABLE LEG 6E
3 6 000770-01 TABLE GUSSET
4 4 001486-01 TABLE SUPPORT UPPER 60E
5 3 001487-01 TABLE SUPPORT LOWER 60E
6 4 001485-01 TABLE SUPPORT CROSS 60E
7 6 000661-01 MACHINE GLIDE
8 6 000160-01 NUT HEX 5/8-11 Z5
9 6 000845-01 WASHER LOCK 5/8 Z
10 80 000727-01 NUT T HEAVY DUTY 5/16-18
11 80 000529-01 HCS 5/16-18 X 3/4 Z5
12 80 000848-01 WASHER FLAT 5/16 Z USS
13 40 001956-01 HCS 1/2-13 X 1 1/2 Z5
14 40 000440-01 NUT HEX 1/2-13 Z
15 80 000029-01 WASHER FLAT 1/2 USS Z
16 40 000588-01 WASHER LOCK 1/2 Z
17 56 000953-01 BOLT CARRIAGE 3/8-16 X 1 1/2
18 56 000452-01 NUT HEX 3/8 Z
19 56 000444-01 WASHER FLAT 3/8 USS Z
20 56 000092-01 WASHER LOCK 3/8 Z
21 8 001539-01 TABLE SIDE END CAP
SCALE
SIZE
REV
B
DRAWING NUMBER
PART NUMBER
REV
CHG NOTICE
REVISION DESCRIPTION
10636-00
10636-01
0
06/20/07
DGC
BY
DATE
INITIAL PRODUCTION RELEASE
DGC
06/20/07
0
Durham, North Carolina
TABLE 120-60-8S
DRAWN
CHECKED
DATE
APPROVED
TITLE
APVD
NONE
21
D
C
B
21
©2004, SHOPBOT TOOLS, INC., ALL RIGHTS RESERVED
3456
3456
AA
D
C
B
THIS DOCUMENT CONTAINS CONFIDENTIAL
INFORMATION OF SHOPBOT TOOLS. IT IS
NOT TO BE REPRODUCED BY ANY MEANS OR
USED TO FURNISH INFORMATIONTO OTHERS
WITHOUT THE EXPRESS CONSENT TO THE
OWNER. THE INFORMATION SHALL BE USED BY
RECIPIENTS ONLY AS EXPRESSLY APPROVED
BY OWNER AND THIS DOCUMENT SHALL BE
RETURNED TO OWNER UPON REQUEST.
©2004, SHOPBOT TOOLS, INC.,
ALL RIGHTS RESERVED
NOTES:
1. ALL DIMENSIONS ARE IN INCHES.
2. RECOMMENDED SIZE AND ORIENTATION
OF DECK MATERIAL.

Table of Contents

Other manuals for ShopBot PRSalpha

Related product manuals