EasyManua.ls Logo

Siemens 6SL3120-2TE21-0AA3

Siemens 6SL3120-2TE21-0AA3
499 pages
To Next Page IconTo Next Page
To Next Page IconTo Next Page
To Previous Page IconTo Previous Page
To Previous Page IconTo Previous Page
Loading...
Motor Modules Booksize
6.3 Motor Module with external air cooling
Booksize Power Units
414 Manual, (GH2), 04/2014, 6SL3097-4AC00-0BP6
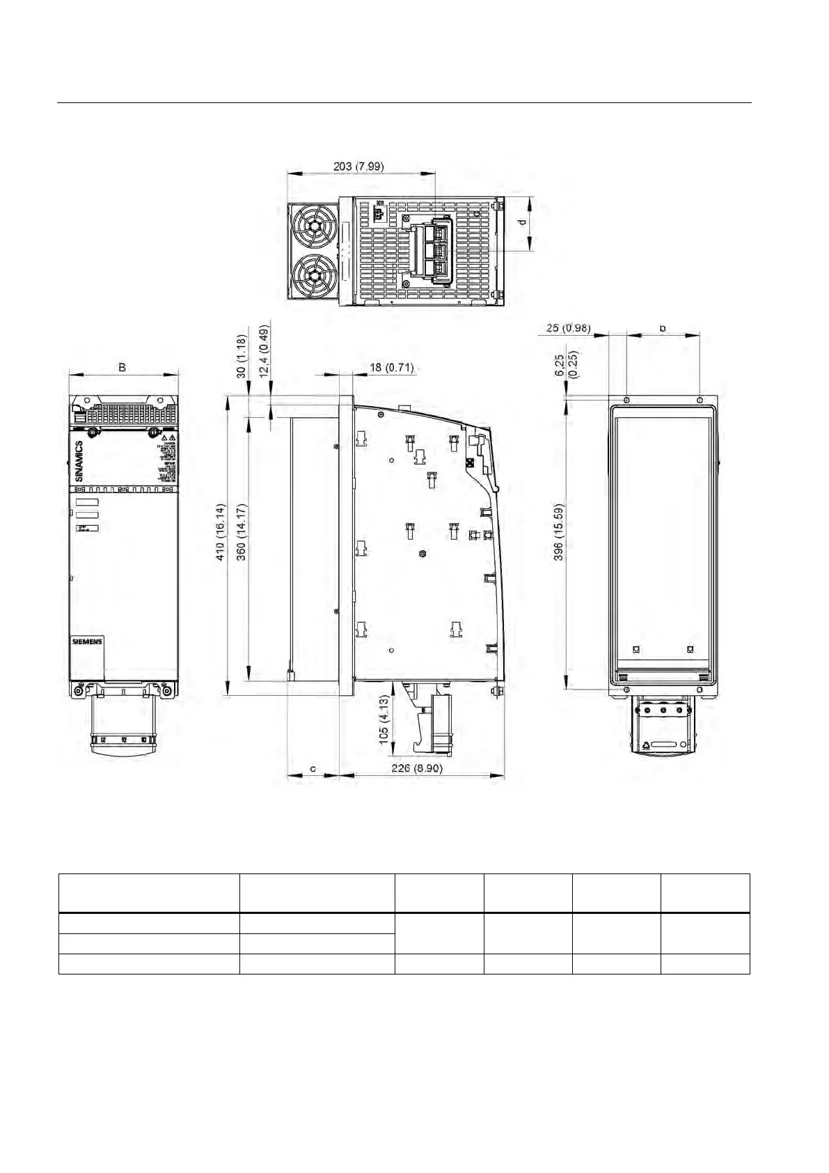
Figure 6-40 Dimension drawing of 45 A, 60 A and 85 A Motor Modules Booksize with external air cooling, all dimensions in
mm and (inches); example 45 A
Table 6- 24 Dimensions of 45 A, 60 A and 85 A Motor Modules Booksize with external air cooling
Motor Module
Order number
B [mm]
(inches)
b [mm]
(inches)
c [mm]
(inches)
d [mm]
(inches)
Single Motor Module 45 A
6SL3121-1TE24-5AAx
150 (5.91)
100 (3.94)
71 (2.80)
75 (2.95)
Single Motor Module 60 A
6SL3121-1TE26-0AAx
Single Motor Module 85 A
6SL3121-1TE28-5AAx
200 (7.87)
150 (5.91)
92 (3.62)
100 (3.94)
Artisan Technology Group - Quality Instrumentation ... Guaranteed | (888) 88-SOURCE | www.artisantg.com

Table of Contents

Related product manuals