EasyManua.ls Logo

Siemens 6SL3120-2TE21-0AA3

Siemens 6SL3120-2TE21-0AA3
499 pages
To Next Page IconTo Next Page
To Next Page IconTo Next Page
To Previous Page IconTo Previous Page
To Previous Page IconTo Previous Page
Loading...
Motor Modules Booksize
6.3 Motor Module with external air cooling
Booksize Power Units
Manual, (GH2), 04/2014, 6SL3097-4AC00-0BP6
415
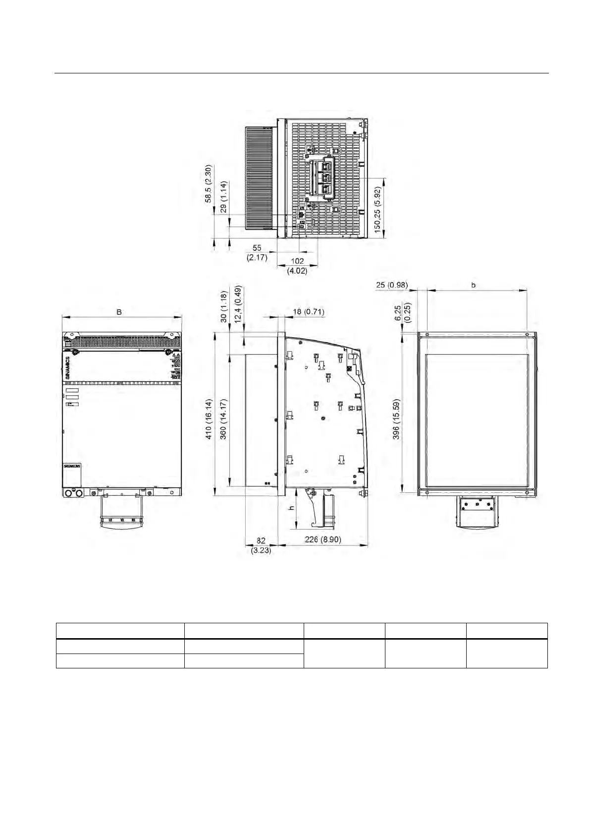
Figure 6-41 Dimension drawing of 132 A and 200 A Motor Modules Booksize, all dimensions in mm and (inches);
example: 200 A Single Motor Module
Table 6- 25 Dimensions of 132 A and 200 A Motor Modules Booksize with external air cooling
Motor Module
Order number
B [mm] (inches)
b [mm] (inches)
h [mm] (inches)
Single Motor Module 132 A 6SL3121-1TE31-3AAx
300 (11.81)
250 (9.84)
105 (4.13)
Single Motor Module 200 A
6SL3121-1TE32-0AAx
Artisan Technology Group - Quality Instrumentation ... Guaranteed | (888) 88-SOURCE | www.artisantg.com

Table of Contents

Related product manuals