EasyManua.ls Logo

Siemens Simatic S7-300 - Module View and Block Diagram of the SM

Siemens Simatic S7-300
574 pages
To Next Page IconTo Next Page
To Next Page IconTo Next Page
To Previous Page IconTo Previous Page
To Previous Page IconTo Previous Page
Loading...
Digital Modules
3-85
Programmable Logic Controllers S7-300 Module Data
A5E00105505-03
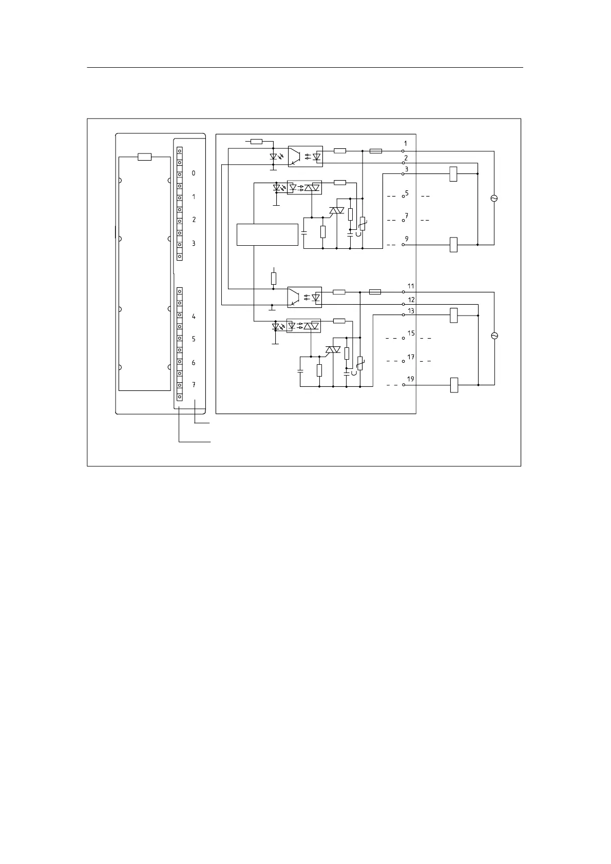
Terminal assignment and block diagram of the SM 322; DO 8 x 120/230 VAC/2 A
Backplane bus
interface
2L
1L
M
M
2N
1N
Channel number
Status display – green
SF
* Zero cross inhibit voltage triac
Fault indicator – red
*
*
5 V
M
M
SF
5 V
Figure 3-28 Module View and Block Diagram of the SM 322; DO 8 x 120/230 VAC/2 A

Table of Contents

Other manuals for Siemens Simatic S7-300

Related product manuals