EasyManua.ls Logo

Siemens Simatic S7-300 - Module View of the Simulator Module SM 374; IN;OUT 16

Siemens Simatic S7-300
574 pages
To Next Page IconTo Next Page
To Next Page IconTo Next Page
To Previous Page IconTo Previous Page
To Previous Page IconTo Previous Page
Loading...
Special Signal modules
5-4
Programmable Logic Controllers S7-300 Module Data
A5E00105505-03
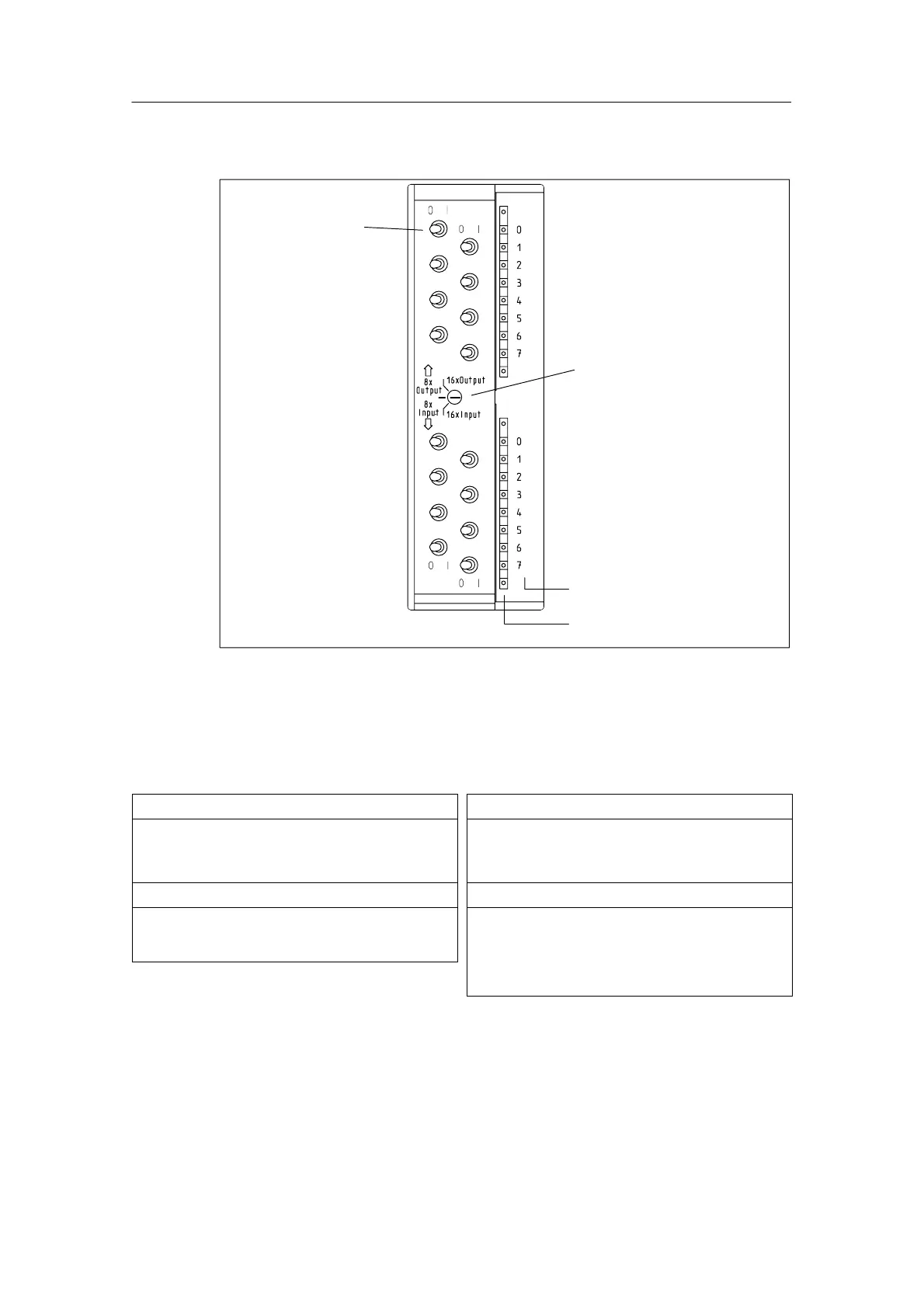
Module view (without front door)
Status display – green
Channel number
Switch for input status
Switch for setting the function
Figure 5-1 Module view of the simulator module SM 374; IN/OUT 16
Technical specifications of the SM 374; IN/OUT 16
Dimensions and Weight
Dimensions W x H x D
(in millimeters)
40 125 110
Weight Approx. 190 g
Data for Specific Module
Optional simulation of 16 inputs
16 outputs
8 in– and outputs
Voltages, Currents, Potentials
Current consumption from the
backplane bus
max. 80 mA
Power dissipation of the module type. 0.35 W
Status, Interrupts, Diagnostics
Status display yes, green LED per
channel
Interrupts No
Diagnostic functions No

Table of Contents

Other manuals for Siemens Simatic S7-300

Related product manuals