EasyManua.ls Logo

SUNWARD SWL3210 - Other Data; Electric Diagram

SUNWARD SWL3210
89 pages
Print Icon
To Next Page IconTo Next Page
To Next Page IconTo Next Page
To Previous Page IconTo Previous Page
To Previous Page IconTo Previous Page
Loading...
SWL Series Skid Steer Loader
85
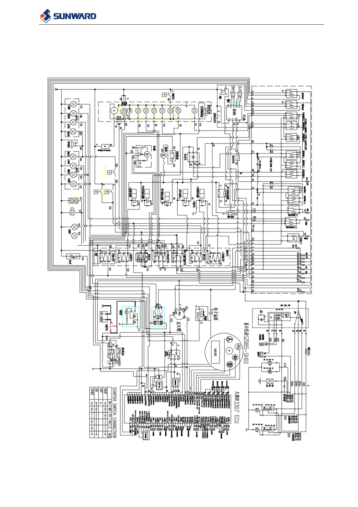
7 OTHER DATA
7.1 ELECTRIC DIAGRAM

Table of Contents

Other manuals for SUNWARD SWL3210

Related product manuals