EasyManua.ls Logo

Teknim PARS Series - Pgm Connection

Teknim PARS Series
81 pages
Print Icon
To Next Page IconTo Next Page
To Next Page IconTo Next Page
To Previous Page IconTo Previous Page
To Previous Page IconTo Previous Page
Loading...
TEKNİM PARS SERIES INTRUDER ALARM SYSTEM INSTALLATION AND PROGRAMMING MANUAL
19 / 81
The TSP-5208 Alarm Panel can be connected to both TXM-5270 PSTN and TXM-5272 GSM / GPRS
Module simultaneously to back up communication. To do this, two modules should be mounted on
top of each other and cable connections should be made as shown above.
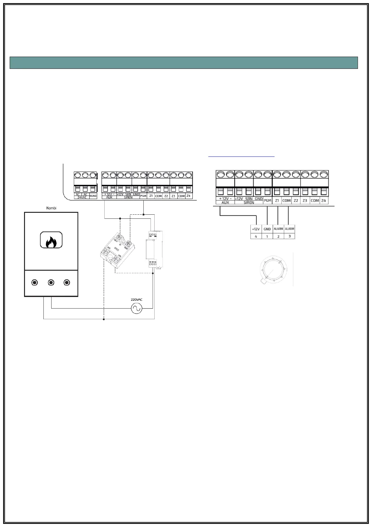
6.7 PGM CONNECTION
Teknim PARS series panels have 1 PGM output. This output can be used and programmed for a
variety of purposes, such as operating any device in the form of On - Off or resetting via the keypad
in case of smoke detectors connected to the system.
Attention should be paid to the current to be drawn from the PGM output, a relay with a contact
suitable for the load to be controlled should be used if the current does not exceed the maximum
PGM output current. (PGM 500mA, maks.)
Detailed information about programming can be found in 7.4.4 PGM Settings.
Figure 17: PGM ON OFF Connection and Smoke Detector Connection
Detector Base
Smoke Detector

Table of Contents

Related product manuals