EasyManua.ls Logo

Teletek electronics AVA - System Status and Troubleshooting; Reviewing System Technical Troubles

Teletek electronics AVA
64 pages
Print Icon
To Next Page IconTo Next Page
To Next Page IconTo Next Page
To Previous Page IconTo Previous Page
To Previous Page IconTo Previous Page
Loading...
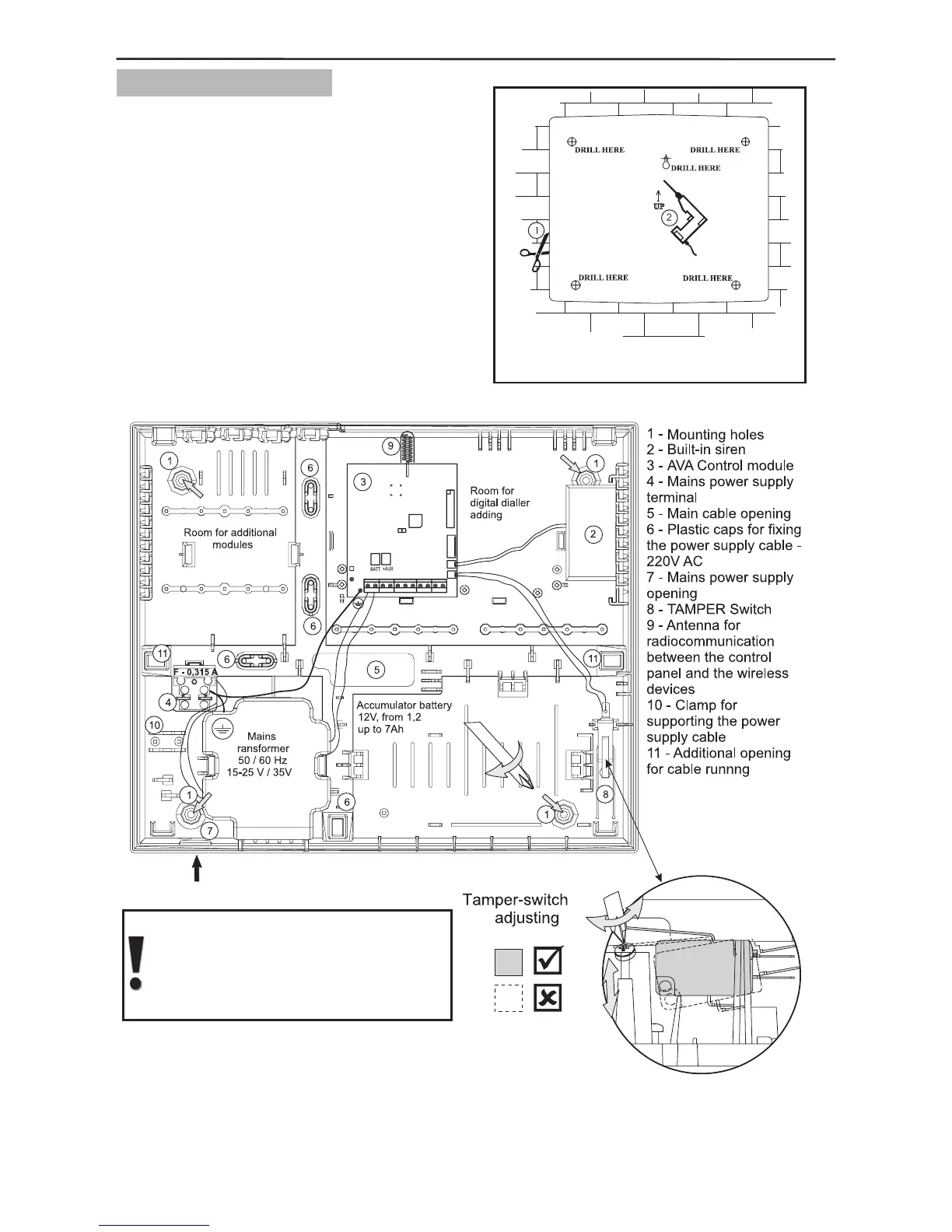
12 2. System Installation
2.2.2 Box Installation
1. Use the provided prole board (see
the back of the packaging) to drill mounting
openings (6 - 8 mm) at the installation
location - Figure 10.
For mounting onto a brick wall it is
recommended to use 4,2x35 DIN 7981
screws and 6x30 UN 9802 plugs.
2. Install the back of the box on the wall
and adjust the tamper-switch as shown in
Figure 11.
Adjust the temper-switch with
the help of the screw below it so
as viewed from aside to be
horizontal.
Figure 11. Location of the modules in the box and the electrical
connections among them.
Template
Figure 10.

Table of Contents

Other manuals for Teletek electronics AVA

Related product manuals