EasyManua.ls Logo

Teletek electronics AVA - Detector Groups Programming

Teletek electronics AVA
64 pages
Print Icon
To Next Page IconTo Next Page
To Next Page IconTo Next Page
To Previous Page IconTo Previous Page
To Previous Page IconTo Previous Page
Loading...
40 3. Programming
3.4 Programming Detector Groups
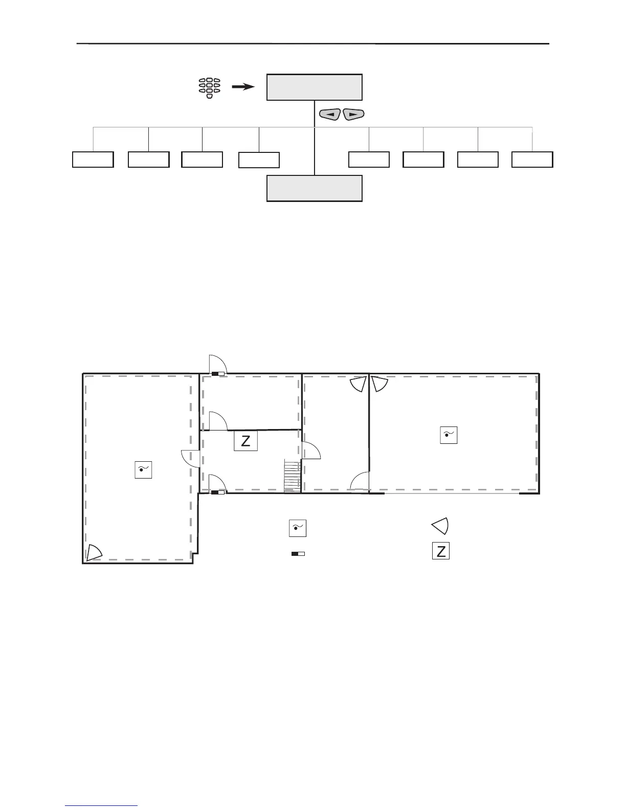
The system provides exible organization of the different sensor groups which can be
Armed/Disarmed with the help of functions.
For better clarity we shall illustrate how the groups are determined with the example
given in Figure 9, page 11 in the beginning of this manual.
Example of grouping sensor areas and
programming Arm/Disarm functions:
The conguration includes:
1 control panel, 3 infrared detectors, 2 re detectors and 2 magnetic contacts.
Group areas:
GROUP 1: Rooms 2 + 3
Detectors: МС1 + МС2
Type: Entry/Exit
GROUP 2: Room 1 + Garage
Detectors: PIR1 + PIR2 + FIRE1
Type: Instant
GROUP 3: Room 4
Detectors: PIR3 + FIRE2
Type: Instant
Engineer
code- 7777
Engineer Menu
Engineer Menu
5)Group
1
2
3
4
6789
GarageRoom 1Room 2
Room 3
Room 4
GROUP 2
GROUP 1
GROUP 3
LEGEND:
Fire Detector
Magnet Contact
PIR Detector
Control Panel
PIR1PIR2
PIR3
FIRE1
FIRE2
MC1
MC2

Table of Contents

Other manuals for Teletek electronics AVA

Related product manuals