EasyManua.ls Logo

Thermal Dynamics PAK 200 - Page 101

Thermal Dynamics PAK 200
114 pages
Print Icon
To Next Page IconTo Next Page
To Next Page IconTo Next Page
To Previous Page IconTo Previous Page
To Previous Page IconTo Previous Page
Loading...
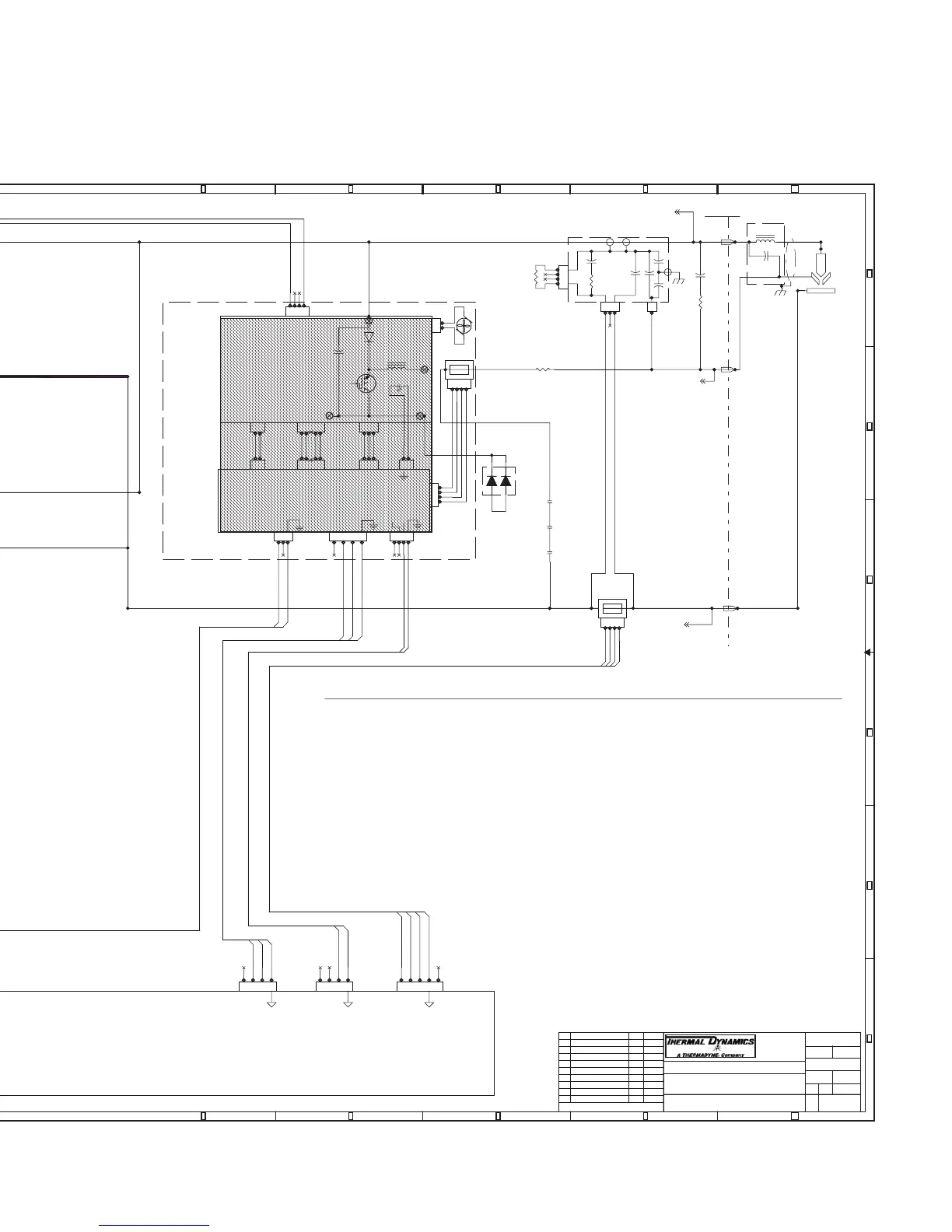
Manual 0-5057 A-9 APPENDIX
1
1
2
2
3
3
4
4
5
5
6
6
7
7
8
8
9
9
10
10
A A
B B
C C
D D
E E
F F
/ 460
COMMON
Isense_W
/ 460
Iref_G
P1
P_ref
460
P_ref
P_ena
230
GNDW
COM
GND_C
PGND2
Isense_W
/ 230
-15Vw
TEMP_C
I_senseP
INPUT_NG
-15V
+5V
GND
+15V
Iref_G
+15V
GNDW
+15Vw
P_ena
GND_C
PGND1
TEMP_C
+15V
MISSING_PHASE
COM_A
GNDP
230_A
N2
+15Vw
GNDP
460_A
+12V
-15Vw
I_senseP
-12V
SIGNAL
TORCH (-)
PILOT
WORK (+)
E
L1
L2
L3
+12VDC+12VDC
+15V
+12VDC
To PCB7 TB3
To T1 PRI - 0
FAN + (24 VDC)
NEG ARC VOLTS
To PCB7 CN2-5
FAN - (24 VDC)
WORK
From CN9 on PCB7
To PCB7 CN2-4
To PCB7 CN2-2
To PCB7 CN2-1
PILOT (TIP) VOLTS
DWG No:
Sheet
of
SupersedesScale
Date:
Drawn: References
Date
By
RevisionsRev PCB No:
Assy No:
Information Proprietary to THERMAL DYNAMICS CORPORATION.
Not For Release, Reproduction, or Distribution without Written Consent.
NOTE: UNLESS OTHERWISE SPECIFIED -
1. RESISTOR VALUES ARE EXPRESSED IN OHMS, 1/4W 5%.
2. CAPACITOR VALUES ARE EXPRESSED IN MICROFARADS (uF).
Chk: App:
TITLE:
Last Modified:
Size
SCHEMATIC,
AA
42X1311
Friday, January 18, 2008
1 2
INDUSTRIAL PARK #2
WEST LEBANON NH, 03784
603-298-5711
PAK 200 Power Supply 208-230/460V
Thursday, January 10, 2008
12:19:03
THERMAL DYNAMICS
D
DWG No:
Sheet
of
SupersedesScale
Date:
Drawn: References
Date
By
RevisionsRev PCB No:
Assy No:
Information Proprietary to THERMAL DYNAMICS CORPORATION.
Not For Release, Reproduction, or Distribution without Written Consent.
NOTE: UNLESS OTHERWISE SPECIFIED -
1. RESISTOR VALUES ARE EXPRESSED IN OHMS, 1/4W 5%.
2. CAPACITOR VALUES ARE EXPRESSED IN MICROFARADS (uF).
Chk: App:
TITLE:
Last Modified:
Size
SCHEMATIC,
AA
42X1311
Friday, January 18, 2008
1 2
INDUSTRIAL PARK #2
WEST LEBANON NH, 03784
603-298-5711
PAK 200 Power Supply 208-230/460V
Thursday, January 10, 2008
12:19:03
THERMAL DYNAMICS
D
DWG No:
Sheet
of
SupersedesScale
Date:
Drawn: References
Date
By
RevisionsRev PCB No:
Assy No:
Information Proprietary to THERMAL DYNAMICS CORPORATION.
Not For Release, Reproduction, or Distribution without Written Consent.
NOTE: UNLESS OTHERWISE SPECIFIED -
1. RESISTOR VALUES ARE EXPRESSED IN OHMS, 1/4W 5%.
2. CAPACITOR VALUES ARE EXPRESSED IN MICROFARADS (uF).
Chk: App:
TITLE:
Last Modified:
Size
SCHEMATIC,
AA
42X1311
Friday, January 18, 2008
1 2
INDUSTRIAL PARK #2
WEST LEBANON NH, 03784
603-298-5711
PAK 200 Power Supply 208-230/460V
Thursday, January 10, 2008
12:19:03
THERMAL DYNAMICS
D
RIBBON CABLE SIGNALS
CN6 - 16 Ckt Ribbon Cable
2,4- I_REF (Scaled Cut Demand)
5- PS_START (Start)
6- REDUNDANT_START (Start2)
8- INV_READY
9- / PS_START disabled by Input_NG
12- / OCR
13- / PS_START disabled by OCR
14- /TEMP_ERR
15- / PS_START disabled by Temp _Err
RAS
< /OVER_TEMP
(C7 & A9,Sht 2)
--230--
--230--
(C7, Sht 2)
208-230/460 VAC 3 Phase
CN4
CN6
CN5
CN1
DETECTOR PCB
BIAS SUPPLY PCB
(C7 & A9,Sht 2)
INPUT POWER
INDICATOR
REAR PANEL
CN5
> P_DEM (P_Iref)
INPUT POWER
INDICATOR
INTERNAL
VAC_IN
(A1 Sht2)
(A1 Sht2)
> P_Enable (P_ena)
CN6
FILTER PCB
INTERFACE PCB
P_GND
PILOT REG.
(CHOPPER )
PCB2
WK-5754
(A1 Sht 2)
(A1 Sht 2)
BIAS
POWER
HALL SENSOR
C1 Capacitor, 0.1 uf, 1250 VDC (D2, Sht 2)
C2 Capacitor, 2 uf, 430VAC (A9, Sht 1)
C.P1 Circuit protector/ON-OFF SW (B2, Sht 1)
15A, 460V, 3P
C.P2 Circuit protector 2.5A 125V (D2, Sht 1)
C.P3 Circuit protector 3.15A 125V (D2, Sht 1)
C.P4 Circuit protector 10A 125V (E2, Sht 1)
C.P5 Circuit protector 2.5A 125V (E2, Sht 1)
C.P6 Circuit protector 2.5A 125V (F2, Sht 1)
C.P7 Circuit protector 5A 125V (E2, Sht 1)
C.P8 Circuit protector 3.15A 125V (F3, Sht 1)
D1 Diode Bridge 20A, 1600V, 3P (D2, Sht 1)
D2 Diode, Dual, 2x100A, 600V (B8, Sht 1)
FAN1 Fan, Coolant, 24 VDC (F4, Sht 2)
FAN3 Fan, Chopper, 24 VDC (A8, Sht 1)
FL1 Flow sensor (B5, Sht 2)
(D2, Sht 2)
V_CHANGE PCB
I_DET
HCT1 Hall Current Sensor, Pilot (B8, Sht 1)
HCT2 Hall Current Sensor, Work (C9, Sht 1)
LSW1 Level SW, coolant, NC (B5, Sht 2)
MC1 Contactor, 3P ,Inv 1 input, Coil (B3, Sht 2)
" Contacts (A2, B2, Sht 1)
" Aux Contact (B3, Sht 2)
MC2 Contactor, pilot, Coil (B3, Sht 2)
" Contacts (C8, Sht 1)
MC3 Contactor, 3P ,Inv 2 input, Coil (B3, Sht 2)
" Contacts (B2,C2, Sht 1)
" Aux Contact (B3, Sht 2)
MOT1 Motor, Pump 200VAC, 1P (E4, Sht 2)
NE1 Neon indicator, rear panel, 220VAC (C1, Sht 1)
NE2 Neon indicator, internal, 220VAC (D1, Sht 1)
R1 a-f Resistor, Pilot, 0.6, 300W , (B8, sht 1)
(6 in series)
R6 Resistor, 20K ,30W (A8, Sht 1)
R7 Resistor, 1K ,30W (E2, Sht 2)
R9 Resistor, 50 ,40W (A9, Sht 1)
T1 Aux Transformer (D-F1, Sht 2)
TH1 Thermal Sensor, coolant return (B5, Sht 2)
ON / OFF
<
LINE to LINE,
LINE TO GND
CAPS & VARISTORS
I_SE
PILOT REG.
(CHOPPER )
PCB1
WK-5750
<
PCB 1
WK-5630
HALL SENSOR
COMPONENT LOCATOR
16 CKT RIBBON CABLE
100A INVERTER MODULE # 1 (top)
PILOT CURRENT SIGNAL <
WORK CURRENT SIGNAL <
/ OVERTEMP <
CN6
MISSING PHASE
(pulses)<
PCB 5 WK-5602 (partial)
LED1 DIM = LOW, BRIGHT = OK
LED2 DIM = OK, BRIGHT = FAULT
LED3 DIM = OK, BRIGHT = FAULT
LED4 OFF = OK, ON = FAULT
LED5 OFF = OK, ON + FAULT
/PILOT ENABLE >
PILOT DEMAND >
CN6 16 CKT
CN6
PILOT REGULATOR
(CHOPPER)
VAC_IN
P_GND
Power Supply
Rear Panel
PCB4 WK-5604
PCB3 WK-5694
BIAS SUPPLY
FOR PCB5
(F2 -Sht2)
100A INVERTER MODULE # 2 (bottom)
(same as #1)
--460--
For this
version
of the
power supply
Pilot
Regulator
is not used
except to
provide power
and pass
signals from
HCT1, the
pilot current
sensor.
Pilot
Resistors,
R1a-f, are
used instead.
DC FAN
POWER
(A2 Sht 2)
(A2 Sht 2)
PCB 8
WK-5687
RC &
RF CAPS
DAT
ECO-B731 (REL) DAT
1-18-08
AC
AC
AC
+-
D1
AC
AC
AC
+-
D1
CN32CN32
1
2
3
4
C.P1C.P1
CN4CN4
1
2
3
4
5
P (+)P (+)
TB2TB2
CN7CN7
1
2
3
4
5
P1P1
CN3CN3
1
2
MC3-AMC3-A
CN1-230VCN1-230V
1
2
3
4
INRUSHINRUSH
CN3CN3
1
TB3TB3
MC3-BMC3-B
NE1NE1
+
RY2
RY2
+
RY2
RY2
N (-)N (-)
MC1-CMC1-C
CN2-460VCN2-460V
1
2
3
4
CN1CN1
1
2
3
4
TB3TB3
CN33CN33
1
2
3
4
MC1-BMC1-B
CN1CN1
1
2
N2N2
CN32CN32
1
2
3
4
MC2-CMC2-C
CN4 - PCB12CN4 - PCB12
1
2
3
4
CN17CN17
1
2
3
CN4CN4
1
4
- +- +
3
1
2
4
TT
LED2
MISSING PHASE
LED2
MISSING PHASE
CN10CN10
1
2
CN3CN3
1
2
3
4
CN2CN2
1
2
3
4
HCT2HCT2
1
2
3
4
N (-)1N (-)1
CN1CN1
1
2
3
4
MC3-CMC3-C
MC1-AMC1-A
1
2
34
CN9CN9
1
2
CN3CN3
1
2
NE2NE2
TB1TB1
WORKWORK
RR
TB4TB4
CN1CN1
1
5
8
CN2CN2
1
2
3
R1 a-f 3.6
(6 x 0.6 in series)
R1 a-f 3.6
(6 x 0.6 in series)
CN1CN1
1
2
3
4
5
6
7
CN1-230V
6
CN1-230V
6
1
2
3
4
C2
2 UF
C2
2 UF
CN2CN2
1
2
3
CN3CN3
1
4
T1T1
CN2-460VCN2-460V
1
2
3
4
FAN3FAN3
+ -
CN4CN4
1
2
3
4
5
P (+)1P (+)1
CN2CN2
1
2
CN18CN18
1
2
3
R9
50
R9
50
THS1
SW_TEMP_NC
THS1
SW_TEMP_NC
HCT1HCT1
1
2
3
4
MC2-BMC2-B
CN4 - PCB1CN4 - PCB1
1
2
3
4
TB2TB2
CN5CN5
1
2
3
4
R6
20K
30W
R6
20K
30W
CN7CN7
1
2
3
4
5
D2D2
1
A1
2
K1
3
A2
4
K2
MC2-AMC2-A
CN6CN6
1
2
3
R1R1
CN2CN2
1
2
3
CN7CN7
1
2
3
4
5
TB2TB2
CN4CN4
1
2
3
+
-
+
-
1
2
3
45
6
CN5CN5
1
2
3
4
SS
LED3
INPUT NG
LED3
INPUT NG
RY2RY2
++
CN8CN8
1
2
LED5
ERROR
LED5
ERROR
CN2CN2
1
2
3
C4C4
TB1TB1
TB1TB1
230V230V
TB4TB4
++
S1S1
TB5TB5
CN4CN4
1
2
3
4
LED4
CHOPPER TEMP
LED4
CHOPPER TEMP
- +- +
3
1
2
4
1
2
3
4
TB1TB1
Art # A-08474
Art # A-08474

Table of Contents

Related product manuals