EasyManua.ls Logo

Tormach AF50+ - Page 112

Tormach AF50+
112 pages
Print Icon
To Previous Page IconTo Previous Page
To Previous Page IconTo Previous Page
Loading...
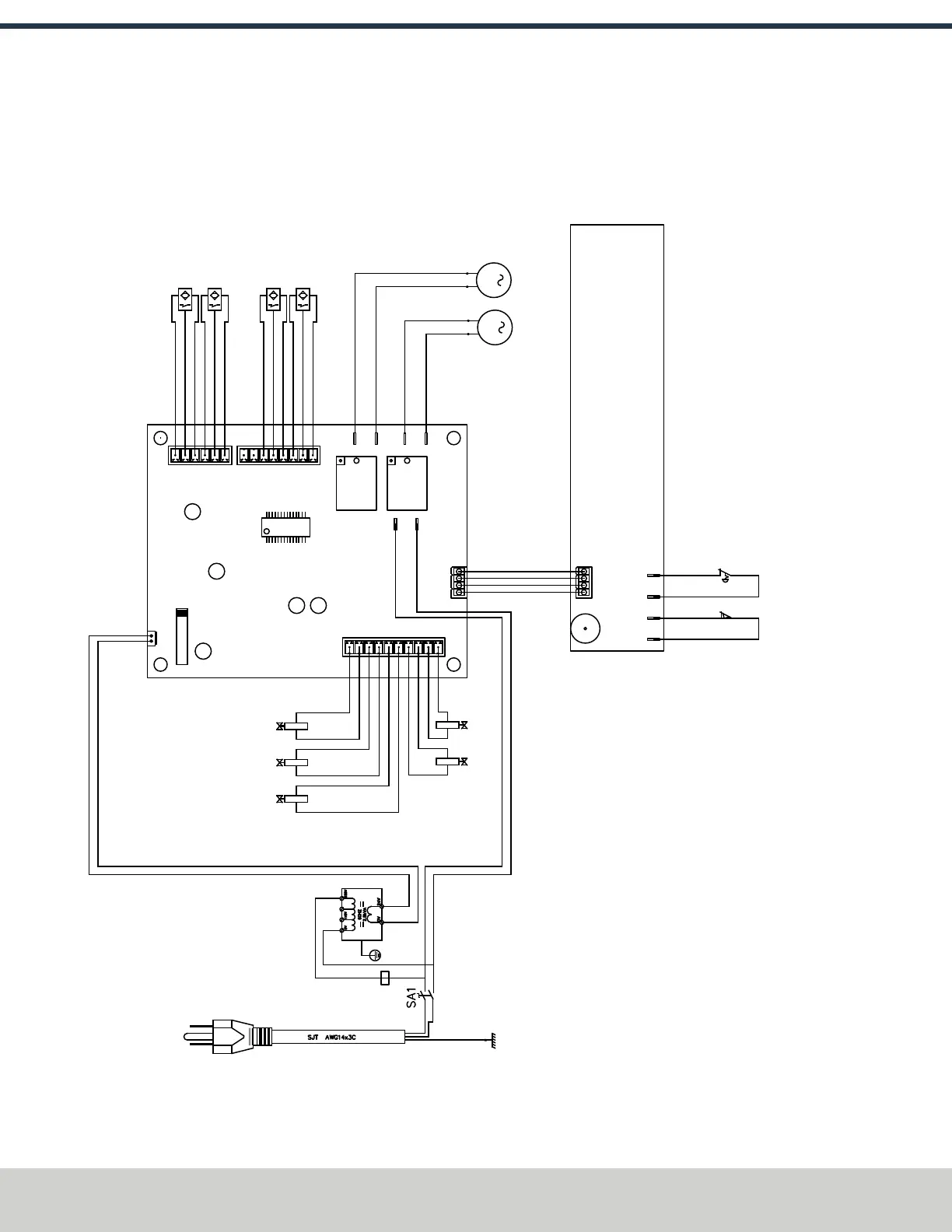
13.1 ELECTRICAL SCHEMATIC
STOP
SQ
AC24V
Operaal
mmu
rt
Sled Valve
Prx


Pump
Pwer
+
S
-
+
S
-
+
S
-
+
S
-
-B1
Saw Up (PN 52682)
-B2
Saw  (PN 52682)
-B3
Feed Retra
-B4
Feed Frward (PN 52682)
+
-
+
-
+
-
+
-
-Y1

-Y2

-Y3
Feed Clamp
-Y4
Feed
-Y5

60HZ
1Ø~
110~120V
-J3
L
N
TC
Fuse
PN 53061

PN 53063

PN 53063
Pulle
PN 52651
BK
BK
BN
BU
BK
WT
GN
M
M
Saw M
PN 52660
Ct Pump
PN 52693

PN 53064
RFIAF50-CONTROLLER & RFIAF50-TOUCH
PN 52657
+
-
BN
RD
OG
YL
GN
BU
PL
GY
WT
BK
BN
BU
BK
BN
BU
BK
BN
BU
Ctrlwer suppl

PN 53060

PN 53059
©Tormach® 2024
Specifications subject to change without notice.
Page 112 UM10825: AF50+ Autofeed Bandsaw Operator's Manual (Version 0324A)
For the most recent version, see tormach.com/support
13: ELECTRICAL SCHEMATICS

Table of Contents

Related product manuals