EasyManua.ls Logo

WACKER Group LTC 4 - Schematic for 60 Hz Metal Halide 4-Light Units

WACKER Group LTC 4
166 pages
Print Icon
To Next Page IconTo Next Page
To Next Page IconTo Next Page
To Previous Page IconTo Previous Page
To Previous Page IconTo Previous Page
Loading...
LTC Repair Electrical Troubleshooting
wc_tx000429gb.fm 91
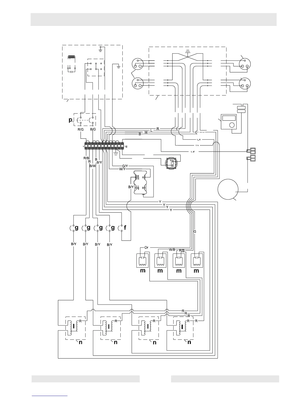
7.3 Schematic for 60 Hz Metal Halide 4-Light Units
B
W
G
B
W
G
B
W
G
B
W
G
G
L
Or
R
W
W/B
B
B
a
c
d
b
e
1
5
50Hz
0
60Hz
26
43
WR G
R/B
R
/B
W/B
W/B
W/B
Or
Or
Or
G
G
G
B
d
d
wc_gr002459
s
P/B
B+
W
D+
r
Or
Or
Or
-
q
O
r
/B
Or
Or
Or
Or

Table of Contents