EasyManua.ls Logo

Wega Wegaconcept - Hydraulic Diagram

Wega Wegaconcept
76 pages
Print Icon
To Next Page IconTo Next Page
To Next Page IconTo Next Page
To Previous Page IconTo Previous Page
To Previous Page IconTo Previous Page
Loading...
68
Wegaconcept
Technical manual
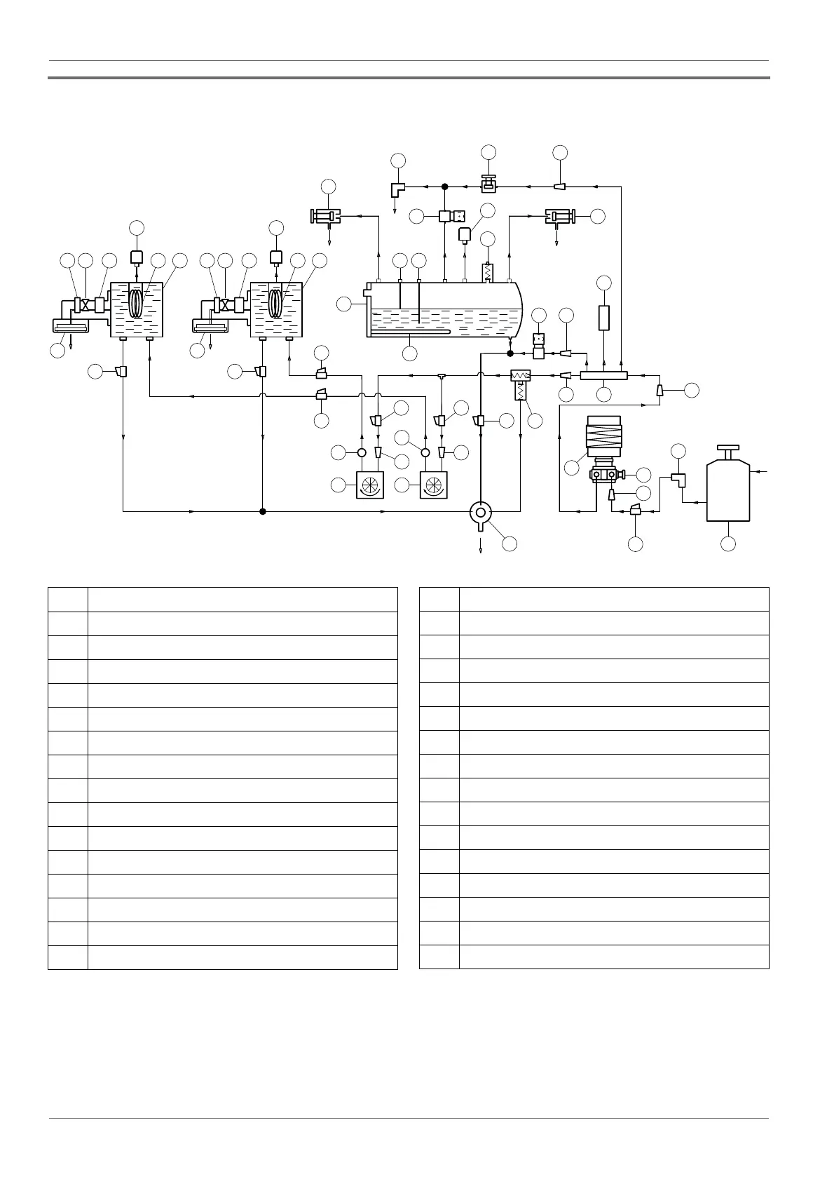
34 Hydraulic diagram
S
E
4
8
9
1
3
2
2
10
13 13
14
1615 17
18
18
18
18 18
18
20
20
22
23
24 20
20
2520
26
27
29
28
67
21 21
19
20
20
18 18
1615 17
5
12
19
14
11 12 11
30
1 TEA release
2 STEAM release
3 TEA MIX adjustment solenoid valve
4 HOT WATER solenoid valve
5 STEAM boiler safety pressure switch
6 BOILER LEVEL probe
7 SAFETY LEVEL probe
8 SAFETY valve
9 STEAM boiler
10 STEAM boiler heating element
11 COFFEE boiler
12 COFFEE water heating element
13 COFFEE water pressure switch
14 DELIVERY group
15 GROUP lter
16 GROUP Gigleur
17 GROUP solenoid valve
18 MANUAL tap
19 COLD Gigleur
20 MAINS lter
21 VOLUMETRIC doser
22 SCNR valve
23 PUMP pressure transducer
24 BOILER FILLING solenoid valve
25 MAINS dispenser
26 DRAIN pad
27 BUILT-IN motor pump
28 MOTOR PUMP pressure adjustment
29 WATER INLET connection
30 Softener
E Water inlet
S Water discharge

Table of Contents

Related product manuals