EasyManua.ls Logo

bora PUXU - Extending the Telescopic Pull-Out of the Air Cleaning Box (PULBTA)

bora PUXU
60 pages
Print Icon
To Next Page IconTo Next Page
To Next Page IconTo Next Page
To Previous Page IconTo Previous Page
To Previous Page IconTo Previous Page
Loading...
EN
32
Installation
www.bora.com
34 1
2
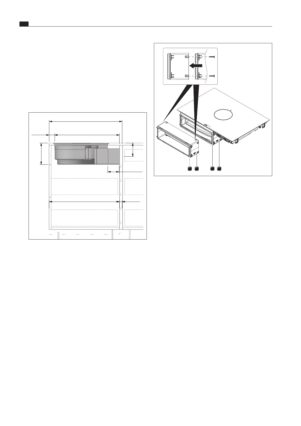
Fig. 6.35 Extending the telescopic pull-out.
[1] Air cleaning box with telescopic pull-out
[2] Telescopic pull-out adhesive tape
[3] Telescopic pull-out extension PULBTA
[4] Adhesive tape for telescopic pull-out extension PULBTA
XX
Remove the protective film from the adhesive tape [2] on the
front of the telescopic pull-out [1].
XX
Attach the extension PULBTA [3] (available as an accessory
including screws for attachment) to the telescopic pull-out [1].
XX
Remove the protective film from the adhesive tape [4] on the
front of the extension PULBTA [3].
XX
Push 2 installation clamps [2] onto each side of the cooktop
until they come to a stop in the retaining brackets [1]
provided.
6.7.6 Extending the telescopic pull-out of the
air cleaning box (PULBTA)
If the depth of the worktop exceeds 675 mm in installation
variant A, the telescopic pull-out of the air cleaning box must be
extended using the accessory PULBTA.
BORA LÜFTU N GSFIBELXX
min.
600
min.
50
199
495
-
575
0
-
80
min.
25
575
(min.
545)
125
min.
675
min.
50
199
600
-
680
105
-
185
min.
25
min.
650
125
Einbauschnitt
PUXA
Abluft
(Insel):
Einbauschnitt
PUXU
(Zeile
600):
Einbauschnitt
PUXA
Abluft
(Zeile
600):
BORA X
Pure
Einbauschnitt
PUXU
mit
zusätzlichem Teleskopauszug
PULBTA (Insel):
min.
600
min.
50
199
120
585
(min.
474)
max.
480
60
min.
455
min.
329
min.
100
97
310
700
(min.
600)
min.
50
199
120
685
max.
580
min.
455
50
min.
279
min.
100
97
60
310
Fig. 6.34 Installation dimensions for recirculation installation
variant A, depth of worktop 675 mm and over
i
The telescopic pull-out is used to connect the duct to
the back wall of the kitchen unit. This can be used to
flexibly bridge the gap between the cooktop and the rear
wall of the kitchen unit (max. 80 mm). If necessary, the
telescopic pull-out can be extended by a further 105 mm
using the extension PULBTA (available as an accessory).

Table of Contents

Related product manuals