EasyManua.ls Logo

Cisco ASR 1013 - Page 234

Cisco ASR 1013
702 pages
To Next Page IconTo Next Page
To Next Page IconTo Next Page
To Previous Page IconTo Previous Page
To Previous Page IconTo Previous Page
Loading...
Step 3
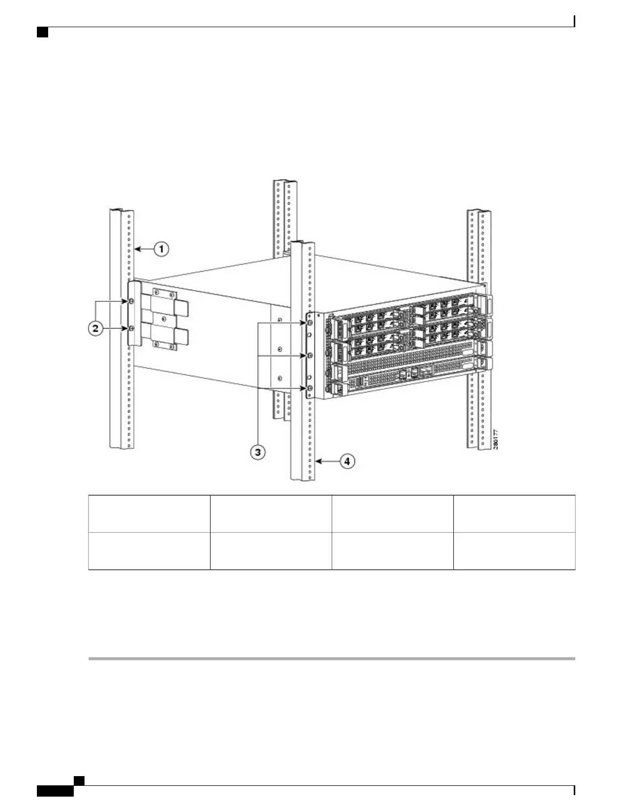
Hold the chassis in position against the mounting rails while the second person finger-tightens a screw to the rack rails
on each side of the chassis. The following image shows the rear rack-mount brackets and the front rack-mount brackets
on the Cisco ASR 1004 Router.
Figure 68: Cisco ASR 1004 Router on a Four-Post Rack
Front and Rear Rack-Mounting
Front rack-mount bracket ear
and holes
3Equipment rack rear rail1
Equipment rack front rail4Chassis rear rack-mount
bracket and ear holes
2
Step 4
Finger-tighten 4 more screws to the rack rails on each side of the chassis.
Step 5
Tighten all screws on each side to secure the chassis to the equipment rack.
Step 6
Use a level to verify that the tops of the two brackets are level, or use a measuring tape to verify that both brackets are
the same distance from the top of the rack rails.
What to Do Next
This completes the procedure for installing the chassis in the rack. Proceed to the Attaching a Chassis Ground
Connection, on page 201 to continue the installation.
Cisco ASR 1000 Series Router Hardware Installation Guide
200
Cisco ASR 1004 Router Overview and Installation
Four-Post Rack Installation

Table of Contents

Other manuals for Cisco ASR 1013

Related product manuals