EasyManua.ls Logo

DAF 95XF - Page 157

DAF 95XF
188 pages
Print Icon
To Next Page IconTo Next Page
To Next Page IconTo Next Page
To Previous Page IconTo Previous Page
To Previous Page IconTo Previous Page
Loading...
95XF series Removal and installation
EXPLANATORY NOTES ON THE MAINTENANCE ACTIVITIES
4-37
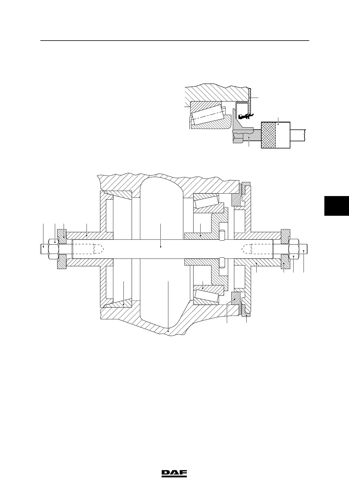
4.18 REMOVAL AND INSTALLATION, HUB OIL SEAL/WHEEL SPEED SENSOR
RING UNIT
Removing the hub seal/wheel speed sensor
ring
1. Remove the hub from the axle journal.
2. Fit the s pecial tool (3) (DAF no. 1329411)
to the impact puller (2), special
tool (DAF no. 0694928). Hook special
tool (3) (DAF no. 1329411) behind the oil
seal (1). Pull the seal (1) from the hub using
impact puller (2). The removed seal (1)
cannot be used again.
1
2
3
S7 00 424
A B C D E
1 2 3
F
H
G4
I K L
S7 00 405
Installing the hub seal/wheel speed sensor
ring
1. Check the seal chamber (4) i n the hub (2)
for damage.
2. For the installation of the hub oil seal (4)
use s pecial tool (DAF no. 1240036).
5
200424

Table of Contents

Related product manuals