EasyManua.ls Logo

Dinolift 160XT - Page 115

Default Icon
127 pages
Print Icon
To Next Page IconTo Next Page
To Next Page IconTo Next Page
To Previous Page IconTo Previous Page
To Previous Page IconTo Previous Page
Loading...
115
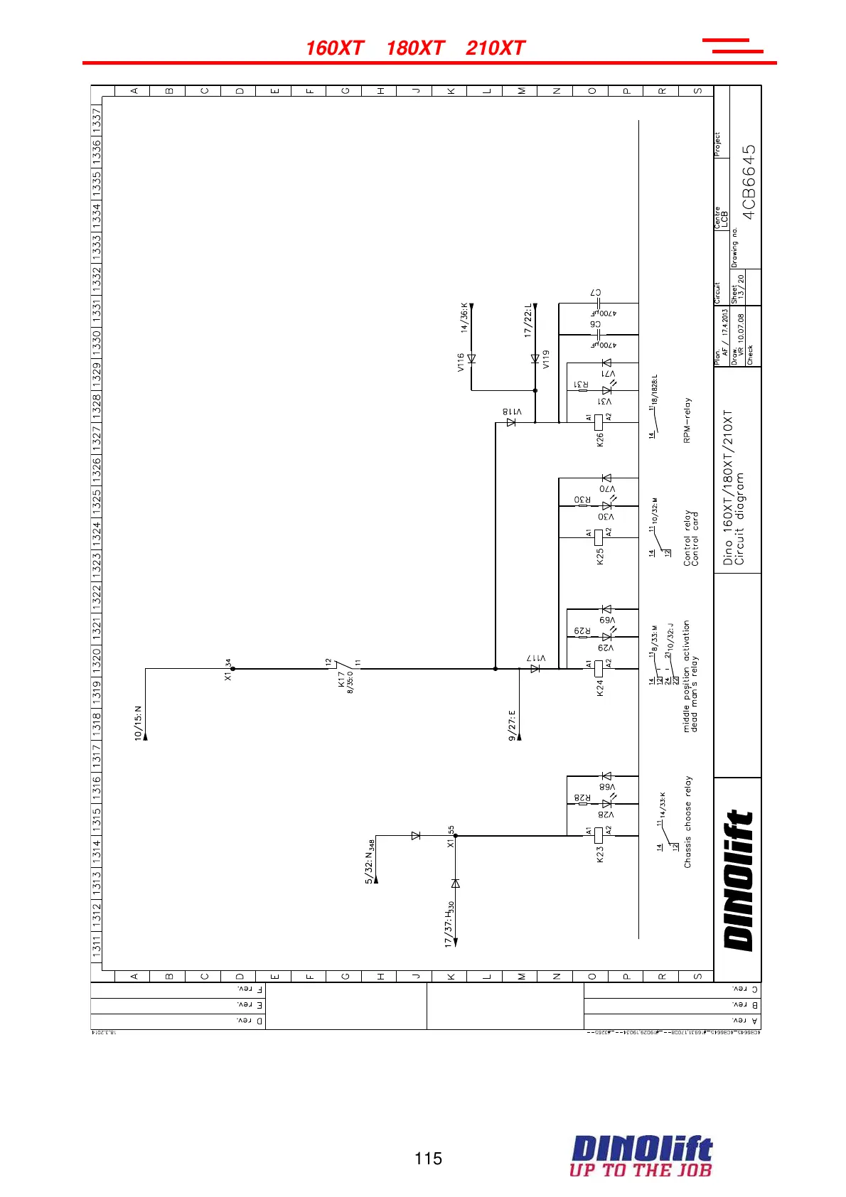
160XT 180XT 210XT
Courtesy of Crane.Market

Table of Contents

Related product manuals