EasyManua.ls Logo

Electrolux EWM2100 - WD Basic Circuit Diagram

Electrolux EWM2100
91 pages
Print Icon
To Next Page IconTo Next Page
To Next Page IconTo Next Page
To Previous Page IconTo Previous Page
To Previous Page IconTo Previous Page
Loading...
03-2009 SOI/DT-mdm FCPD-dp Quality-fz 85/91 599 70 56-70 599 70 56-70
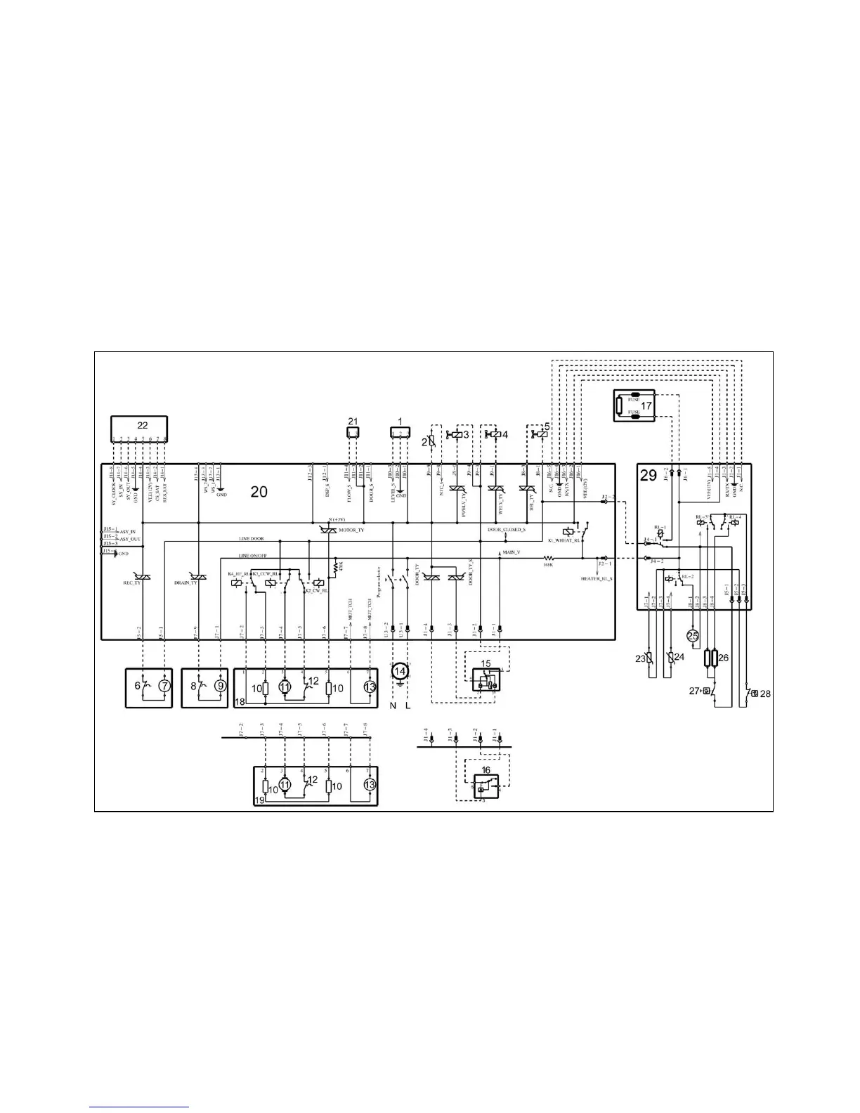
10 BASIC CIRCUIT DIAGRAM WD

Table of Contents

Related product manuals