EasyManua.ls Logo

ESAB DTE 255 - AP09 DTE 255 AC Snubber A Circuit Board

ESAB DTE 255
90 pages
Print Icon
To Next Page IconTo Next Page
To Next Page IconTo Next Page
To Previous Page IconTo Previous Page
To Previous Page IconTo Previous Page
Loading...
-- 5 3 --cdte1de1
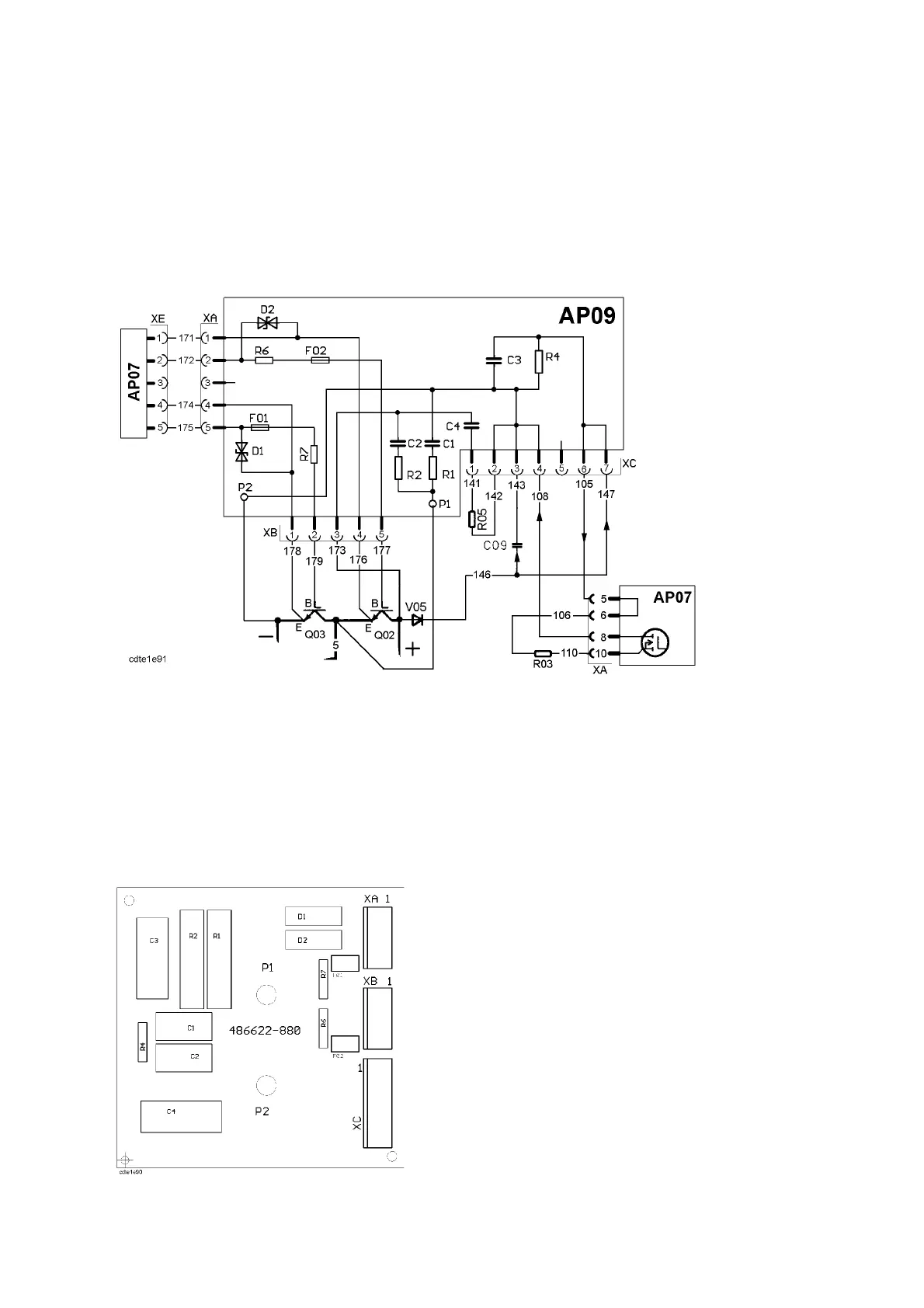
AP09 DTE 255 AC snubber ’A circuit board
This cir cuit board is used only in the the DTE 255. The snubber board for the DTE 200 is
described on page 56.
Circuit board AP09 protects the IGBTs Q02 and Q03 from voltage peaks generated by the
switching of the IGBTs. High--speed fuses F01 and F02 protect the IGBT drive circuits on
circiut board AP07 in the event of IGBT failure.
Circuit diagram for circuit board AP09, DT E 255
To protect the IGBTs in the AC unit, the voltage must not exceed 600V. Capacitor C09 is
charged up from the positive and negative rails via diode V05. This voltage is connected to
XA:5and6onAP07.
AP07 monitors the voltage between connections XA:5 (+) and XA:8 (--). If it exceeds 400V,
the capacitor is discharged via a transistor on AP07.
If capacitor C04 is not properly discharged, the machine will be switched off if the voltage
exceeds 570V. There is a more detailed description of this function on pages 47 and 48.
Do not mix up connectors XA and XB.
<------ 5 wires are connected to connector XB
<------ 4 wires are connected to connector XA
Component positions for circuit board AP09, DTE 255

Table of Contents

Related product manuals