EasyManua.ls Logo

Fischer Panda 5000i PVK-U - Page 82

Fischer Panda 5000i PVK-U
174 pages
Print Icon
To Next Page IconTo Next Page
To Next Page IconTo Next Page
To Previous Page IconTo Previous Page
To Previous Page IconTo Previous Page
Loading...
Installation Instructions
Seite/Page 82 Kapitel/Chapter 6: Installation Instructions 30.10.12
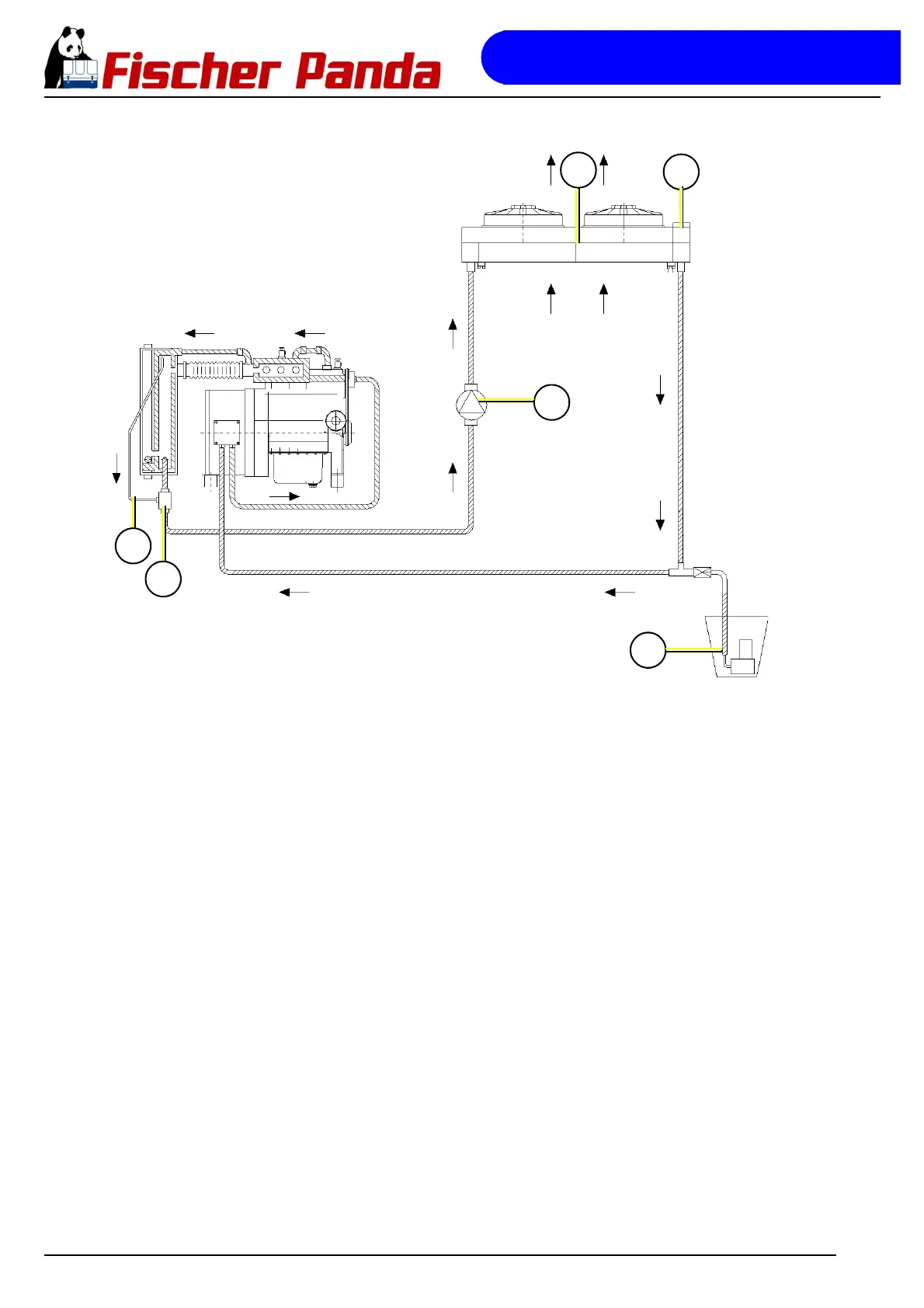
Fig. 6.8.17-3: Installation diagram for radiator on the roof
2
6
3
5
4
1
1. Ventilation pipe
2. Radiator (horizontal)
3. Coolant expansion tank (integrated)
4. T-piece for Ventilation pipe
5. External cooling water pump
6. Bucket with submerged pump

Table of Contents

Related product manuals