EasyManua.ls Logo

Fischer Panda Panda 8000 - Anschluß des Sensors an die Eingangsleiste

Fischer Panda Panda 8000
268 pages
Print Icon
To Next Page IconTo Next Page
To Next Page IconTo Next Page
To Previous Page IconTo Previous Page
To Previous Page IconTo Previous Page
Loading...
Installationshinweise
Seite/Page 116 - Kaptitel/Chapter B: Installationshinweise 19.8.14
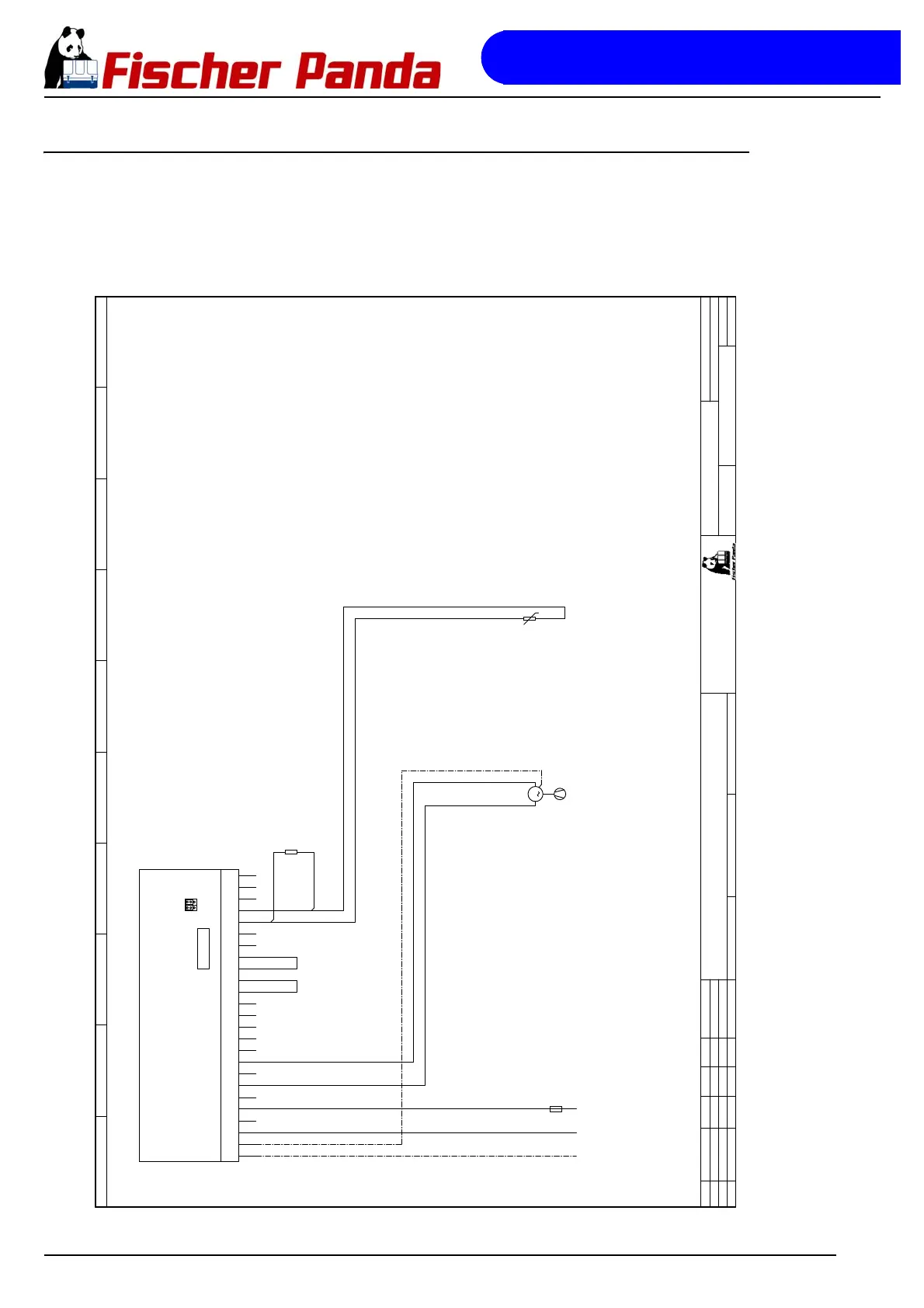
B.23.2 Anschluß des Sensors an die Eingangsleiste
Die Eingänge TB und D1 werden je mit einer Brücke versehen.
Der Sensor wird an den Eingang E1/GND angeschlossen. Parallel zu dem Sensor wird ein Wiederstand 4,2 kOhm
gesetzt.
Fig. B.23.2-1: Anschaltplan
012
3
4 5 67 89
Datum
Bearb.
Gepr.
Norm
Urspr. Ers.dErs.f
Blatt 1
Bl.
=
+
von 1
Zust. Änderung Datum Name
Zeichnungsnummer:
D-33104 Paderborn
Otto-Hahn-Str. 32-34
www.fischerpanda.de
+49(0)5254/9202-0
Projektnummer:
Fischer Panda
Generatoren
Fischer Panda GmbH
Bröckling
070367_00_00---
---070367_00_00 ---
Schönberger
26.08.2010
connectionplan - fan control ZA PXET6Q / PXET6Q
M
fan
PE
-M
4,2kOhm
2
1
-R
T
temperature
sensor
1
2
-R
line
230V 50Hz
E1
110
on
Ziehl Abegg PXET6Q
PE
PE
N
N
L1
L1
U1
U1
U2
U2
11
12
14
TB
TB
D1
D1
A1
GND
E1
GND
24V
GND
-A
.
-F

Table of Contents

Related product manuals