EasyManua.ls Logo

Flowserve MX - Figure 7.2 - Typical Single Phase MX Iecex Nameplate

Flowserve MX
112 pages
Print Icon
To Next Page IconTo Next Page
To Next Page IconTo Next Page
To Previous Page IconTo Previous Page
To Previous Page IconTo Previous Page
Loading...
Limitorque
®
MX Electronic Actuator FCD LMENIM2306-09-AQ – 08/17
108
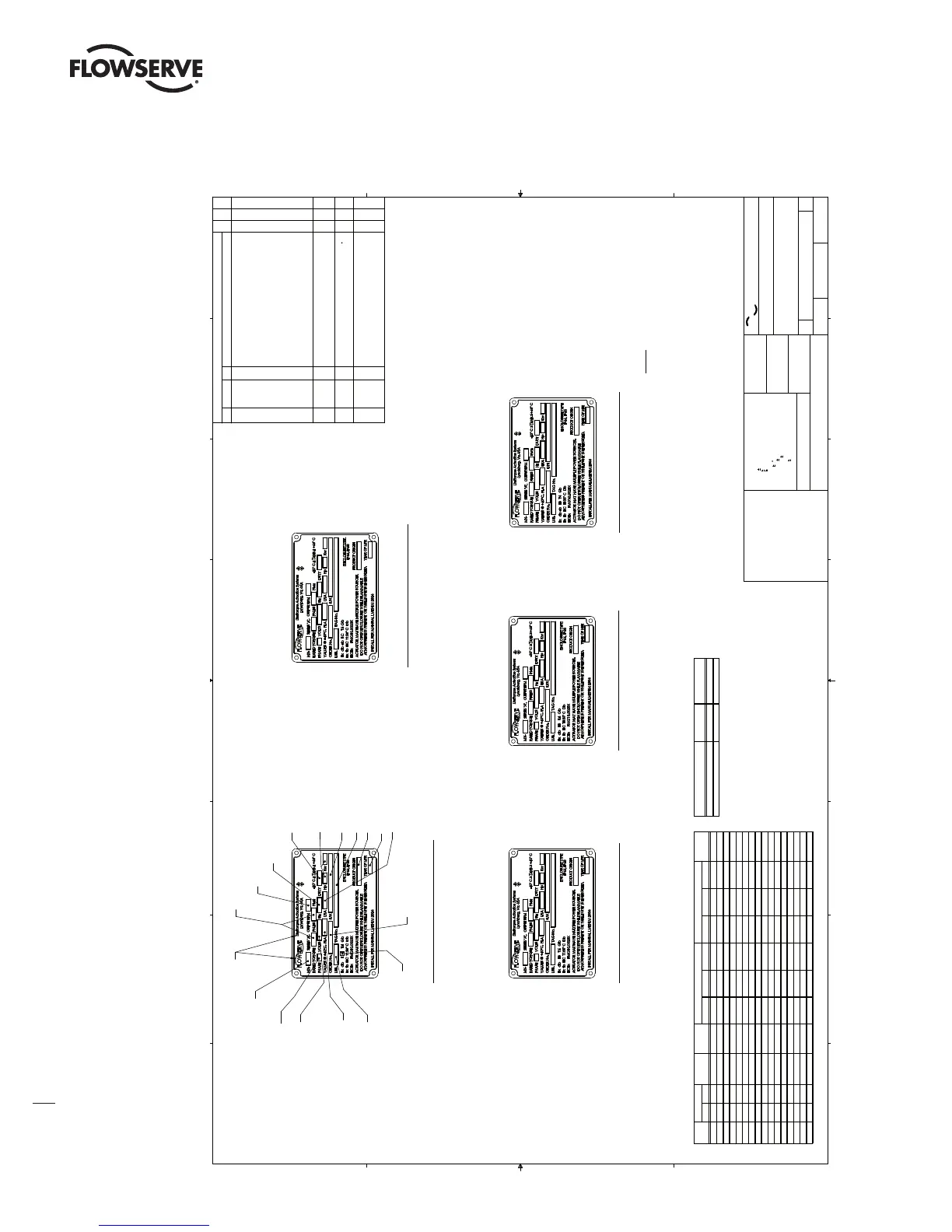
Figure 7.2 Typical Single Phase MX IECEx Nameplate
R
FLOWSERVE
'B' OR 'C'
GROUP OPTION
RPM OF DRIVE SLEEVE
SEE TABLE 1
'Hz'
FACTORY ASSIGNED SERIAL NUMBER
TO INCLUDE DESIGNATOR PER TABLE 2
YEAR OF UNIT MANUFACTURE
DRAWING NUMBER 64-682-0032-11
EITHER '50 OR 60' FOR AC
SUPPLY PHASE:
USE '1' FOR SUPPLY
VOLTAGE AC
FOR GR. IIB OR IIC NAMEPLATE
SEE TABLE 1
TAGGING INFORMATION
LIMITORQUE ORDER NUMBER
SEE TABLE 1
ACTUATOR SIZE
EXAMPLE: MX-SIZE
HP / Kw
ACTUATOR IN FT-LBS AND Nm
(FLA)
ALL LETTERS, BOXES AND SYMBOLS
FULL LOAD AMPS
SEE TABLE 1
SEE NOTE 3
'100-240 AC' WITHOUT OPT. 15VA TRANSFORMER
OR
TO BE LASER ETCHED (SILVER)
'190-240 AC' WITH OPT. 15VA TRANSFORMER ICA-2048
MAXIMUM OUTPUT TORQUE OF
OR
SEE NOTE 4
IECEx -20°C TO +65°C
SEE TABLE 1
ACTUATOR LUBRICANT
WITH OPTIONAL INCREASED SAFETY
SEE NOTE 4
LOCK ROTOR AMPS
'100-140 AC' WITH OPT. 15VA TRANSFORMER ICA-2047
(LRA)
SHOW AS '15 MIN.' ON NAMEPLATE
SEE NOTE 5 FOR OTHER THAN '15 MIN.'
SUPPLY VOLTAGE:
UNLESS OTHERWISE SPECIFIED DUTY IS 15 MINUTES.
PRODUCT ORIGIN
SEE TABLE 2
SEE TABLE 1
ACTUATOR DUTY CYCLE INTERVAL IN MINUTES
DRAWING NUMBER 64-682-0032-13
IECEx -40°C TO +40°C FOR GR. IIB NAMEPLATE
FOR THIS NAMEPLATE
INCREASED SAFETY AND IIC NOT APPLICABLE
FOR THIS NAMEPLATE
INCREASED SAFETY AND IIC NOT APPLICABLE
IECEx -30°C TO +65°C FOR GR. IIB NAMEPLATE
DRAWING NUMBER 64-682-0032-14
DRAWING NUMBER 64-682-0032-12
IECEx -20°C TO +65°C
INCREASED SAFETY IIC NAMEPLATE
ADDED DWG NUMBER 64-682-0032-15
MWR
ECN
33212
Limitorque Actuation Systems
D
C
B
A
A
B
C
D
SCALE
DWG. NO.
SIZE
D
SHEET
2 OF 2
REV.
DATE
BOM NO.
DRAWN
CHECKED
DATE
DATE
APPROV ED
1
2
3
4
5
6
7
8
87
6
5
4
32
1
REVISIONS
REV.
DESCRIPTION
BY
DATE
APPVD
C4
REVISED TABLE 2.
GENERAL C/N
C6
TABLE 1 VALUES FOR 'F ULL LOAD A MPS', 'LOC K ROTOR AMPS'
E
C
ECN
WCHSAV
CHANGED UPPER AMBIANT TEMPERATURE RATING TO +65
DJM
31817
D6
C
4 -3. FOR A M X-05, 60Hz, 40 RPM 100-240 AC UN IT,
AND 'HP / K W' WERE C HANGED TO B E ALIGNE D WITH
64-682-0032
DJM 1-14-16
7-7-16
7. ALL VIEWS A RE TH IRD A NGLE PRO JECTIONS .
MA NUFACTUR ING DA TA ON LY.
ACTUAL PRODUCTION VA LUES.
0.20 ( < 0.80)
6. DIM ENSIONS IN BR ACKETS [X.X XX] A RE FOR
4-20-16
FOR REFERENCE O NLY.
ADD HOUS TON TX. USA TO TABLE 2
D3
D
9-24-16
ZONE
ECN-
33131
'-30°C TO +60°C'
FULL LOAD AMPS = 2.8
ADD ED NOTE 5 TO S EE SIZING CHA RT FOR OTHE R DU TY CY CLES.
DEFAULT FILLET RADII = 0.40/1.00
GENERAL MANUFACTURING NOTES UNLESS
ECN
CONTROLLED DRAWING
ENGIN EERING D ESIGN STANDARDS (EDS)
3. MA CHINED S URFACE FINIS H TO BE 6.3 0
2. REM OVE ALL B URRS A ND S HARP C ORNER S
=
TAP DEPTHS ARE MINIMUM
CASTING AND OTHER DIMENSIONAL TOLERANCE
0.40 ( > 0.80 )
STANDARDS (EDS).
EXTERNAL-CLASS 6g
ALL REVISIONS TO THIS DRAWING MUST BE REVIEWED
CHAMFERS =
INTERNAL-CLASS 6H
4-20-16
5114 WOODALL ROAD, LYNCHBURG, VIRGINIA 24506-1318
0.50
LIMITS ARE PER LIMITORQUE ENGINEERING DESIGN
PROPRIETA RY NOT ICE
WCH
DISCLOSED, IN WHOLE OR IN PART, WITHOUT THE WR ITTEN CONSENT OF F LOWSERV E
F
6-29-17
AND PROP RIETARY, THER EFORE, IT IS NOT TO BE U SED, DUPLICATED, OR
TITLE/ UNIT SIZE
JT
THIS DOCUMENT CONTAINS INFORM ATION WHICH FLOWSERV E DEEM S CONFIDENTIAL
32593
ADDED THIS SHEET
.XX =
CF-RGP
0.50
MICR OMETER S.
.X =
0.50
OTHERWISE SPECIFIED:
DJM 1-14-16
MAKE FROM BLANK 64-682-0007-1
ANSI B1.13M
2.8
4.FILLET R ADII MAY BE TURNED UP TO 0 .50
5
(NAMEPLATE -20°C WA S -30°C)
8. DIMENS IONING , TOLERA NCING, S YMBOL S,
X. =
THREADS, ETC. A RE PER LIMITOR QUE
MACHINED DIMENSIONS:
5. SEE MX SING LE PHAS E SIZING CHART FO R OTHER DU TY CYCLE S.
1.0
F
NAMEPLATE, IECEx
(SEE NOTE 2)
WCH 1-13-16
MATERIAL
NOTES:
AND APPROVED BY THE AUTHORIZED PERSON
MX SERIES A, SINGLE PHASE
DJM
(DELE TED BAN GALO RE FROM TABLE 2)
2-16-16
1. ALL DIM ENSIONS ARE IN MILLI METERS .
-
FILLET RADII =
FULL LOAD AMPS = 5
L 1065 02/10/04
THREADS PER:
BELOW THE FIN ISH DIAMETER .
5. DIM ENSIONS IN PAR ENTH ESIS (X. .XXX ) ARE
0.25
ANGLES =
FULL LOAD AMPS = 5
4-19-16
ADD ED LINE F OR 'D UTY' TO N AMEPLA TE
31610
4 -2. FOR A M X-05, 60Hz, 40 RPM 190-240 AC UN IT,
4 -1. FOR A M X-05, 60Hz, 40 RPM 100-140 AC UN IT,
TOLERANCE LIMITS UNLESS OTHERWISE SPECIFIED:
1. NAMEPLATE PER THIS SHEET IS REQUIRED O N ALL MXa XP IECEx
SINGLE PHASE PRODUCTS PER 01-602-1170 OR 01-602-1171.
2. ALTERNATE NAMEPLATE MATERIAL IS 316 OR 304 SS WITH A BRUSHED
OR SATIN SURFACE FINISH. LETTERING IS LASER ETCHED SILVER.
3. Kw AND HP IS OUTPUT A T MOTOR.
4. NAMEPLA TE LABELING FOR FU LL LO AD A MPS M UST BE LABELED
AS SHOWN IN TABLE 1.
EXAMPLES;
2-18-16
(ADDED NAMEPLATE 64-682-0032-14)
3-1-16
NOTE 1, 'ALL MXa XP IECE x' WA S 'A LL MXa X P FM'
4-4-16
NAMEPLATE 64-682-0032-14 '-30°C TO +65°C' WAS
REVISED EPL CATEGORIES TO M EET IEC 60079-1:2014.
ADDED PRODUCT O RIGIN.
ECN
JT
TABLE 2TABLE 1
DRAWING NUMBER 64-682-0032-15
IECEx -20°C TO +65°C
INCREASED SAFETY IIB NAMEPLATE
LYNC HB U RG VA. U SA
L
PRODUCT OF USA
HOU STON TX. US A
H
PRODUCT OF USA
FACTORY LOCATION
SERIAL NO.
DESIGNATION
PRODUCT ORIGIN
50 Hz 60 Hz 100-140 VAC 190-240 VAC 100-240 VAC 100-140 VAC 190-240 VAC 100-240 VAC
05 15 18 55 75 2.8 1.8 2.8 - 1. 8 11.8 6.4 11.8 - 6.4 .16 / .12
05 22 26 55 75 3.6 2.1 3.6 - 2. 1 15.1 7.9 15.1 - 7.9 .23 / .17
05 33 40 55 75 5 2.8 5 - 2.8 19.6 10.2 19.6 - 10.2 .33 / . 25
05 43 52 55 75 6.3 3.4 6.3 - 3. 4 23.8 12.5 23.8 - 12.5 .43 / . 32
05 65 77 48 65 7.8 4.2 7.8 - 4. 2 19.8 11.2 19.8 - 11.2 .56 / . 42
05 84 100 39 53 7. 7 4.0 7.7 - 4. 0 24.3 12.3 24.3 - 12.3 .54 / . 40
05 127 155 41 56 11 6 11 - 6 30 17 30 - 17 .86 / .64
05 165 200 34 46 11. 3 6 11.3 - 6 28 19 28 - 19 .84 / .63
10 15 18 125 169 5 2.9 5 - 2.9 16 9 16 - 9 .35/ . 26
10 22 26 125 169 6.6 3.7 6.6 - 3.7 20.5 11.2 20.5 - 11.2 .47 / . 35
10 33 40 125 169 9.5 5.3 9.5 - 5.3 29 16 29 - 16 .68 / . 52
10 43 52 125 169 12 6.7 12 - 6. 7 30 20 30 - 20 .92 / . 69
10 65 77 107 145 13.2 7.5 13. 2 - 7.5 30 21 30 - 21 1.1 / . 82
10 84 100 89 121 13. 1 7.3 13. 1 - 7.3 30 19 30 - 19 1.1 / . 80
10 127 155 89 121 18 11 18 - 11 30 29 30 - 29 1. 6 / 1.23
10 165 200 73 99 19 11 19 - 11 30 30 30 - 30 1. 6 / 1.23
HP / Kw
@ +40°C
FULL LOAD AMPS (FLA) @ +40°CRPM
UN IT S IZE
RATED FT-LBS
(NOMINA L)
RA TE D N - m
(NOMINA L)
LOCK ROTOR AMPS (LRA)
LMENIM2306-09 AQ.indd 108 Mittwoch23.08.17 08:53

Table of Contents

Related product manuals