EasyManua.ls Logo

Fraco SEP-5000 - Configurations; Figure 6 - Assembly Configurations

Fraco SEP-5000
89 pages
Print Icon
To Next Page IconTo Next Page
To Next Page IconTo Next Page
To Previous Page IconTo Previous Page
To Previous Page IconTo Previous Page
Loading...
Transport platform SEP Serie
SEP user’s manual Page 22 of 89 Doc no. RD-7243-MA-001-02
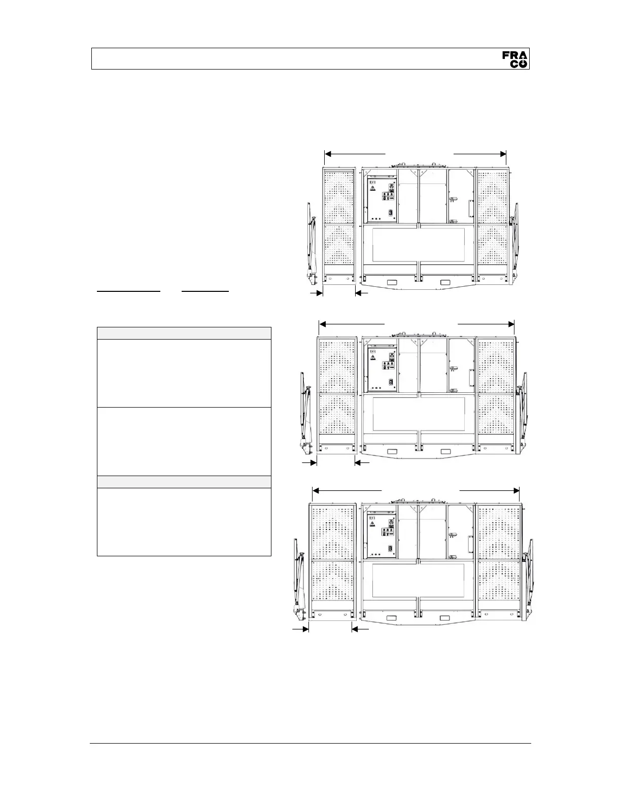
4.7. Configurations
Upon purchase, it is possible to select platform dimensions from various possibilities.
The standard configurations are:
10'-6" (3,20m)
12'-6" (3,80m)
14'-6" (4,40m)
It is also possible to get other platform lengths
by combining different platform extensions
among the available extension formats:
1'-4" (405mm)
2'-4" (710mm)
3'-4" (1,0m)
IMPORTANT! It is forbidden to unbalance
the platform more than 12" (300mm) from
the central axis.
Examples:
Authorized onfigurations:
(Main platform 8'-0" (2,45m))
+
(Extension 1'-4" (405mm))
+
(Extension 2'-4" (710mm))
Imbalance = 12" (300mm) OK!
(Main platform 8'-0" (2,45m))
+
(Extension 2'-4" (710mm))
+
(Extension 3'-4" (1,0m))
Imbalance = 12" (300mm) OK!
Prohibited configuration:
(Main platform 8'-0" (2,45m))
+
(Extension 1'-4" (405mm))
+
(Extension 3'-4" (1,0m))
Imbalance > 12" (300mm) = PROHIBITED!
10'-6" (3,20m)
Interior dimension
1'-4"
(405mm)
12'-6" (3,80m)
Interior dimension
2'-4"
(710mm)
Figure 6 Assembly configurations
14'-6" (4,40m)
Interior dimension
3'-4"
(1,0m)

Table of Contents