EasyManua.ls Logo

Fraco SEP-5000 - 12 Technical Data; Electrical Technical Data; Platform Technical Sheet; Figure 49 - Platform Dimensions

Fraco SEP-5000
89 pages
Print Icon
To Next Page IconTo Next Page
To Next Page IconTo Next Page
To Previous Page IconTo Previous Page
To Previous Page IconTo Previous Page
Loading...
Transport platform SEP Serie
SEP user’s manual Page 79 of 89 Doc no. RD-7243-MA-001-02
12. Technical data
12.1. Electrical technical data
Power ratio of the motor elevation unit
15 kW (20 HP)
Principal power supply, frequency
460 VAC, 60Hz
Control voltage, frequency
24 VDC
MAXIMUM power consumption
(TEST)
MINIMUM power consumption
(TEST)
MAXIMAL starting current
102 A
Type of current for the main disconnect switch
Delay 40 Amps
Output current for portable tool outlet
120 VAC 15 Amps
Table 12 Electrical technical data
Note: Supplying the input current box and the main disconnect switch is responsibility of the
contractor. The manufacturer is not responsible of supplying these equipments but can
nevertheless advise in the selection of these equipments. If needed, contact your FRACO
representative.
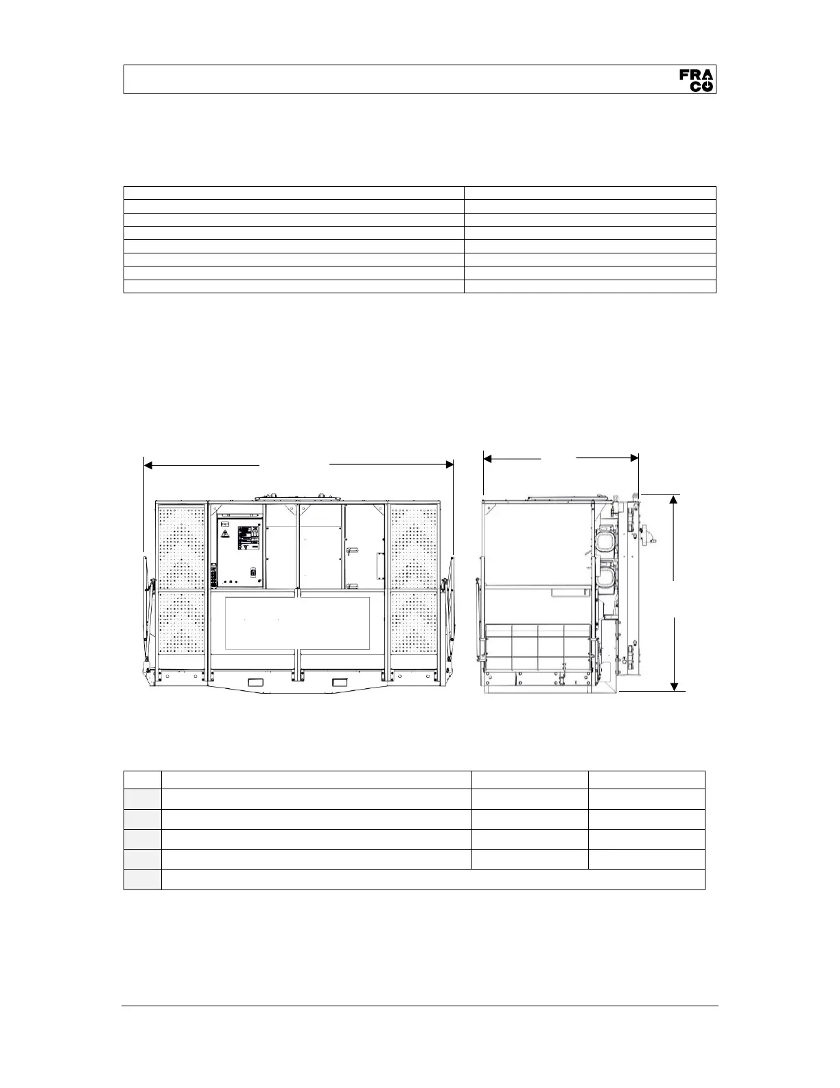
12.2. Platform technical sheet
Plateform SEP-5000 (RD-7243-BC-104)
Imperial
Metric
A
Length
13'-1"
4 m
B
Width
72'-11 3/4"
2,15 m
C
Height
8-9"
1,5 m
Weight
6 600 lb
3 000 kg
FOR DIFFERENT LENGTHS, REFER TO SECTION 4.7 CONFIGURATIONS, ON PAGE 22
Table 13 Platform weight and dimensions
A
B
C
Figure 49 Platform dimensions

Table of Contents